Version: 8.24.0Navigation ĂĽberspringen
749.000 €
10 Zimmer  â€˘  243 m²  â€˘  687 m² GrundstĂĽck
Immowelt logo

Mehrfamilienhaus zum Kauf
749000 €
3.082 €/m²
10 Zimmer  â€˘  243 m²  â€˘  687 m² GrundstĂĽck

Doppelhaus in GroĂź Tarup (Hochfeld)

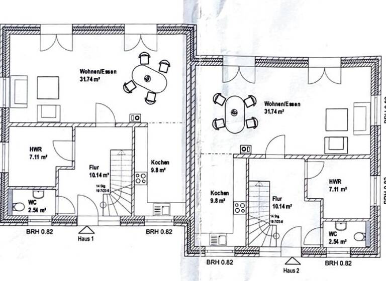
Zum Verkauf steht ein modernes Doppelhaus mit zwei identisch gebauten Haushälften, das sich ideal für Mehrgenerationenwohnen, als Kapitalanlage oder zur Kombination von Wohnen und Vermieten eignet. Die Immobilie bietet eine Gesamtwohnfläche von ca. 244 m² und ist aktuell vollständig und solide vermietet. Jede Haushälfte verfügt über ca. 122 m² Wohnfläche, einen separaten Eingang sowie eine gut durchdachte Raumaufteilung mit jeweils fünf Zimmern, einem Badezimmer und einem Gäste-WC.

Besonders hervorzuheben sind die großzügigen Fenster, die viel Tageslicht in die Wohnräume lassen und eine freundliche, offene Wohnatmosphäre schaffen. Die offen gestalteten Wohn- und Essbereiche mit Zugang zur Terrasse und in den Garten verstärken das Gefühl von Raum und Licht. Jede Haushälfte verfügt über einen eigenen Gartenanteil, der den Mietern zusätzlichen Wohnkomfort und Platz zur individuellen Entfaltung im Freien bietet.

Das Grundstück ist vollständig umfriedet – inklusive einer klaren Abgrenzung zwischen den beiden Haushälften –, was für zusätzliche Privatsphäre, Sicherheit und eine klare Trennung der Wohneinheiten sorgt.

Beheizt wird das gesamte Haus über eine komfortable Fußbodenheizung, die über umweltfreundliche Fernwärme gespeist wird. Die Bauweise im energiesparenden Niedrigenergiestandard sorgt nicht nur für ein angenehmes Wohnklima, sondern auch für dauerhaft niedrige Betriebskosten.

Ergänzt wird das Angebot durch einen Carport sowie einen zusätzlichen Außenstellplatz. Die Immobilie bietet somit nicht nur zeitgemäßen Wohnkomfort, sondern auch ein hohes Maß an Funktionalität.

Mit seinen zwei vollständig vermieteten Wohneinheiten stellt dieses Doppelhaus eine attraktive und zukunftssichere Kapitalanlage dar. Es kombiniert solide Mieteinnahmen mit moderner Architektur, Energieeffizienz und einer gefragten Wohnqualität in grüner Umgebung.

Merkmale

  • vermietet
  • 687 m² GrundstĂĽck
  • EinbaukĂĽche
  • Kein Keller
  • 4 Stellplätze: Carport, AuĂźen-Stellplatz
  • Gäste-WC
  • Gartenanteil, Garten
  • Terrasse

Grundrisse

Grundrisse
1 / 2

Realisiere Dein Projekt

Bausubstanz und Energie

Energieausweis

B
  • Baujahr2015
  • Zustand der ImmobilieMassivhaus, Gepflegt
  • HaustypKfW 40
  • HeizungsartFuĂźbodenheizung
  • EnergieträgerFernwärme
Immowelt logo

Preisdetails

Kaufpreis
749000 €
3.082,30 €/m²
Provision für Käufer
4,76 % Käuferprovision inkl. der gesetzlichen MwSt. verdient und fällig mit Beurkundung des notariellen Kaufvertrages.
Geschätzte Gesamtkosten
839.404 €1
Kaufpreis
749.000 €
Notarkosten (1,5%)
11.235 €
Grunderwerbsteuer (6,5%)
48.685 €
Provision für Käufer (3,57%)
26.739 €
Grundbucheintrag (0,5%)
3.745 €
1Der angezeigte Wert ist eine automatisch berechnete Schätzung von immowelt.
2Bei den Angaben handelt es sich um ortsübliche Werte. Individuelle Kosten können abweichen.

Lage

address-icon
Tarup, Flensburg (24943)
Der Anbieter hat die genaue Adresse nicht freigegeben
Die gepflegte Doppelhaushälfte befindet sich in ruhiger Lage am Rande des äußerst beliebten Stadtteils Groß Tarup. Dieser Stadtteil ist besonders bei Familien und Berufstätigen aufgrund seiner hervorragenden Infrastruktur und der naturnahen Umgebung sehr geschätzt.

In unmittelbarer Nähe finden sich zahlreiche Einrichtungen des täglichen Bedarfs. Mehrere Schulen unterschiedlicher Stufen sowie diverse Kindergärten sind schnell und bequem erreichbar – ideal für Familien mit Kindern. Auch die Universität ist in kurzer Zeit erreichbar, was den Standort ebenso für Studierende und Universitätsmitarbeiter attraktiv macht.

Darüber hinaus bietet die Umgebung eine Vielzahl an Einkaufsmöglichkeiten – von Supermärkten und Discountern bis hin zu Fachgeschäften. Auch Ärzte verschiedenster Fachrichtungen, Apotheken und mehrere Baumärkte befinden sich in der näheren Umgebung, sodass alle alltäglichen Besorgungen schnell erledigt werden können.

Trotz der ruhigen Wohnlage ist die Anbindung an den öffentlichen Nahverkehr hervorragend: Eine Bushaltestelle befindet sich nur etwa zwei Gehminuten entfernt. Dadurch ist auch ohne eigenes Fahrzeug eine flexible und bequeme Mobilität gewährleistet. Die Innenstadt sowie weitere Stadtteile sind somit schnell und unkompliziert erreichbar.

Insgesamt bietet diese Lage eine gelungene Kombination aus urbanem Komfort, guter Verkehrsanbindung und hoher Lebensqualität.

Weitere Informationen

PROVISIONSPASSUS 4,76% Käuferprovision inkl. der gesetzlichen MwSt. verdient und fällig mit Beurkundung des notariellen Kaufvertrages.

Haben wir Ihr Interesse geweckt, dann fordern Sie ein Exposé an auf: www.ketelsen-roesch.de oder rufen Sie uns an.

Jeder Mensch braucht ein Zuhause, darum suchen wir Ihre Immobilie! Wir suchen Immobilien fĂĽr vorgemerkte Kunden aller Art. Tippgeberprovision, alle Infos dazu auf unserer Homepage. WEITERE FAKTEN
• Massivbau

• Einbauküche mit hochwertigen Elektrogeräten

• Fußbodenheizung

• Allergiker-freundliche Fußbodenbeläge

• Carportanlagen

• Dachboden

• Terrassen

• Schuppen

• u.v.m. HAFTUNGSAUSSCHLUSS Alle Angaben sind ohne Gewähr und basieren ausschließlich auf Informationen, die uns von unserem Auftraggeber übermittelt wurden. Wir übernehmen keine Gewähr für die Vollständigkeit, Richtigkeit und Aktualität dieser Angaben. Zwischenverkauf bleibt vorbehalten. Sollte das von uns nachgewiesene Objekt bereits bekannt sein, teilen Sie uns dieses bitte unverzüglich mit. Die Weitergabe dieses Exposés an Dritte ohne unsere Zustimmung löst gegebenenfalls Courtage- bzw. Schadensersatzansprüche aus. DATENSCHUTZ Wir nehmen den Schutz Ihrer persönlichen Daten sehr ernst. Wir behandeln personenbezogenen Daten vertraulich und entsprechend der gesetzlichen Vorschriften - der Datenschutz-Grundverordnung (DSGVO), sowie unserer Datenschutzerklärung. Diese kann unter www.ketelsen-roesch.de - Datenschutz eingesehen werden. GELDWÄSCHEGESETZ Die Ketelsen & Rösch Immobilien & Finanzcoaching oHG ist nach § 2 Abs. 1 Nr. 14 und § 10 Abs. 3 Geldwäschegesetz (GwG) verpflichtet, vor Begründung einer Geschäftsbeziehung die Identität des Vertragspartners festzustellen und zu überprüfen. Hierzu ist es erforderlich, dass wir die Daten Ihres Personalausweises festhalten (wenn Sie als natürliche Person handeln).
Bei einer juristischen Person benötigen wir eine Kopie des Handelsregisterauszugs, aus welchem der wirtschaftlich Berechtigte hervorgeht. Das Geldwäschegesetz sieht vor, dass der Makler die Kopien bzw. Unterlagen fünf Jahre aufbewahren muss.
WIDERRUFSBELEHRUNG Widerrufsrecht fĂĽr Verbraucher

Sie haben das Recht, binnen vierzehn Tagen ohne Angabe von GrĂĽnden diesen Vertrag zu widerrufen.

Die Widerrufsfrist beträgt vierzehn Tage ab dem Tag des Vertragsabschlusses.

Um Ihr Widerrufsrecht auszuĂĽben, mĂĽssen Sie uns

Ketelsen & Rösch Immobilien & Finanzcoaching oHG - Ruhnmark 11 - 24975 Maasbüll

Tel.: 04634 - 931031 - www.ketelsen-roesch.de

mittels einer eindeutigen Erklärung (z.B. ein mit der Post versandter Brief oder eine E-Mail) über Ihren Entschluss, diesen Vertrag zu widerrufen, informieren. Sie können dafür das beigefügte Muster-Widerrufsformular verwenden, das jedoch nicht vorgeschrieben ist.

Sie können das Muster-Widerrufsformular oder eine andere eindeutige Erklärung auch auf unserer Webseite www.ketelsen-roesch.de (Kundencenter) elektronisch ausfüllen und übermitteln. Machen Sie von dieser Möglichkeit Gebrauch, so werden wir Ihnen unverzüglich (z.B. per E-Mail) eine Bestätigung über den Eingang eines solchen Widerrufs übermitteln.

Folgen des Widerrufs

Wenn Sie diesen Vertrag widerrufen, haben wir Ihnen alle Zahlungen, die wir von Ihnen erhalten haben, einschließlich der Lieferkosten (mit Ausnahme der zusätzlichen Kosten, die sich daraus ergeben, dass Sie eine andere Art der Lieferung als die von uns angebotene, günstigste Standardlieferung gewählt haben), unverzüglich und spätestens binnen vierzehn Tagen ab dem Tag zurückzuzahlen, an dem die Mitteilung über Ihren Widerruf dieses Vertrags bei uns eingegangen ist. Für diese Rückzahlung verwenden wir dasselbe Zahlungsmittel, das Sie bei der ursprünglichen Transaktion eingesetzt haben, es sei denn mit Ihnen wurde ausdrücklich etwas anderes vereinbart; in keinem Fall werden Ihnen wegen dieser Rückzahlung Entgelte berechnet.

Haben Sie verlangt, dass die Dienstleistungen während der Widerrufsfrist beginnen sollen, so haben Sie uns einen angemessenen Betrag zu zahlen, der dem Anteil der bis zu dem Zeitpunkt, zu dem Sie uns von der Ausübung des Widerrufsrechts hinsichtlich dieses Vertrages unterrichten, bereits erbrachten Dienstleistungen im Vergleich zum Gesamtumfang der im Vertrag vorgesehenen Dienstleistungen entspricht.

Ende der Widerrufsbelehrung

MUSTER-WIDERRUFSFORMULAR

(Wenn Sie den Vertrag widerrufen wollen, dann fĂĽllen Sie bitte dieses Formular aus und senden Sie es zurĂĽck.)

An

Ketelsen & Rösch Immobilien & Finanzcoaching oHG - Ruhnmark 11 - 24975 Maasbüll

Tel.: 04634 – 931031  - www.ketelsen-roesch.de

Hiermit widerrufe(n) ich/wir () den von mir/uns () abgeschlossenen Vertrag ĂĽber die Erbringung der folgenden Dienstleistung (*)

– Bestellt am ()/erhalten am ()

– Name des/der Verbraucher(s)

– Anschrift des/der Verbraucher(s)

– Unterschrift des/der Verbraucher(s) (nur bei Mitteilung auf Papier)

– Datum

Ende des Muster-Widerrufsformulars

(*) Unzutreffendes streichen Stichworte Energiestandard: KFW55 Sonstiges/Wohnen: Dachboden

Weitere Services

Lust auf eine Besichtigung?
Eine Frage zur Immobilie?
Nachricht hinzufĂĽgen
Mit der Nutzung der oben angegebenen Telefonnummer oder durch Klicken auf „Kontaktieren“ akzeptierst Du die Allgemeinen Nutzungsbedingungen, denen Du jederzeit widersprechen kannst. Weitere Informationen zum Datenschutz

Ăśber den Anbieter

Ruhmark 11, 24975 MaasbĂĽll
partner badge
3 Jahre Partnerschaft
Herr Volker Rösch
Herr Volker RöschDein Kontakt
Online-ID: 2lvea5g
Referenznummer: 2025246
Ketelsen & Rösch Immobilien & Finanzcoaching oHG
title
Ketelsen & Rösch Immobilien & Finanzcoaching oHG
Bewertung: 5 von 5 Sternen
Nachricht hinzufĂĽgen
Mit der Nutzung der oben angegebenen Telefonnummer oder durch Klicken auf „Kontaktieren“ akzeptierst Du die Allgemeinen Nutzungsbedingungen, denen Du jederzeit widersprechen kannst. Weitere Informationen zum Datenschutz
Wie zufrieden bist du mit dieser Seite (nicht mit der Immobilie selbst)?