Version: 8.26.0Navigation überspringen
Mietkosten auf Anfrage
2 Zimmer  •  3. Geschoss
Immowelt logo

Wohnung zur Miete
Mietkosten auf Anfrage
2 Zimmer  •  3. Geschoss

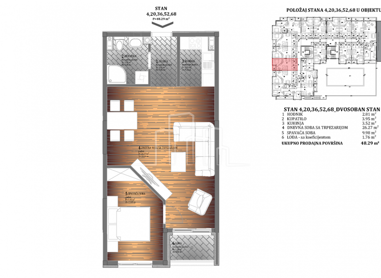
Wohnung 48m2 ein Schlafzimmer Ost Sarajevo Lamela Center

Die Immobilienagentur Stanpromet.ba hebt in ihrem Verkaufsangebot eine komfortable Einzimmerwohnung im Lamela Centar Istocno Sarajevo hervor. Standort Ost-Sarajevo, Stefana-Nemanje-Straße, Gebäude Lamela Centar. Das Projekt besteht aus einem Erdgeschoss und sechs weiteren Stockwerken sowie einer Tiefgarage, die durch Hochgeschwindigkeitsaufzüge mit den übrigen Stockwerken verbunden ist. Die Merkmale dieses Projekts sind die umfassende Erfahrung eines bereits etablierten und bewährten Investors, hochwertig gestaltete Wohnungen, bei denen jeder Quadratmeter ausgenutzt wird, große Außenöffnungen, die ein Höchstmaß an natürlichem Licht ermöglichen, hochwertige Ausbauarbeiten, eine Zentralheizung mit eigenen Kalorimetern und separate Wasserverbrauchszähler. Dies ist eine tolle Wohnung mit 1 Schlafzimmer, Badezimmer, Wohnzimmer mit Essbereich, Küche, Loggia und Eingangshalle. Verfügbare Wohnungen im 2. und 5. OG. Unter dem folgenden Link können Sie unseren detaillierten virtuellen 360°-Rundgang durch die Wohnung ansehen. Für alle Informationen rufen Sie uns an! Zertifizierte Immobilienagentur Stanpromet.ba Immobiliennummer und Datum der Entscheidung über die Erfüllung der Bedingungen für die Ausübung von Maklertätigkeiten vom Bescheinigung über die bestandene Berufsprüfung zur Ausübung der Tätigkeit eines Immobilienmaklers vom Stanpromet-Filiale Ost-Sarajevo Ost-Sarajevo, ul. Vuka Karadzica 28/1 ID CODE:

Merkmale

  • 3. Geschoss

Grundrisse

Grundrisse
1 / 1

Virtueller Rundgang

Video

Bausubstanz und Energie

Möchtest du Details zum Energieverbrauch?info_energy_calculation-icon
  • Baujahr2023
Immowelt logo

Mietkosten

Miete auf Anfrage
Provision für Mieter
Bitte beachte, das Angebot kann bei Vertragsabschluss die Zahlung einer Provision beinhalten. Weitere Informationen erhältst Du vom Anbieter.
Kaution
keine Angabe
Weitere Preisinformationen

Auf Anfrage

Lage

address-icon
Sarajevo (71000)
Fallback location image
Die Karte ist nicht verfügbar.

Weitere Informationen

Stichworte Gesamtfläche: 48,00 m², Anzahl der Schlafzimmer: 1, Anzahl der Badezimmer: 1, Anzahl der Wohn-Schlafzimmer: 1, 6 Etagen, Nebenzentrumslage

Weitere Services

Lust auf eine Besichtigung?
Eine Frage zur Immobilie?
Mit einer persönlichen Nachricht hast du bessere Chancen auf eine Antwort.
Mit der Nutzung der oben angegebenen Telefonnummer oder durch Klicken auf „Kontaktieren“ akzeptierst Du die Allgemeinen Nutzungsbedingungen, denen Du jederzeit widersprechen kannst. Weitere Informationen zum Datenschutz

Über den Anbieter

Prilaz Kikova 4, 52220 LABIN
partner badge
Partnerschaft
Hadis KadicDein Kontakt
Online-ID: 25DUVP3V5QHI
Referenznummer: 4027-503449
Wie zufrieden bist du mit dieser Seite (nicht mit der Immobilie selbst)?