4562ALC Energieeffiziente Neubauvilla zum Verkauf in Alcalalí
Hochwertige, energieeffiziente Häuser in Alcalalí mit herrlichem Blick auf das Tal.
Entdecken Sie eine einzigartige Wohnmöglichkeit im Herzen des Jalon-Tals: Residencial VALL DE POP, ein exklusives Projekt bestehend aus 35 Grundstücken mit modernen, freistehenden Einfamilienhäusern. Auf einer Anhöhe in Alcalalí gelegen, bieten diese Villen einen atemberaubenden Panoramablick über das Tal.
Diese Villen zeichnen sich durch ihre einzigartige Bauweise mit einem fortschrittlichen 3D-Mikrobeton-Paneelsystem aus, das ein außergewöhnlich hohes Maß an Wärmedämmung, Luftdichtheit und struktureller Festigkeit erreicht - und das alles innerhalb der üblichen Preisklasse. Dank mehrerer Dämmplatten ohne Wärmebrücken, luftdichter Anschlüsse und erneuerbarer Energieerzeugung durch Aerothermie sind diese Häuser so konzipiert, dass sie die strengen Anforderungen einer Passivhaus-Zertifizierung erfüllen. Obwohl die offizielle Zertifizierung noch von der letzten Prüfung abhängt, ist bereits jetzt klar, dass der Energieverbrauch minimal sein wird und die Häuser zu den energieeffizientesten auf dem Markt gehören werden.
Wählen Sie aus drei sorgfältig entworfenen Hausmodellen, die alle nach Süden ausgerichtet sind, um das ganze Jahr über optimale Lichtverhältnisse und Komfort zu gewährleisten.
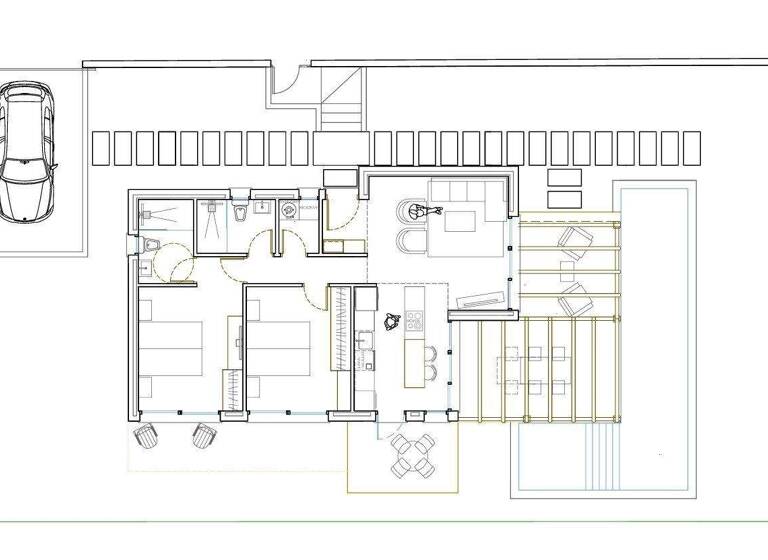
Modell Tiny
Ein durchdachtes Haus mit einer bebauten Fläche von 140 m² mit 2 komfortablen Schlafzimmern und 2 modernen Badezimmern. Ideal für Familien oder als praktisches Ferienhaus. Alles, was Sie brauchen, in einer intelligenten und effizienten Aufteilung für 440.000 EUR.
Modell Medium
Ein neuer Grundriss mit einem geräumigeren Wohnzimmer und Hauptschlafzimmer. Genießen Sie zusätzlichen Wohnkomfort und mehr Lebensraum, sowohl innen als auch außen, für 466.000 EUR.
Modell Spacious
Eine Villa mit dem gleichen Grundriss wie das Modell Tiny, aber mit einer bebauten Fläche von 155 m² für 490.500 EUR.
Die Pläne und Renderings stammen vom Modell Tiny, Pläne anderer Modelle sind auf Anfrage erhältlich.
Die Villen werden mit einer voll ausgestatteten offenen Küche mit BOSCH-Einbaugeräten, Granitarbeitsplatte und einer Kochinsel mit Induktionskochfeld ausgestattet. Die Badezimmer werden mit hochwertigen Badezimmermöbeln der Marke Porcelanosa und einer modernen Regendusche ausgestattet.
Darüber hinaus stehen mehr als 30 Grundstücke zur Verfügung, sodass Sie das Grundstück wählen können, das Ihren Wünschen am besten entspricht.
Ein Garten ist optional und nicht im Standardpreis enthalten - dies bietet Flexibilität für diejenigen, die den Außenbereich selbst gestalten möchten. Jede Villa verfügt jedoch über mehrere Terrassen, Pergolen und einen gepflasterten Parkplatz. Dank der strategischen Lage genießen Sie Privatsphäre, Ruhe und Natur, während das gemütliche, historische Zentrum von Alcalalí und andere Annehmlichkeiten zu Fuß erreichbar sind.
Eine einzigartige Gelegenheit, Ihre eigene moderne Neubauvilla im Jalon-Tal zu besitzen.
Weitere Informationen auf Anfrage.