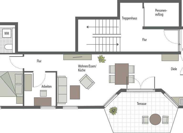
2 1/2-Zimmer-Wohnung im Erdgeschoss mit Terrasse und Gartenanteil.
In der Arcostr. 7 a entsteht ein Mehrfamilienhaus mit 8 Eigentumswohnungen mit 2, 3, 4 und 5 Zimmern - ideal für Singles, Paare und Familien.
Zu jeder Wohnung gehört ein eigener Kellerraum und mit dem Aufzug sind alle Etagen bequem erreichbar. Für Fahrräder oder Kinderwägen ist im Untergeschoss ein gemeinschaftlicher Kellerraum vorhanden.
Im Innenhof befindet sich ein Spielplatz, welcher sowohl als Rückzugsort als auch als Treffpunkt für Familien und Nachbarn dient.
Merkmale
Bezug: Sommer 2027
Erdgeschoss
Personenaufzug
Gäste-WC
Keller
Balkon
Garten
Alle Wohnungen verfügen über eine Terrasse oder Balkon. Die Beheizung erfolgt über eine zentrale Fußbodenheizung mit zentraler Warmwasserversorgung.
Moderne Fliesen, Parkettböden und Sanitärgegenstände sind gemäß Baubeschreibung im Preis enthalten und können im Rahmen eines Mustersortiments ausgesucht werden.
Natürlich sind auch individuelle Ausstattungen auf Anfrage möglich, so dass Sie Ihr neues Zuhause nach Ihren Vorstellungen gestalten können.
Grundrisse
Grundrisse
1 / 2
Realisiere Dein Projekt
Bausubstanz und Energie
Möchtest du Details zum Energieverbrauch?
Zustand der ImmobilieErstbezug
HeizungsartFußbodenheizung
EnergieträgerLuft-/Wasser-Wärmepumpe
Preisdetails
Kaufpreis
565000 €565.000 €
8.155,31 €/m²
Provision für Käufer
provisionsfrei
Geschätzte Gesamtkosten
610.200 €1
Kaufpreis
565.000 €
Kaufnebenkosten
45.200 €
2
Notarkosten (1,5%)
8.475 €
Grunderwerbsteuer (6%)
33.900 €
Grundbucheintrag (0,5%)
2.825 €
1Der angezeigte Wert ist eine automatisch berechnete Schätzung von immowelt.
2Bei den Angaben handelt es sich um ortsübliche Werte. Individuelle Kosten können abweichen.
Lage
Arcostraße 7, Charlottenburg, Berlin (10587)
Charlottenburg - gelegen im westlichen Teil Berlins, vereint Geschichte, Kultur, Shopping und Kreativität in einem eleganten, gut angebundenen Stadtteil.
Traditionelle Handwerksbetriebe finden sich hier ebenso wie junge Start-ups und die TU-Berlin. Nahe gelegene Erholungsorte wie das Spree-Ufer, der Schlosspark oder den Lietzenseepark finden Sie in Charlottenburg ebenso wie viele Cafés, Restaurants und Bars.
Kurz gesagt: Hier lässt es sich gut Leben.
Weitere Informationen
Sonstiges
Alle Fragen rund um den Wohnungskauf wird Ihnen die Firma Wohnquadrat Berlin GmbH - welche wir mit dem Vertrieb beauftragt haben - schnell und zuverläsig beantworten. Ihre Anfrage leiten wir zur Konaktaufnahme gern weiter.
Energiepass
Energieausweis wird bei Besichtigung vorgelegt.
Stichworte
Anzahl der Schlafzimmer: 1, Anzahl der Badezimmer: 1, Anzahl Balkone: 1, Balkon-Terrassen-Fläche: 12,56 m², Bundesland: Berlin, 4 Etagen