Version: 8.25.1Navigation überspringen
275.000 €
79 m²
Immowelt logo

Wohnung zum Kauf
275000 €
3.481 €/m²
79 m²

Située im beliebten oberen Viertel von Calahonda: Stilvolle Zweizimmerwohnung mit Meerblick

In dem begehrten Viertel des oberen Calahonda bietet dieses wunderschöne Zwei-Zimmer-Apartment einen atemberaubenden Panorama-Blick auf das Meer sowie eine helle und geräumige Raumaufteilung in allen Zimmern. Die Unterkunft besteht aus zwei Doppelzimmern, davon das Hauptzimmer en suite, während ein separates Badezimmer das zweite Schlafzimmer bedient. Die Küche ist voll ausgestattet und verfügt über eine Waschküche, während das Wohnzimmer, groß und hell, über einen gemütlichen Kamin und direkten Zugang zu einer sonnigen, südlich ausgerichteten Terrasse verfügt. Die Terrasse ist auch mit dem Hauptzimmer verbunden, sodass Sie die spektakulären Meerblicke sowohl von innen als auch von außen genießen können. Zu den weiteren Merkmalen gehören Klimaanlage im Wohnzimmer und im Hauptschlafzimmer. In einer gepflegten Wohnanlage können die Bewohner zwei Pools und grüne Gärten nutzen. Die Gemeinschaftsparkplätze liegen günstig in der Nähe des Eingangs. Ideal gelegen nur wenige Schritte vom beliebten Komplex Miel y Nata entfernt, der drei Restaurants, eine Bar, eine Bushaltestelle und eine Taxistation bietet. Der Strand und eine breite Palette an Dienstleistungen befinden sich nur drei Autominuten entfernt.

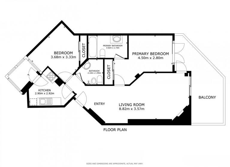
Grundrisse

Grundrisse
1 / 1

Realisiere Dein Projekt

Bausubstanz und Energie

Möchtest du Details zum Energieverbrauch?info_energy_calculation-icon
Immowelt logo

Preisdetails

Kaufpreis
275000 €
3.481,01 €/m²
Provision für Käufer
Bitte beachte, das Angebot kann bei Vertragsabschluss die Zahlung einer Provision beinhalten. Weitere Informationen erhältst Du vom Anbieter.

Lage

address-icon
Mijas Costa (29649)
Der Anbieter hat die genaue Adresse nicht freigegeben

Weitere Services

Lust auf eine Besichtigung?
Eine Frage zur Immobilie?
Nachricht hinzufügen
Mit der Nutzung der oben angegebenen Telefonnummer oder durch Klicken auf „Kontaktieren“ akzeptierst Du die Allgemeinen Nutzungsbedingungen, denen Du jederzeit widersprechen kannst. Weitere Informationen zum Datenschutz

Über den Anbieter

Green AcresMaklerbüro
100 Bd du Montparnasse, 75014 PARIS
partner badge
Partnerschaft
Green-AcresDein Kontakt
Keine Telefonnummer hinterlegt
Keine Telefonnummer hinterlegt
Online-ID: 26YN7EI4SCMW
Referenznummer: st6270
Green Acres
Nachricht hinzufügen
Mit der Nutzung der oben angegebenen Telefonnummer oder durch Klicken auf „Kontaktieren“ akzeptierst Du die Allgemeinen Nutzungsbedingungen, denen Du jederzeit widersprechen kannst. Weitere Informationen zum Datenschutz
Wie zufrieden bist du mit dieser Seite (nicht mit der Immobilie selbst)?