Version: 8.25.1Navigation überspringen
229.000 €
3 Zimmer  •  72 m²  •  2. Geschoss
Immowelt logo

Wohnung zum Kauf
229000 €
3.181 €/m²
3 Zimmer  •  72 m²  •  2. Geschoss

+ 3-Zi.-Wohnung mit 72 qm Wfl. * 2 Balkone * TL-Bad * Einzelgarage + Top-Lage! +

Wir freuen uns Ihnen diese schöne, helle und in Halbhöhenlage liegende 3-Zimmerwohnung zum Kauf anbieten zu dürfen. Die Wohnung befindet sich im Obergeschoss eines gepflegten Mehrfamilienhauses in Wohnlage in Stuttgart-Rohracker.

In angenehmer und ruhiger Wohnlage von Stuttgart-Rohracker befindet sich diese helle und gut geschnittene Wohnung in einem gepflegten 3-/4-Familienhaus aus dem Baujahr 1957.

Mit einer Wohnfläche von ca. 72 m² bietet die Immobilie ein komfortables Zuhause.

Die Wohnung überzeugt mit einem durchdachten Grundriss. Besonders hervorzuheben sind die zwei Balkone, die zusätzlichen Freiraum im Alltag bieten und zum Entspannen im Freien einladen.

Die Wohnung befindet sich in einem teilrenovierungsbedürftigen Zustand und bietet daher eine hervorragende Gelegenheit für Käufer, ihre eigenen Wohnideen zu verwirklichen.

Praktische Abstellmöglichkeiten bieten zwei separate Kellerräume im Untergeschoss mit einer Nutzfläche von ca. 9 m².

Ein besonderer Vorteil: Die Wohnung steht derzeit leer und ist ab sofort frei verfügbar, sodass Sie sowohl zur sofortigen Eigennutzung als auch als attraktive Kapitalanlage genutzt werden kann.

Die Kombination aus guter Wohnlage, attraktivem Grundriss, zwei Balkonen sowie der eigenen Garage macht diese Wohnung zu einer interessanten Gelegenheit in Stuttgart-Rohracker.

Merkmale

  • Bezug: Sofort
  • 2. Geschoss
  • Badezimmer: Bad mit Dusche, Bad mit Fenster
  • Keller
  • Balkon
  • Garage
** AUSSTATTUNG AUF EINEN BLICK:
- Gute Wohnlage in Stuttgart-Rohracker
- 3-/4-Familienhaus, Baujahr 1957
- ca. 72 m² Wohnfläche
- 2 Kellerräume mit ca. 9 m² Nutzfläche
- modernisiertes Tageslicht-Badezimmer mit Dusche, WC, Waschtisch, gefliest (2011)
- 2 Balkone
- Kunststoff-Isolierglasfenster
- Nachtspeicher-Einzelöfen (Umrüstung auf Gas-Etagenheizung möglich)
- Helle und gut geschnittene Räume
- teilrenovierungsbedürftig
- nicht vermietet/sofort frei
- Einzelgarage (KP: 20.000,- EUR)

Haben wir Ihr Interesse geweckt? Für weitere Informationen oder zur Vereinbarung eines Besichtigungstermins stehen wir Ihnen gerne zur Verfügung und freuen uns auf Ihre Kontaktaufnahme.

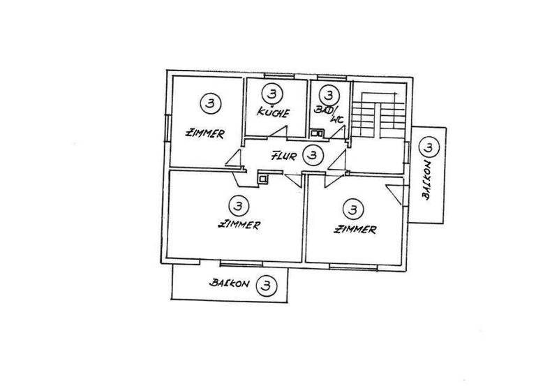
Grundrisse

Grundrisse
1 / 1

Realisiere Dein Projekt

Bausubstanz und Energie

Energieausweis

G
  • Baujahr1957
  • Zustand der Immobilierenovierungsbedürftig / sanierungsbedürftig
  • EnergieträgerElektro
Immowelt logo

Preisdetails

Kaufpreis
229000 €
3.180,56 €/m²
Preis pro Stellplatz
20000 €
Provision für Käufer
3,57 % inkl. 19 % MwSt. inkl. MwSt.
Bei Abschluss eines Kaufvertrages wird eine Vermittlung-/ Nachweisprovision in Höhe von 3,57 % inklusive 19,00 % MwSt. auf den Kaufpreis vom Käufer fällig.
Weitere Preisinformationen
1 Garagenstellplatz, Kaufpreis: 20.000,00 EUR
Geschätzte Gesamtkosten
253.205 €1
Kaufpreis
229.000 €
Notarkosten (1,5%)
3.435 €
Grunderwerbsteuer (5%)
11.450 €
Provision für Käufer (3,57%)
8.175 €
Grundbucheintrag (0,5%)
1.145 €
1Der angezeigte Wert ist eine automatisch berechnete Schätzung von immowelt.
2Bei den Angaben handelt es sich um ortsübliche Werte. Individuelle Kosten können abweichen.

Lage

address-icon
RohrackerStuttgart (70329)
Der Anbieter hat die genaue Adresse nicht freigegeben
Die Wohnung befindet sich im beliebten Stuttgarter Stadtteil Rohracker. Die Wohnlage zeichnet sich durch eine angenehme Mischung aus ruhigem Wohnen und guter Anbindung an die Innenstadt aus.

Das Grundstück liegt in begehrter Halbhöhenlage in Stuttgart-Rohracker in perfekter Süd-West-Ausrichtung und mit einer fantastischen Aussicht.

Rohracker ist über die Ausfahrt Hedelfingen an die Bundesstraße 10, in Hedelfingen an die Stadtbahn-Linien U9 (Hauptbahnhof) und U13 (Feuerbach) sowie über die Buslinie 62 verkehrstechnisch angebunden. Eine Zufahrtsmöglichkeit aus Stuttgart oder Stuttgart-Degerloch kommend besteht ebenfalls über den Ortsteil Frauenkopf.

Mit dem Pkw erreichen Sie die Stuttgarter Innenstadt innerhalb von ca. 15 Minuten.

Die nächste Bushaltestelle ist bequem in ca. 5 Minuten zu Fuß zu erreichen.

Weitere Informationen

Sonstiges KAUFPREIS WOHNUNG: 229.000,- EUR
KAUFPREIS EINZELGARAGE : 20.000,- EUR
GESAMT: 249.000,- EUR

AKTUELLE NUTZUNG: NICHT VERMIETET / SOFORT FREI

Angaben Energieausweis:
. Bedarfsenergiekennwert: 248,3 kWh/qm*a
. Energieeffizienzklasse: "G"
. wesentlicher Energieträger: Strom
. Baujahr Gebäude: 1957
. Baujahr Wärmeerzeuger: 2000, 2011
. Ausweis gültig bis: 23.03.2036

WICHTIG:
Bitte haben Sie Verständnis, dass wir bei Interesse
. Ihren vollständigen Namen
. Ihre Wohnanschrift sowie
. Ihre E-Mail-Adresse und Telefonnummer benötigen.

Die von uns gemachten Informationen beruhen auf Angaben des Verkäufers. Für die Richtigkeit und Vollständigkeit der Angaben kann keine Gewähr bzw. Haftung übernommen werden. Ein Zwischenverkauf und Irrtümer sind vorbehalten.

Eine Besichtigung ist auf ausdrücklichen Wunsch des Eigentümers nur in unserer Begleitung erwünscht. Bitte vereinbaren Sie deshalb mit uns einen Termin.

Selbstverständlich stehen wir Ihnen für weitere Fragen jederzeit gerne zur Verfügung. Wir freuen uns auf Ihre Anfrage!

Zondler & Costanzo Immobilien
Ihre Spezialisten rund um die Immobilie! Stichworte Garage vorhanden, Nutzfläche: 10,00 m², Anzahl der Schlafzimmer: 2, Anzahl der Badezimmer: 1, Anzahl Balkone: 2, Kellerfläche: 10,00 m², 1 Etagen, modernisiert: 2011

Weitere Services

Lust auf eine Besichtigung?
Eine Frage zur Immobilie?
Nachricht hinzufügen
Mit der Nutzung der oben angegebenen Telefonnummer oder durch Klicken auf „Kontaktieren“ akzeptierst Du die Allgemeinen Nutzungsbedingungen, denen Du jederzeit widersprechen kannst. Weitere Informationen zum Datenschutz

Über den Anbieter

Biberacher Straße 69, 70327 Stuttgart
partner badge
6 Jahre Partnerschaft
Herr Matthias ZondlerDein Kontakt
Keine Telefonnummer hinterlegt
Keine Telefonnummer hinterlegt
Online-ID: 26V1TYUY34RK
Referenznummer: 8967#9u7RBw
Zondler & Costanzo Immobilien GbR
Zondler & Costanzo Immobilien GbR
Bewertung: 4 von 5 Sternen
Nachricht hinzufügen
Mit der Nutzung der oben angegebenen Telefonnummer oder durch Klicken auf „Kontaktieren“ akzeptierst Du die Allgemeinen Nutzungsbedingungen, denen Du jederzeit widersprechen kannst. Weitere Informationen zum Datenschutz
Wie zufrieden bist du mit dieser Seite (nicht mit der Immobilie selbst)?