Familienidyll mit Raum für Ideen - wandelbares Wohnen in bester Lage
Dieses außergewöhnliche Anwesen überzeugt durch eine großzügige Raumaufteilung, eine hochwertige Ausstattung und einen liebevoll gestalteten, naturnahen Garten.
Dank der durchdachten Architektur lässt sich die Immobilie flexibel an Ihre individuellen Bedürfnisse anpassen - ob als großzügiges Einfamilienhaus wie bisher, als Mehrgenerationendomizil oder als Anlageobjekt mit bis zu fünf Wohneinheiten. Auch eine teilweise gewerbliche Nutzung ist denkbar.
Am Ende dieses Exposés stellen wir Ihnen eine ansprechende Beispielvariante mit drei separaten Wohneinheiten vor.
Doch zunächst geben wir Ihnen einen detaillierten Überblick über den aktuellen Bestand.
Dieses großzügige Wohnhaus wurde ursprünglich 1964 als Zweifamilienhaus mit einer Wohn- und Nutzfläche von ca. 200 m² errichtet. Im Jahr 1992 erfolgte eine Erweiterung, bei der zusätzliche 160 m² Wohnfläche geschaffen wurden. Im Rahmen dieser Baumaßnahmen erhielt der Anbau eine Gasheizung, die Isolierung des Altbaus wurde verbessert und das Dach wurde vollständig erneuert. Ein zusätzlicher Balkon im Dachgeschoss sorgt für noch mehr Freiraum.
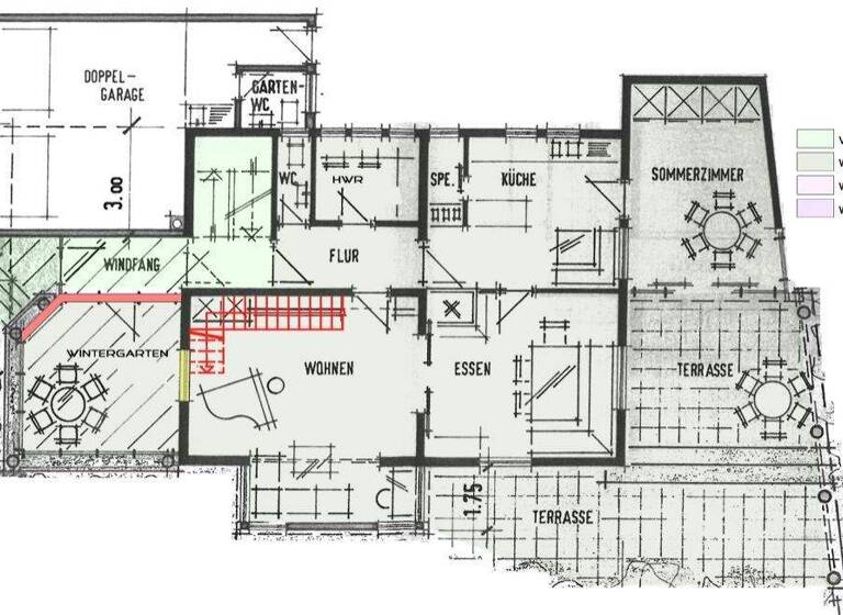
Das Erdgeschoss beeindruckt durch seine Großzügigkeit. Es umfasst ein großes Wohnzimmer mit Erker, ein Esszimmer mit edler Holzvertäfelung und Kachelofen sowie eine Küche mit direktem Zugang zur Terrasse. Zudem finden Sie hier einen Hauswirtschaftsraum und eine separate Toilette. Ein weiteres Zimmer im Eingangsbereich kann als Wintergarten oder Büro genutzt werden. Die Terrasse bietet einen überdachten Bereich, der als Sommerzimmer dient.
Das Obergeschoss ist in zwei Wohnbereiche unterteilt. Eine Einheit verfügt über zwei Zimmer plus Bad, die andere bietet drei Zimmer und ebenfalls ein eigenes Bad. In beiden Einheiten gibt es derzeit noch keine Küchen, ein Küchenanschluss ist in dem kleineren Apartmentbereich bereits vorhanden. Besonders hervorzuheben ist der überdachte Balkon, der von allen Zimmern der größeren Einheit zugänglich ist.
Im Dachgeschoss stehen drei Zimmer, ein Bad, ein Abstellraum sowie eine vorbereitete Küche zur Verfügung. Auch in diesem Geschoss gibt es einen großen, überdachten Balkon, der zusätzlichen Wohnkomfort bietet.
Das Haus ist voll unterkellert und bietet neben den üblichen Funktionsräumen ausreichend Abstellfläche. Der Garten liegt versteckt hinter dem Haus und bietet mit seinem alten Baumbestand, den Buntsandsteinen und den Rhododendren ein idyllisches Rückzugsgebiet.
Ausstattung:
Die Architektur des Hauses überzeugt durch die harmonische Kombination von Holz- und Putzelementen, die ihm eine zeitlose Eleganz verleihen. Im Inneren wurde Wert auf hochwertige Materialien gelegt: Wetterfeste Kupferverwahrungen am Dach und im Sockelbereich, Solnhofener Platten im Eingangsbereich und Wintergarten, Echtholzparkett, Fliesenböden und helle Wände mit Raufaser oder Putz schaffen eine harmonische Atmosphäre.
Auf Wunsch lässt sich das Haus mit überschaubarem Aufwand in ein attraktives 3-Parteienhaus umgestalten. Denkbar sind dabei eine weitläufige, zweigeschossige Hauptwohnung, die über eine innenliegende Treppe mit dem Obergeschoss verbunden ist. Diese Einheit eignet sich hervorragend für eine Familie mit mehreren Personen und bietet mit zwei Terrassen im Erdgeschoss, einem großen Balkon im Obergeschoss sowie dem angrenzenden Garten viel Freiraum und Lebensqualität - ideal für Familien mit Kindern.
Zusätzlich stehen im ersten Obergeschoss ein separates Apartment mit Küche und Bad sowie im Dachgeschoss eine eigenständige 3-Zimmer-Wohnung zur Verfügung - perfekt zur Vermietung und als zusätzliche Einkommensquelle. Die Pläne für diese dreiteilige Nutzung finden Sie bei den Bildern des Exposés.
Weitere Planungsvarianten stellen wir Ihnen auf Wunsch gerne zur Verfügung. Die Umbaukosten für die reine Neuaufteilung ohne Innenausbau variieren je nach Ausführung zwischen € 22.000 bis zu ca. € 40.000.