Version: 8.25.1Navigation überspringen
225.000 €
463 m² Grundstück
Immowelt logo

Grundstück zum Kauf
225000 €
486 €/m²
463 m² Grundstück

Grundstück mit Baugenehmigung für ein kleines Mehrfamilienhaus oder Einfamilienhaus

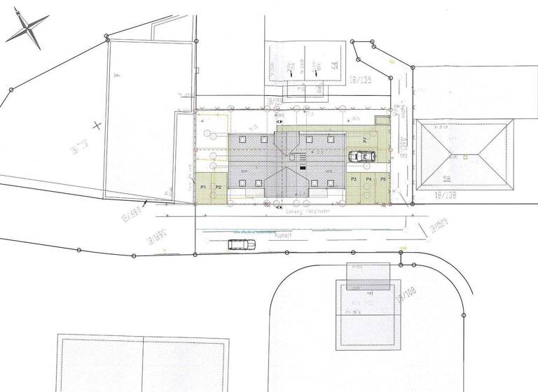
Bei diesem Immobilienangebot handelt es sich um ein ca. 463 m² großes Baugrundstück in einer gewachsenen Einfamilienhaussiedlung im grünen Krostitz. Für das Grundstück liegt eine Baugenehmigung vor, die zulässig ist für den Bau eines Mehrfamilienhauses mit vier Geschossflächen. Insgesamt sollen sechs Wohneinheiten auf einer vermietbaren Fläche von ca. 363,29 m² entstehen. Für jede Wohneinheit ist ein PKW-Stellplatz und ein Fahrradstellplatz vorgesehen.

Ebenfalls ist die Bebauung mit einem Einfamilienhaus möglich.

Das Grundstück ist voll erschlossen. Alle Medien liegen straßenseitig an.

Ausstattung:

- ca. 463 m² großes Baugrundstück
- Wohnfläche/vermietbare Fläche: 363,29 m²
- Baugenehmigung liegt vor (bis 2023)
- MFH mit 6 Wohneinheiten
- 7 Stellplätze
- straßenseitig erschlossen (Strom/Wasser/Abwasser)
- zum Teil eingezäunt

Weitere Informationen erhalten Sie gern auf Anfrage!


" frisch, engagiert, solide "

Die Künne Immobilien Gruppe ist professioneller Dienstleister der Immobilienbranche und steht Ihnen in den Bereichen Projektentwicklung, Verkauf, Vermietung, Verwaltung und Facility Management zur Verfügung.

Für weitere Informationen und Einblicke besuchen Sie unsere Homepage: www.kuenne-gruppe.de Sie wollen Ihre Immobilie verkaufen? Egal ob Mehrfamilien- oder Einfamilienhaus, Eigentumswohnung, Grundstück oder Neubau- bzw. Bauträgerprojekt. Wir vermitteln kompetent, transparent und zügig Ihre Immobilie, bundesweit.

Merkmale

  • 463 m² Grundstück
  • voll erschlossen

Grundrisse

Grundrisse
1 / 1

Realisiere Dein Projekt

Bausubstanz und Energie

Möchtest du Details zum Energieverbrauch?info_energy_calculation-icon
Immowelt logo

Preisdetails

Kaufpreis
225000 €
485,96 €/m²
Provision für Käufer
13.387,50 €
Geschätzte Gesamtkosten
225.000 €1
Kaufpreis
225.000 €
1Der angezeigte Wert ist eine automatisch berechnete Schätzung von immowelt.

Lage

address-icon
Krostitz (04509)
Der Anbieter hat die genaue Adresse nicht freigegeben
Der Ort Krostitz befindet sich nördlich der Leipziger Innenstadt. Die Nähe zur City, zur A14 und zum Flughafen zeichnet die Attraktivität dieser Lage aus.
Hier befinden sich ein sehr schöner Kindergarten, die Grund- und die Mittelschule. Gute Einkaufmöglichkeiten, eine Apotheke und Ärzte sind fußläufig zu erreichen.
Das Lebenswerte in Krostitz und seinen Ortsteilen ist der Mix aus ländlicher Idylle, der Nähe zur Großstadt, eine optimale Verkehrsanbindung und nicht zuletzt die hervorragend ausgebaute Infrastruktur mit Erziehung, Handel und Gewerbe, Nahverkehr und sozialen Einrichtungen. Der Ort befindet sich 5 Minuten von BMW-Gelände und 15 Fahrminuten von Leipzig entfernt. Die Nächste Einkaufsmöglichkeit befindet sich 100 Meter entfernt. In ca. 20 Fahrminuten erreichen Sie den Schladitzer See. In ca. 500 Meter befindet sich die überregional bekannte'Krostitzer Brauerei'.

Weitere Informationen

Stichworte Bundesland: Sachsen

Weitere Services

Lust auf eine Besichtigung?
Eine Frage zur Immobilie?
Nachricht hinzufügen
Mit der Nutzung der oben angegebenen Telefonnummer oder durch Klicken auf „Kontaktieren“ akzeptierst Du die Allgemeinen Nutzungsbedingungen, denen Du jederzeit widersprechen kannst. Weitere Informationen zum Datenschutz

Über den Anbieter

Käthe-Kollwitz-Straße 58c, 04109 Leipzig
Online-ID: 23K1QJ2KIXJS
Referenznummer: 585689
Marko Künne Immobilien
Marko Künne Immobilien
Bewertung: 4 von 5 Sternen
Nachricht hinzufügen
Mit der Nutzung der oben angegebenen Telefonnummer oder durch Klicken auf „Kontaktieren“ akzeptierst Du die Allgemeinen Nutzungsbedingungen, denen Du jederzeit widersprechen kannst. Weitere Informationen zum Datenschutz
Wie zufrieden bist du mit dieser Seite (nicht mit der Immobilie selbst)?