Version: 8.22.4Navigation überspringen
52.240 €
3.265 m² Bürofläche
Immowelt logo

Bürofläche zur Miete - Erstbezug
52240 €
Nettomiete zzgl. NK
3.265 m² Bürofläche

DAS HAFENPORTAL - Neubauprojekt 3.250 M² Bürofläche

MODERN - FLEXIBEL - HOCHWERTIG - NACHHALTIG

QUICKFACTS
Bürofläche: ca. 3.265 m²
Stockwerk: 4. OG + 5. OG + 6. OG
Nutzfläche gesamt: ca. 18.000 m² (ca. 2/3 bereits an globales Unternehmen mit AAA-Rating vermietet)
Raumaufteilung: individuell gestaltbar
Parkplätze: Tiefgaragenparkplätze anmietbar
Nettomiete / m²: ab € 16,00
Bezugstermin: nach Vereinbarung

OBJEKTBESCHREIBUNG
Das Hafenportal Projekt ist der perfekte Ankerplatz für zukunftsorientierte Unternehmen welche einen hochwertigen Standort suchen. Die Umsetzung des über 18.000 m² großen Gewerbeensembles mit Geschäftsflächen im Erdgeschoss und Büroeinheiten in den 6 Obergeschossen schreitet rasch voran und die Fertigstellung des Gebäudes wurde bereits abgeschlossen. Der flexible Grundriss erlaubt dem zukünftigen Mieter die Fläche individuell zu gestalten und die Raumaufteilung zu konfigurieren.

Das Grundausstattungspaket beinhaltet einen belagsfertigen Doppelboden, ein integriertes Heiz- und Kühlsystem in der Decke, teilweise öffenbare Fenster sowie zusätzliche Lüftung über Bodeninduktivauslässe für optimale Frischluftversorgung, elektrische Raffstores außen sowie eine effiziente LED Grundbeleuchtung. Zukünftigen Mietern ermöglicht diese hervorragende Grundstruktur Büros nach besten Standards auszustatten.

Folgende Büroflächen sind im Bauteil C noch verfügbar:

Stockwerk Bürofläche (zzgl. Nebenflächen)

1. Obergeschoss bereits vermietet

2. Obergeschoss bereits vermietet

3. Obergeschoss bereits vermietet

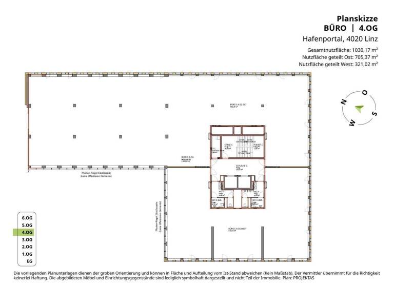
4. Obergeschoss ca. 1.030 m²

5. Obergeschoss ca. 1.035 m²

6. Obergeschoss ca. 1.034 m²

Geschäftsflächen
Zusätzlich ist im Erdgeschoss des Bauteils B eine gut sichtbare Geschäftsfläche mit ca. 218 m² derzeit noch zu mieten.

Wir freuen uns Ihnen dieses hochwertige Projekt präsentieren zu dürfen und die passende Fläche für Ihr Unternehmen zu empfehlen.

LAGE & VERKEHRSANBINDUNG
Das Hafenportal liegt an der Industriezeile/Regensburgerstrasse im Linzer Handelshafen mit rascher Anbindung an die Stadtautobahn A7 (Anschluss Hafenstrasse oder Prinz-Eugen-Straße) und in der Folge der A1. Die im Gebäude integrierte Bushaltestelle garantiert eine ideale öffentliche Verkehrsverbindung. Eine Buslinie bietet eine schnelle Verbindung zum Hauptbahnhof in nur ca. 15 Minuten. Mit dem Fahrrad ist das Hafenportal über das gut ausgebaute Radwegnetz von Linz ebenfalls ausgezeichnet erreichbar. Parkplätze sind in der hauseigenen Tiefgarage für € 125,00 netto zzgl. Betriebskosten anmietbar. Weitere Parkhausflächen sind in unmittelbarer Nähe ebenfalls vorhanden.

AUSSTATTUNG
Zustand: Erstbezug
Fassade: Alu-Glas-Konstruktion
Boden: belagsfertiger Doppelboden
Fenster: Kunststofffenster (teilweise öffenbar)
Sonnenschutz: elektrische Raffstores außenliegend
Decke: Heiz-/Kühldecke
Beleuchtung: LED Grundbeleuchtung
Datenverkabelung: mieterseits
Zutrittssystem: elektronische Schließanlage
Heizung: Deckenheizung Fernwärme (Betonkernaktivierung)
Klima: Deckenkühlung Fernkälte (Betonkernaktivierung)
Lift: 2 pro Baukern mit 1150 kg Nutzlast (15 Personen)
Sanitäranlagen: getrennt in jedem Stockwerk
Brandmeldeanlage: vorhanden

KONDITIONEN (NETTO)
Miete: ab € 16,00 / m² / Monat
Betriebskosten: € 2,29 / m² / Monat
Parkplätze: € 125,00 zzgl. € 25,00 BK je Parkplatz
Heiz-/Kühlkosten: € 0,74 / m² / Monat
Strom: nach Verbrauch
Wasser: nach Verbrauch
Befristung: nach Vereinbarung ab 5 Jahre
Kaution: 3 - 6 BMM
Provision: 3 BMM

Zögern Sie nicht uns bei etwaigen Rückfragen oder zur Vereinbarung eines unverbindlichen Besichtigungs- bzw. Beratungstermines zu kontaktieren. Unser Team steht Ihnen gerne zur Verfügung! Ihr Ansprechpartner: Herr Claudio Feistritzer (0664 / 12 88 000 bzw. 0732 / 77 0 88 5-22)

PS: Zahlreiche weitere Immobilien finden Sie auf unserer Homepage unter www.projektas.at
Hinweis: Wir verarbeiten personenbezogene Daten zu geschäftlichen Zwecken. Nähere Informationen finden Sie unter www.projektas.at
Angaben gemäß gesetzlichem Erfordernis:
Miete 52240 zzgl 20% USt.
Betriebskosten 7476,85 zzgl 20% USt.
Heizkosten 2416,1 zzgl 20% USt.
Umsatzsteuer 12426,59
------------------------------------------------------------------
Gesamtbetrag 74559,54
------------------------------------------------------------------
Heizwärmebedarf:30.5 kWh/(m²a)
Klasse Heizwärmebedarf:A
Faktor Gesamtenergieeffizienz:0.85

Merkmale

  • Personenaufzug
  • Rollstuhlgerecht
  • Raumaufteilung flexibel
  • voll klimatisiert
  • Bodenbelag: Doppelboden

Grundrisse

Grundrisse
1 / 4

Realisiere Dein Projekt

Bausubstanz und Energie

Heizwärmebedarf (HWB)

A

Gesamtenergieeffizienz (fGEE)

  • Zustand der ImmobilieNeubau, Erstbezug
  • HeizungsartZentralheizung
  • EnergieträgerFernwärme
Immowelt logo

Mietkosten

Gesamtmiete
74.559,54 €
Nettokaltmiete
52.240 €
Betriebskosten
11.871,54 €
Provision für Mieter
Bitte beachte, das Angebot kann bei Vertragsabschluss die Zahlung einer Provision beinhalten. Weitere Informationen erhältst Du vom Anbieter.
Kaution
225000 €
Weitere Preisinformationen
Nettokaltmiete: 52.240,00 EUR

Lage

address-icon
IndustriezeileLustenauLinz (4020)

Weitere Informationen

Stichworte Nutzfläche: 3.265,00 m², Anzahl der separaten WCs: 12, Bundesland: Oberösterreich, Stadtzentrumslage Sonstiges: Neubaustandard

Weitere Services

Lust auf eine Besichtigung?
Eine Frage zur Immobilie?
Nachricht hinzufügen
Mit der Nutzung der oben angegebenen Telefonnummer oder durch Klicken auf „Kontaktieren“ akzeptierst Du die Allgemeinen Nutzungsbedingungen, denen Du jederzeit widersprechen kannst. Weitere Informationen zum Datenschutz

Über den Anbieter

Promenade 9, 4020 LINZ
partner badge
Partnerschaft
Herr Claudio Feistritzer
Herr Claudio FeistritzerDein Kontakt

Weitere Unterlagen

Online-ID: 2nktz5e
Referenznummer: 2713/8521
Projektas - Feistritzer Hinz GmbH & Co OG
title
Projektas - Feistritzer Hinz GmbH & Co OG
Bewertung: 4,8 von 5 Sternen
Nachricht hinzufügen
Mit der Nutzung der oben angegebenen Telefonnummer oder durch Klicken auf „Kontaktieren“ akzeptierst Du die Allgemeinen Nutzungsbedingungen, denen Du jederzeit widersprechen kannst. Weitere Informationen zum Datenschutz
Wie zufrieden bist du mit dieser Seite (nicht mit der Immobilie selbst)?