Version: 8.25.1Navigation überspringen
Edzard, Franke GmbH & Co.
1.382 €
11 Zimmer  •  307 m² Bürofläche

Büro zur Miete
1.382 €
11 Zimmer  •  307 m² Bürofläche

Großzügige Büro- und Geschäftsräume in der Airport-Stadt

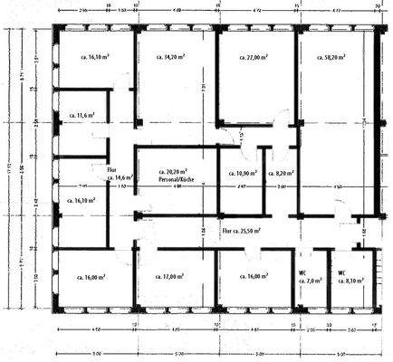
Vermietet wird eine Gewerbeeinheit mit insgesamt ca. 307 m² Bürofläche.
Es handelt sich um insgesamt neun Büroräume, davon eines als Seminarraum oder Großraumbüro nutzbar, einen Lagerraum, einen Aufenthaltsraum/Küche, einen Durchgangsraum (abschließbar) sowie zusätzlich ein Damen-WC mit zwei Kabinen und ein Herren-WC mit einer Kabine und einem Urinal.

Alle Büroräume bieten dank mindestens 2 Fenstern über genügend natürliches Licht. Die meisten Büros sind mit LED-Deckenleuchten (umstellbar auf kaltes oder warmes Licht) ausgestattet. Nach und nach sollen alle Leuchtmittel auf LED umgerüstet werden.

Netzwerkanschlüsse sind vorhanden. Glasfaser ist bestellbar.

Die Nebenkosten beinhalten Strom-, Wasser- und Restmüllkosten.

Es stehen bis zu 8 Parkplätze á 15,00 € zur Verfügung.

Merkmale

  • Bezug: nach Absprache
  • 1. Geschoss
  • Einbauküche
  • Bad mit Fenster
  • Gäste-WC
  • Bodenbelag: Teppich
  • 4 Stellplätze: 4 Außen-Stellplätze
- 9 Büroräume, 1 als Seminarraum nutzbar
- 1 Lagerraum
- 1 Durchgangsraum (abschließbar)
- 1 Küche/Sozialraum
- Netzwerkanschlüsse vorhanden
- Glasfaser bestellbar

Grundrisse

Grundrisse
1 / 1

Realisiere Dein Projekt

Bausubstanz und Energie

Energieausweis

Endenergieverbrauch (Wärme)

Endenergieverbrauch (Strom)

  • Baujahr1924
  • Zustand der ImmobilieGepflegt
  • HeizungsartZentralheizung
  • EnergieträgerÖl

Mietkosten

Warmmiete
2.197,80 €
Nettomiete
1.381,50 €
Nebenkosten
509,30 €
Heizkosten
307 €
Zusätzliche Kosten
Miete pro Stellplatz
15 €
Provision für Mieter
2,38 Monatskaltmieten inkl. MwSt.
Kaution
2.763 €
Weitere Preisinformationen
4 Stellplätze, Miete je: 15,00 EUR

Lage

address-icon
NeuenlandBremen (28199)
Der Anbieter hat die genaue Adresse nicht freigegeben
Das Objekt befindet sich im Herzen der Bremer Airport-Stadt. Auf dem im Westen der Stadt gelegenen Gebiet, lassen sich die verschiedensten Gebäude mit ebenso vielfältiger Flächenstruktur finden. Somit entstanden in den vergangenen Jahren neben den klassischen Büroflächen auch Lagerflächen und kleine Handwerkerbetriebe. Die Bremer Innenstadt ist in 10 Autominuten erreichbar. Die BAB - Anbindung 281 liegt in Sichtweite und bietet direkte Anbindung an ein überregionales Fernwege-Netz und verfügt zudem über eine eigene Anschlussstelle Airport-Stadt. Somit ist eine optimale Anbindung garantiert.

Die angebotenen Räumlichkeiten befinden sich in einer alten Tabakfabrik, welche zu Gewerbeeinheiten umgebaut wurde.
Das Areal verfügt zudem über ausreichend Parkplätze, die angemietet werden können.

Weitere Informationen

Sonstiges Die Industriestraße befindet sich im Herzen des Gewerbegebietes Airportstadt-West.
Auf dem Gewerbehof einer alten Tabakfabrik befinden sich verschiedene Gebäude mit unterschiedlicher Flächen-Strucktur. So sind hier klassische Büroflächen neben Lagerflächen und kleinen Handwerkbetrieben zu finden. Die Bremer Innenstadt ist in nur wenigen Autominuten erreichbar. Die BAB-Anbindung 281 liegt in Sichtweite.

Das Areal verfügt zudem über ausreichend Parkplätze.

360° Tour - https://view.ricoh360.com/c53a935d-69b9-47ec-ae5c-8f268c1dacb2?type=compact Stichworte Stellplatz vorhanden, Gesamtfläche: 307,00 m², 2 Etagen

Weitere Services

Lust auf eine Besichtigung?
Eine Frage zur Immobilie?
Mit einer persönlichen Nachricht hast du bessere Chancen auf eine Antwort.
Mit der Nutzung der oben angegebenen Telefonnummer oder durch Klicken auf „Kontaktieren“ akzeptierst Du die Allgemeinen Nutzungsbedingungen, denen Du jederzeit widersprechen kannst. Weitere Informationen zum Datenschutz

Über den Anbieter

Parkallee 69, 28209 Bremen
partner badge
Partnerschaft
Herr Albrecht EdzardDein Kontakt
Online-ID: 26H9IVQB19M4
Referenznummer: 3703
Edzard, Franke GmbH & Co.
Edzard, Franke GmbH & Co.
Bewertung: 3,8 von 5 Sternen
Mit einer persönlichen Nachricht hast du bessere Chancen auf eine Antwort.
Mit der Nutzung der oben angegebenen Telefonnummer oder durch Klicken auf „Kontaktieren“ akzeptierst Du die Allgemeinen Nutzungsbedingungen, denen Du jederzeit widersprechen kannst. Weitere Informationen zum Datenschutz
Wie zufrieden bist du mit dieser Seite (nicht mit der Immobilie selbst)?