Bürofläche zur Miete • provisionsfrei10 €/m²734,5 m² Bürofläche
10 €
/m²
734,5 m² Bürofläche
Moderne Büro- oder Praxisfläche im Technologiepark Bremen
Die angebotene Büro- und Praxisfläche befindet sich im 2. Obergeschoss eines modernen Büro- und Geschäftshauses im Technologiepark Bremen. Die Einheit umfasst insgesamt ca. 735 m² und eignet sich für klassische Büronutzungen ebenso wie für unterschiedlichste medizinische oder therapeutische Praxiskonzepte.
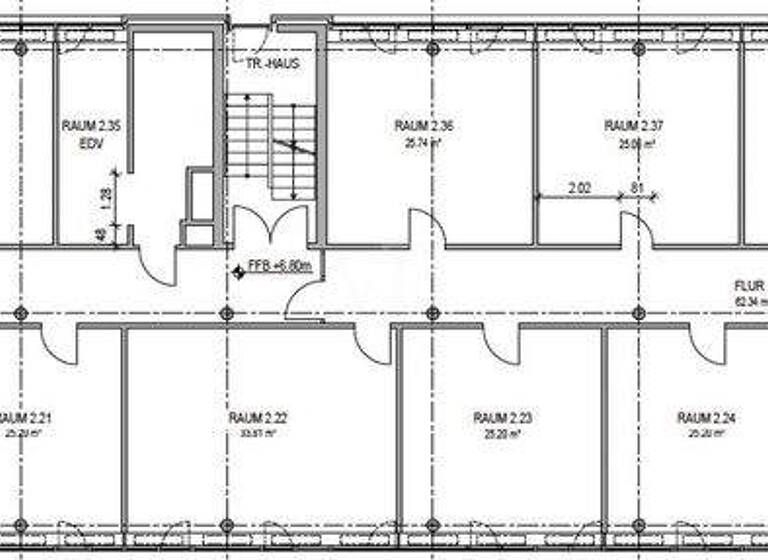
Die Fläche ist derzeit in zahlreiche Einzelräume mit ergänzenden Verkehrs- und Nebenflächen gegliedert. Diese Struktur bietet insbesondere für Praxisbetriebe, Gemeinschaftspraxen oder nutzungsbezogene Büroformen eine sehr gute Ausgangsbasis. Gleichzeitig ermöglicht die vorhandene Gebäudestruktur eine flexible Anpassung der Raumaufteilung. Einzelräume können zusammengelegt, neu zugeschnitten oder offen gestaltet werden, sodass sowohl kleinteilige Nutzungskonzepte als auch großzügige Raumlösungen realisierbar sind.
Die Einheit wird aktuell als Bürofläche genutzt. Im selben Gebäude wurde bereits erfolgreich eine Umnutzung zu einer Lungenfacharztpraxis umgesetzt. Diese bestehende Praxisnutzung belegt grundsätzlich die Genehmigungsfähigkeit medizinischer Nutzungen innerhalb des Objekts. Vor diesem Hintergrund bestehen sehr gute Voraussetzungen für eine Vielzahl von Praxisformen, unter anderem aus den Bereichen Medizin, Therapie oder Gesundheitsdienstleistung. Nutzungsbezogene Anpassungen und Umbauten können in Abstimmung mit dem Vermieter erfolgen.
Auf dem Grundstück stehen ausreichend öffentliche Stellplätze zur Verfügung. In der Tiefgarage können zusätzliche Stellplätze angemietet werden.
Bei zusätzlichem Flächenbedarf besteht die Möglichkeit, die Einheit um weitere ca. 140 m² zu erweitern.
Die flexibel anpassbaren Räumlichkeiten bieten sehr gute Voraussetzungen für die Etablierung oder Erweiterung eines Büro- oder Praxisbetriebs an einem professionellen Geschäftsstandort.
Die dargestellten Praxisansichten stammen aus dem Gebäude und zeigen exemplarisch mögliche Ausführungen nach Anpassung der Flächen für eine Praxisnutzung.
Die Nettomiete beginnt bei 10,00 €/m². Abweichungen ergeben sich abhängig von der vereinbarten Mietvertragslaufzeit sowie dem Anpassungsbedarf der Fläche und einer möglichen Beteiligung des Vermieters an den Ausbaukosten.
Die Fläche ist derzeit in zahlreiche Einzelräume mit ergänzenden Verkehrs- und Nebenflächen gegliedert. Diese Struktur bietet insbesondere für Praxisbetriebe, Gemeinschaftspraxen oder nutzungsbezogene Büroformen eine sehr gute Ausgangsbasis. Gleichzeitig ermöglicht die vorhandene Gebäudestruktur eine flexible Anpassung der Raumaufteilung. Einzelräume können zusammengelegt, neu zugeschnitten oder offen gestaltet werden, sodass sowohl kleinteilige Nutzungskonzepte als auch großzügige Raumlösungen realisierbar sind.
Die Einheit wird aktuell als Bürofläche genutzt. Im selben Gebäude wurde bereits erfolgreich eine Umnutzung zu einer Lungenfacharztpraxis umgesetzt. Diese bestehende Praxisnutzung belegt grundsätzlich die Genehmigungsfähigkeit medizinischer Nutzungen innerhalb des Objekts. Vor diesem Hintergrund bestehen sehr gute Voraussetzungen für eine Vielzahl von Praxisformen, unter anderem aus den Bereichen Medizin, Therapie oder Gesundheitsdienstleistung. Nutzungsbezogene Anpassungen und Umbauten können in Abstimmung mit dem Vermieter erfolgen.
Auf dem Grundstück stehen ausreichend öffentliche Stellplätze zur Verfügung. In der Tiefgarage können zusätzliche Stellplätze angemietet werden.
Bei zusätzlichem Flächenbedarf besteht die Möglichkeit, die Einheit um weitere ca. 140 m² zu erweitern.
Die flexibel anpassbaren Räumlichkeiten bieten sehr gute Voraussetzungen für die Etablierung oder Erweiterung eines Büro- oder Praxisbetriebs an einem professionellen Geschäftsstandort.
Die dargestellten Praxisansichten stammen aus dem Gebäude und zeigen exemplarisch mögliche Ausführungen nach Anpassung der Flächen für eine Praxisnutzung.
Die Nettomiete beginnt bei 10,00 €/m². Abweichungen ergeben sich abhängig von der vereinbarten Mietvertragslaufzeit sowie dem Anpassungsbedarf der Fläche und einer möglichen Beteiligung des Vermieters an den Ausbaukosten.
Merkmale
- Personenaufzug
- 10 Stellplätze: 10 Außen-Stellplätze
Grundrisse
Grundrisse
1 / 2
Bausubstanz und Energie
Energieausweis
Endenergieverbrauch (Wärme)
Endenergieverbrauch (Strom)
- Baujahr2001
- Zustand der ImmobilieMassivhaus, Gepflegt
- EnergieträgerFernwärme
Mietkosten
Monatliche Miete
10 €/m²
Zusätzliche Kosten
Miete pro Stellplatz
90 €
Provision für Mieter
provisionsfrei
Kaution
keine Angabe
Weitere Preisinformationen
10 Stellplätze, Miete je: 90,00 EUR
Lage

Mary-Astell-Straße 2, Lehe, Bremen (28359)
Die Immobilie befindet sich im Technologiepark Bremen im Stadtteil Horn-Lehe, einem etablierten Standort für Büro-, Dienstleistungs- und medizinische Nutzungen. Die Lage ist geprägt durch die Nähe zur Universität Bremen, zu Forschungs- und Bildungseinrichtungen sowie zu zahlreichen gewerblichen Nutzungen.
Der Standort bietet sehr gute Rahmenbedingungen sowohl für den Bürobetrieb als auch für Praxisbetriebe. Die Kombination aus Beschäftigten im Technologiepark, universitärem Umfeld und angrenzenden Wohnquartieren sorgt für eine stabile, werktägliche Nachfrage. Die bereits im Gebäude vorhandene fachärztliche Praxis unterstreicht die Eignung des Standorts für weitere medizinische, therapeutische und gesundheitsnahe Nutzungen, ohne diese auf einzelne Fachrichtungen zu beschränken.
Die Anbindung an den öffentlichen Personennahverkehr ist gut. Mehrere Bus- und Straßenbahnlinien sind fußläufig erreichbar. Gleichzeitig ist der Standort für den Individualverkehr gut erschlossen. Die vorhandenen Stellplätze auf dem Grundstück unterstützen die Erreichbarkeit für Mitarbeitende, Patienten und Besucher.
Der Standort bietet sehr gute Rahmenbedingungen sowohl für den Bürobetrieb als auch für Praxisbetriebe. Die Kombination aus Beschäftigten im Technologiepark, universitärem Umfeld und angrenzenden Wohnquartieren sorgt für eine stabile, werktägliche Nachfrage. Die bereits im Gebäude vorhandene fachärztliche Praxis unterstreicht die Eignung des Standorts für weitere medizinische, therapeutische und gesundheitsnahe Nutzungen, ohne diese auf einzelne Fachrichtungen zu beschränken.
Die Anbindung an den öffentlichen Personennahverkehr ist gut. Mehrere Bus- und Straßenbahnlinien sind fußläufig erreichbar. Gleichzeitig ist der Standort für den Individualverkehr gut erschlossen. Die vorhandenen Stellplätze auf dem Grundstück unterstützen die Erreichbarkeit für Mitarbeitende, Patienten und Besucher.
Weitere Informationen
Sonstiges
GELDWÄSCHE: Als Immobilienmaklerunternehmen ist VON POLL COMMERCIAL Bremen, Simon Investmentimmobilien GmbH, vertreten durch Geschäftsführer Andre Simon, selbstständiger Lizenzpartner der Von Poll Immobilien GmbH, nach § § 1, 2 Abs. 1 Nr. 10, 4 Abs. 3 Geldwäschegesetz (GwG) dazu verpflichtet, vor Begründung einer Geschäftsbeziehung die Identität des Vertragspartners festzustellen und zu überprüfen. Hierzu ist es erforderlich, dass wir die relevanten Daten Ihres Personalausweises festhalten - beispielsweise mittels einer Kopie. Das Geldwäschegesetz (GwG) sieht vor, dass der Makler die Kopien bzw. Unterlagen fünf Jahre aufbewahren muss.
PROVISIONSHINWEIS: Mit der Anfrage bei und durch Inanspruchnahme bei VON POLL COMMERCIAL Bremen, Simon Investmentimmobilien GmbH, vertreten durch Geschäftsführer Andre Simon,, selbstständiger Lizenzpartner der Von Poll Immobilien GmbH, wird ein Maklervertrag geschlossen. Sofern es durch die Tätigkeit von VON POLL COMMERCIAL Bremen, Simon Investmentimmobilien GmbH, vertreten durch Geschäftsführer Andre Simon,, selbstständiger Lizenzpartner der Von Poll Immobilien GmbH zu einem wirksamen Hauptvertrag mit der Eigentümerseite kommt, hat der Interessent bei Abschluss
- eines MIETVERTRAGS Provision/Maklercourtage an VON POLL COMMERCIAL Bremen, Simon Investmentimmobilien GmbH, vertreten durch Geschäftsführer Andre Simon, selbstständiger Lizenzpartner der Von Poll Immobilien GmbH zu zahlen.
- eines KAUFVERTRAGS die ortsübliche Provision/Maklercourtage an VON POLL COMMERCIAL Bremen, Simon Investmentimmobilien GmbH, vertreten durch Geschäftsführer Andre Simon, selbstständiger Lizenzpartner der Von Poll Immobilien GmbH gegen Rechnung zu zahlen.
HAFTUNG: Wir weisen darauf hin, dass die von uns weitergegebenen Objektinformationen, Unterlagen, Pläne etc. vom Verkäufer bzw. Vermieter stammen. Eine Haftung für die Richtigkeit oder Vollständigkeit der Angaben übernehmen wir daher nicht. Es obliegt daher unseren Kunden, die darin enthaltenen Objektinformationen und Angaben auf ihre Richtigkeit hin zu überprüfen. Alle Immobilienangebote sind freibleibend und vorbehaltlich Irrtümer, Zwischenverkauf- und Vermietung oder sonstiger Zwischenverwertung.
VON POLL COMMERCIAL Bremen ist Ihr Experte für Anlage- und Gewerbeimmobilien in Bremen. Wir sind spezialisiert auf Mehrfamilienhäuser, Wohn- und Geschäftshäuser, Büroflächen, Logistik- und Industrieimmobilien sowie Spezialimmobilien. Als einer der größten Immobilienmakler Europas unterstützen wir Sie persönlich beim Verkauf oder der Vermietung und begleiten Sie durch den gesamten Prozess.
Wir sind stolz auf unsere Markenkompetenz und unser Netzwerk aus über 1.500 Kollegen und mehr als 400 Shops. Jeden Tag überzeugen wir unsere Kunden mit ausgezeichneter Beratung und effektiven Vermarktungskonzepten. Unser Ziel ist es, das Beste für unsere Kunden zu erreichen und die bestmögliche Leistung zu erbringen. Kontaktieren Sie uns noch heute. Stichworte Nutzfläche: 734,51 m², Gesamtfläche: 734,51 m², Anzahl der Gewerbeeinheiten: 1, Bundesland: Bremen
PROVISIONSHINWEIS: Mit der Anfrage bei und durch Inanspruchnahme bei VON POLL COMMERCIAL Bremen, Simon Investmentimmobilien GmbH, vertreten durch Geschäftsführer Andre Simon,, selbstständiger Lizenzpartner der Von Poll Immobilien GmbH, wird ein Maklervertrag geschlossen. Sofern es durch die Tätigkeit von VON POLL COMMERCIAL Bremen, Simon Investmentimmobilien GmbH, vertreten durch Geschäftsführer Andre Simon,, selbstständiger Lizenzpartner der Von Poll Immobilien GmbH zu einem wirksamen Hauptvertrag mit der Eigentümerseite kommt, hat der Interessent bei Abschluss
- eines MIETVERTRAGS Provision/Maklercourtage an VON POLL COMMERCIAL Bremen, Simon Investmentimmobilien GmbH, vertreten durch Geschäftsführer Andre Simon, selbstständiger Lizenzpartner der Von Poll Immobilien GmbH zu zahlen.
- eines KAUFVERTRAGS die ortsübliche Provision/Maklercourtage an VON POLL COMMERCIAL Bremen, Simon Investmentimmobilien GmbH, vertreten durch Geschäftsführer Andre Simon, selbstständiger Lizenzpartner der Von Poll Immobilien GmbH gegen Rechnung zu zahlen.
HAFTUNG: Wir weisen darauf hin, dass die von uns weitergegebenen Objektinformationen, Unterlagen, Pläne etc. vom Verkäufer bzw. Vermieter stammen. Eine Haftung für die Richtigkeit oder Vollständigkeit der Angaben übernehmen wir daher nicht. Es obliegt daher unseren Kunden, die darin enthaltenen Objektinformationen und Angaben auf ihre Richtigkeit hin zu überprüfen. Alle Immobilienangebote sind freibleibend und vorbehaltlich Irrtümer, Zwischenverkauf- und Vermietung oder sonstiger Zwischenverwertung.
VON POLL COMMERCIAL Bremen ist Ihr Experte für Anlage- und Gewerbeimmobilien in Bremen. Wir sind spezialisiert auf Mehrfamilienhäuser, Wohn- und Geschäftshäuser, Büroflächen, Logistik- und Industrieimmobilien sowie Spezialimmobilien. Als einer der größten Immobilienmakler Europas unterstützen wir Sie persönlich beim Verkauf oder der Vermietung und begleiten Sie durch den gesamten Prozess.
Wir sind stolz auf unsere Markenkompetenz und unser Netzwerk aus über 1.500 Kollegen und mehr als 400 Shops. Jeden Tag überzeugen wir unsere Kunden mit ausgezeichneter Beratung und effektiven Vermarktungskonzepten. Unser Ziel ist es, das Beste für unsere Kunden zu erreichen und die bestmögliche Leistung zu erbringen. Kontaktieren Sie uns noch heute. Stichworte Nutzfläche: 734,51 m², Gesamtfläche: 734,51 m², Anzahl der Gewerbeeinheiten: 1, Bundesland: Bremen
Weitere Services
Lust auf eine Besichtigung?
Eine Frage zur Immobilie?
Über den Anbieter
Wachmannstraße 132, 28209 Bremen
Partnerschaft

Herr Andre SimonDein Kontakt
Online-ID: 26DHZTGI2FH8
Referenznummer: 26 271 010
Wie zufrieden bist du mit dieser Seite (nicht mit der Immobilie selbst)?
