Version: 8.25.1Navigation überspringen
749.000 €
5 Zimmer  •  125,1 m²

Reihenendhaus zum Kauf - Erstbezug
749000 €
5.987 €/m²
5 Zimmer  •  125,1 m²

NEU! . 5 Zimmer . Garten + 2 Terrassen . Nähe U6 . 1230 Wien

*
PROJEKT:

In der Nähe der U6-Station Perfektastraße im 23. Bezirk stehen ab sofort drei hochwertige Reihenhäuser zum Verkauf.

Die Häuser bieten 5-6 Zimmer, zwei Terrassen, eigene PKW-Stellplätze sowie private Gärten.

Es handelt sich um Eigentum - kein Pacht- oder Baurecht.

Die Wohnflächen liegen zwischen 122 m² und 133 m² und bieten reichlich Platz für die ganze Familie sowie Homeoffice.

Modernste Ausstattung und zukunftsorientiertes Design machen diese Häuser zur perfekten Wahl.

Die Heizung im Winter sowie die Kühlung im Sommer erfolgen über den Fußboden mittels einer eigenen Luftwärmepumpe.

* PHOTOVOLTAIK: 

Im Kaufpreis ist eine Photovoltaikanlage (5 kWp am Dach inklusive Wechselrichter) bereits enthalten.

In Kombination mit einer energieeffizienten Luft-Wärmepumpe, die über die Fußboden sowohl heizen als auch kühlen kann, können die laufenden Energiekosten nachhaltig und deutlich reduziert werden.

Bei entsprechender technischer Ausstattung (z. B. Batteriespeicher mit Notstromfunktion) kann die Anlage auch bei einem Blackout eine eingeschränkte Stromversorgung gewährleisten und sorgt somit für ein zusätzliches Maß an Unabhängigkeit.

Gleichzeitig bietet dieses System einen wirksamen Schutz vor steigenden Energiepreisen.

Das bedeutet langfristige Ersparnis und mehr Sicherheit für Ihre Familie - gerade in unsicheren Zeiten.

*
KÜCHE: 

Eine neue, vollständig ausgestattete Küche mit Geräten ist ebenfalls im Kaufpreis enthalten.

----------------------------------------------------------------------------------------

*
ÜBERBLICK:

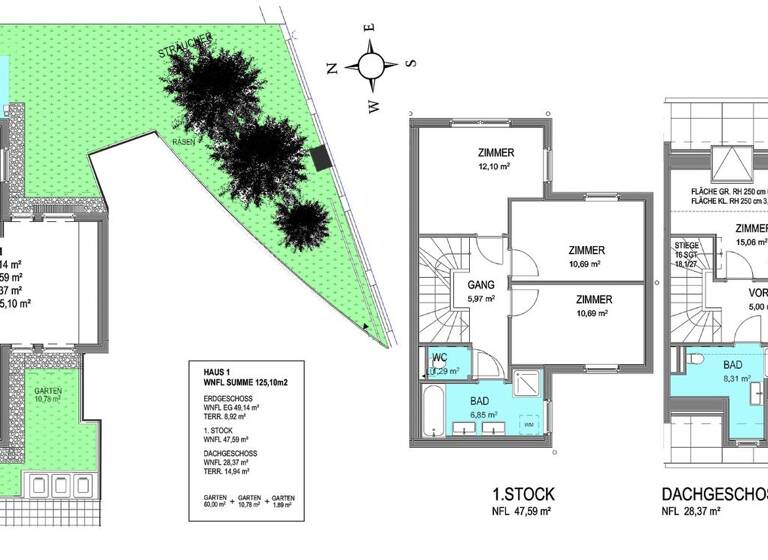
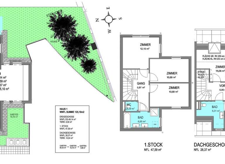
HAUS 1: Gesamtfläche ca. 234 m²

WNFL ca. 125,10 m² (5 Zimmer) + Garten ca. 73 m² + Terrasse (EG) ca. 9 m² + Terrasse (DG) ca. 15 m² + PKW Stellplatz 

Kaufpreis: EUR 749.000,- Schlüsselfertig,  inkl. Photovoltaikanlage , Küche und PKW Stellplatz

*  

HAUS 2: VERKAUFT!

HAUS 3: VERKAUFT!

----------------------------------------------------------------------------------------

*
TOP LAGE:

DETAILLIERTES LAGEEXPOSÉ (68 Seiten!) vorhanden und erfolgt umgehend nach Anfrage.

*
VERMITTLUNGSPROVISION / DOPPELMAKLERTÄTIGKEIT:

Der Ordnung halber wird darauf hingewiesen, dass die Vermittlungsprovision 3 % des Kaufpreises zuzüglich 20 % USt. (insgesamt 3,6 %) beträgt und mit Zustandekommen des vermittelten Rechtsgeschäfts (Annahme des Kaufanbots ohne aufschiebende Bedingungen durch den Verkäufer) fällig wird. Der Makler ist als Doppelmakler tätig.

NEU! . 5 Zimmer . Garten + 2 Terrassen . Nähe U6 . 1230 Wien

NEU! ++ NÄHE U6 PERFEKTASTRASSE ++ 3 HÄUSER MIT GARTEN UND PKW-STELLPLATZ ++ 1230 WIEN ++ EIGENTUM

*

PROJEKT: 

In der Nähe der U6-Station Perfektastraße im 23. Bezirk stehen ab sofort drei hochwertige Reihenhäuser zum Verkauf.

Die Häuser bieten 5-6 Zimmer, zwei Terrassen, eigene PKW-Stellplätze sowie private Gärten.

Es handelt sich um Eigentum - kein Pacht- oder Baurecht.

Die Wohnflächen liegen zwischen 122 m² und 133 m² und bieten reichlich Platz für die ganze Familie sowie Homeoffice.

Modernste Ausstattung und zukunftsorientiertes Design machen diese Häuser zur perfekten Wahl.

----------------------------------------------------------------------------------------

*

ÜBERBLICK DER DERZEIT VERFÜGBAREN HÄUSER:

HAUS 1: GESAMTFLÄCHE CA. 234 M²

WNFL ca. 125,10 m² (5 Zimmer) + Garten ca. 73 m² + Terrasse (EG) ca. 9 m² + Terrasse (DG) ca. 15 m² + PKW Stellplatz = EUR 799.000,- Schlüsselfertig und inkl. PKW Stellplatz

*  

HAUS 2: GESAMTFLÄCHE CA. 171 M²

WNFL ca. 133,36 m² (6 Zimmer) + Garten ca. 23 m² + Terrasse (EG) ca. 7,63 m² + Terrasse (DG) ca. 6,55 m² + PKW Stellplatz = EUR 799.000,- Schlüsselfertig und inkl. PKW Stellplatz

*  

HAUS 3: GESAMTFLÄCHE CA. 260 M²

WNFL ca. 122,69 m² (5 Zimmer) + Garten ca. 117 m² + Terrasse (EG) ca. 9,60 m² + Terrasse (DG) ca. 11 m² + PKW Stellplatz = EUR 799.000,- Schlüsselfertig und inkl. PKW Stellplatz

----------------------------------------------------------------------------------------

*

TOP LAGE:

DETAILLIERTES LAGEEXPOSÉ (68 Seiten!) vorhanden und erfolgt umgehend nach Anfrage.

*

MODERNE UND MASSGESCHNEIDERTE FINANZIERUNG:

"Hausbank war gestern"!

Heutzutage haben wir für Sie online und sofortigen Zugang zu den besten und neuesten Finanzprodukten von über 120 Kreditinstituten in Österreich und Deutschland.

Genau wie beim Immobilienvergleich, ermöglichen wir Ihnen, alle relevante Bankangebote zu vergleichen, um das beste für Sie zu finden!

Auch Angebote ohne Eigenmittel, mit festen Zinssätzen und einer beeindruckenden Laufzeit von bis zu 45 Jahren sind verfügbar!

So sparen Sie Zeit, Geld und Nerven!

Wir weisen darauf hin, dass zwischen dem Vermittler und dem zu vermittelnden Dritten ein familiäres oder wirtschaftliches Naheverhältnis besteht.

Der Vermittler ist als Doppelmakler tätig.

Merkmale

  • Bezug: Ab sofort möglich!
  • WG-geeignet
  • Einbauküche, offene Küche
  • Badezimmer: Badewanne, Bad mit Dusche, Bad mit Fenster
  • Gäste-WC
  • Bodenbelag: Fliesen, Parkett
  • Terrasse
  • Außen-Stellplatz

Grundrisse

Grundrisse
1 / 2

Realisiere Dein Projekt

Bausubstanz und Energie

Heizwärmebedarf (HWB)

B

Gesamtenergieeffizienz (fGEE)

A+
  • Baujahr2024
  • Zustand der ImmobilieNeubau, Fertighaus, Erstbezug
  • HeizungsartFußbodenheizung
  • EnergieträgerLuft-/Wasser-Wärmepumpe
MediumRectangleTop

Preisdetails

Kaufpreis
749000 €
5.987,21 €/m²
Provision für Käufer
3% des Kaufpreises zzgl. 20% USt.
Weitere Preisinformationen
1 Stellplatz

Lage

address-icon
Wien (1230)
U6 - Perfekterstraße

Weitere Informationen

Stichworte Stellplatz vorhanden, Süd-Süd-Ost-Süd-West-Balkon/Terrasse, Anzahl der Badezimmer: 2, Anzahl der separaten WCs: 3, Anzahl Terrassen: 2, Balkon-Terrassen-Fläche: 24,00 m², Gartenfläche: 73,00 m², Bundesland: Wien, 3 Etagen, Wohnungsnr.: 1

Weitere Services

Lust auf eine Besichtigung?
Eine Frage zur Immobilie?
Nachricht hinzufügen
Mit der Nutzung der oben angegebenen Telefonnummer oder durch Klicken auf „Kontaktieren“ akzeptierst Du die Allgemeinen Nutzungsbedingungen, denen Du jederzeit widersprechen kannst. Weitere Informationen zum Datenschutz

Über den Anbieter

Am Hof 5/10, 1010 WIEN
partner badge
Partnerschaft
TRISTAR ImmobilienDein Kontakt
Online-ID: 24A7WN2TYBRF
Referenznummer: OBGC20260326210615273033608957d
TRISTAR Immobilien GmbH & Co KG
Nachricht hinzufügen
Mit der Nutzung der oben angegebenen Telefonnummer oder durch Klicken auf „Kontaktieren“ akzeptierst Du die Allgemeinen Nutzungsbedingungen, denen Du jederzeit widersprechen kannst. Weitere Informationen zum Datenschutz
MediumRectangleTop
MediumRectangleBottom
MediumRectangleTop
Wie zufrieden bist du mit dieser Seite (nicht mit der Immobilie selbst)?