Version: 8.25.1Navigation überspringen
Schwabenhaus Potsdam - Marcel Walter
512.738 €
3 Zimmer  •  97 m²  •  963 m² Grundstück

Bungalow zum Kauf • provisionsfrei
512738 €
5.286 €/m²
3 Zimmer  •  97 m²  •  963 m² Grundstück

Perfekte Harmonie: Haus, Grundstück & Finanzierung aus einer Hand.

WELCOME HOME. WELCOME TO YOUR FUTURE.

Dein Zuhause ist mehr als vier Wände - es ist dein Rückzugsort, dein Investment, dein neuer Lebensabschnitt.
White&Black macht Wohneigentum bezahlbar, modern und flexibel.
Jetzt ist der richtige Moment, um anzukommen.

Merkmale

  • 963 m² Grundstück
THINK FAST-VOLLENDET PLUS - Bereit für dein Finish.

- Technik, Heizung & Sanitärinstallation sind drin - du kümmerst dich nur um den Feinschliff
- Das Plus mit hochwertigen Sanitärobjekten und Fliesen
- Streichen, Böden verlegen, Türen setzen - du machst, was du willst
- Kein Stress mit Rohbau oder Technik - Fokus nur noch auf den Feinschliff
- Smartes Sparpotenzial - fertig gebaut, individuell finalisiert
- Ideal für Macher mit Anspruch - hochwertige Basis für deinen Stil

Für alle, die mitgestalten wollen - ohne auf Komfort zu verzichten.

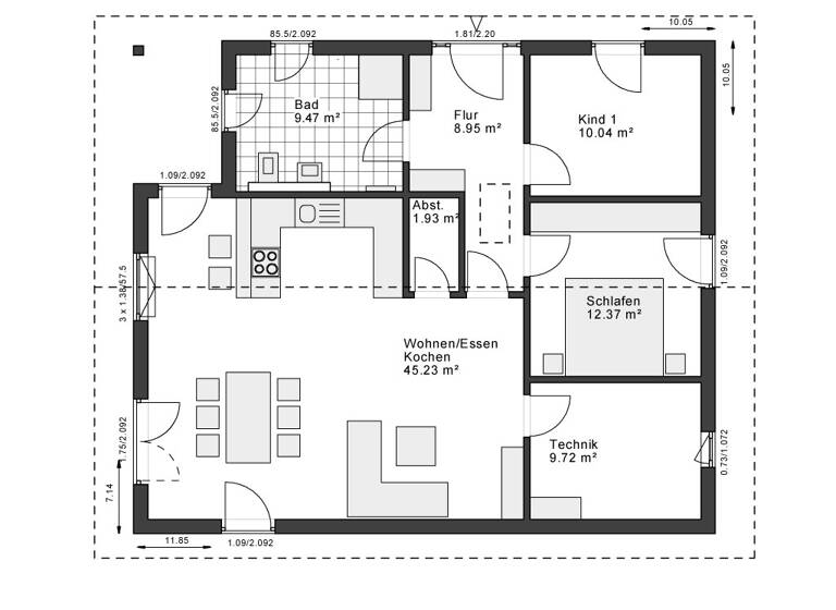
Grundrisse

Grundrisse
1 / 1

Realisiere Dein Projekt

Bausubstanz und Energie

Möchtest du Details zum Energieverbrauch?info_energy_calculation-icon
  • Zustand der ImmobilieNeubau, Projektiert
  • HeizungsartFußbodenheizung

Preisdetails

Kaufpreis
512738 €
5.285,96 €/m²
Provision für Käufer
provisionsfrei
Geschätzte Gesamtkosten
556.321 €1
Kaufpreis
512.738 €
Notarkosten (1,5%)
7.691 €
Grunderwerbsteuer (6,5%)
33.328 €
Grundbucheintrag (0,5%)
2.564 €
1Der angezeigte Wert ist eine automatisch berechnete Schätzung von immowelt.
2Bei den Angaben handelt es sich um ortsübliche Werte. Individuelle Kosten können abweichen.

Lage

address-icon
Falkensee (14612)
Der Anbieter hat die genaue Adresse nicht freigegeben
Das Grundstück befindet sich in attraktiver Wohnlage von Falkensee, einer gefragten Stadt im westlichen Berliner Umland. Die unmittelbare Nähe zu Berlin-Spandau sowie die hervorragende Verkehrsanbindung machen den Standort besonders interessant für Berufspendler und Familien.

Der Regionalbahnhof Falkensee ist gut erreichbar und bietet mit den Linien RE2 und RE8 eine schnelle Verbindung nach Berlin-Spandau sowie zum Berliner Hauptbahnhof. Ergänzt wird die Anbindung durch Buslinien sowie die nahegelegene B5 und den Berliner Ring (A10).

Schulen, Kitas und Kindergärten befinden sich in der Umgebung und sind bequem erreichbar. Auch weiterführende Schulen sind vor Ort vorhanden.

Die Nahversorgung ist ausgezeichnet: Supermärkte, Bäcker, Apotheken, Ärzte sowie weitere Geschäfte des täglichen Bedarfs befinden sich in kurzer Entfernung. Ergänzend bietet das nahegelegene Berlin-Spandau ein umfangreiches Einkaufs- und Freizeitangebot.

Insgesamt überzeugt Falkensee durch eine ruhige, grüne Wohnatmosphäre bei gleichzeitig sehr guter Infrastruktur und Stadtnähe.

Weitere Informationen

Sonstiges Das Haus ist projektiert inkl. Grundstück. Das Grundstück wird in Kommission angeboten bzw. direkt von Dritten verkauft. Daher kann der genannte Preis aufgrund aktueller Marktsituationen schwanken.
Die Bauabwicklung kann kurzfristig nach Grundstückserwerb begonnen werden. Bilder zeigen möglicherweise Sonderausstattungen, die auf Wunsch gegen Aufspreis zusätzlich angeboten werden können.

Erhalte in deinem persönlichen Beratungsgespräch kostenlos alle wichtigen Informationen zu diesem Projekt, insbesondere: Lage und Bebauungsmöglichkeiten des Baugrundstücks, Baukosten-Kalkulation, Finanzierungs- u. Förderungsmöglichkeiten sowie detaillierte Architektur- uund Grundrissplanung.

Wir freuen uns darauf, dich beraten zu dürfen! Stichworte Anzahl der Schlafzimmer: 2, Anzahl der Badezimmer: 1

Weitere Services

Lust auf eine Besichtigung?
Eine Frage zur Immobilie?
Nachricht hinzufügen
Mit der Nutzung der oben angegebenen Telefonnummer oder durch Klicken auf „Kontaktieren“ akzeptierst Du die Allgemeinen Nutzungsbedingungen, denen Du jederzeit widersprechen kannst. Weitere Informationen zum Datenschutz

Über den Anbieter

Unger Park 4, 14542 Werder (Havel)
partner badge
Partnerschaft
Herr Marcel Walter
Herr Marcel WalterDein Kontakt
Online-ID: 26MDB5U5M438
Referenznummer: WB-35504
Schwabenhaus Potsdam - Marcel Walter
title
Schwabenhaus Potsdam - Marcel Walter
Nachricht hinzufügen
Mit der Nutzung der oben angegebenen Telefonnummer oder durch Klicken auf „Kontaktieren“ akzeptierst Du die Allgemeinen Nutzungsbedingungen, denen Du jederzeit widersprechen kannst. Weitere Informationen zum Datenschutz
Wie zufrieden bist du mit dieser Seite (nicht mit der Immobilie selbst)?