Exklusives Fincaprojekt in bester Lage zwischen Cas Concos & Campos
EXKLUSIVITÄT LIVING BLUE MALLORCA ! Dieses außergewöhnliche Finca-Projekt befindet sich in einer der begehrtesten Gegenden zwischen Cas Concos und Campos. In einer ruhigen und dennoch gut angebundenen Lage verspricht die Immobilie völlige Privatsphäre und liegt nur fünf Minuten von Campos und 25 Minuten vom Flughafen Palma entfernt.
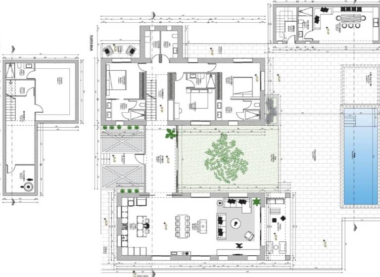
Beim Betreten durch den imposanten Eingang werden Sie von einem beeindruckenden Patio empfangen, der Ihren Blick direkt auf den zentral positionierten Swimmingpool lenkt. Der Grundriss dieses Landsitzes ist sowohl für Komfort als auch Eleganz ausgelegt. Rechts finden Sie den großzügigen Wohnbereich, während links ein separater Gästebereich drei geräumige Schlafzimmer mit jeweils eigenem Bad beherbergt.
Insgesamt bietet die Immobilie fünf geräumige Schlafzimmer, alle mit eigenem Bad. Die verbleibenden zwei Schlafzimmer, darunter die luxuriöse Master-Suite, befinden sich im Obergeschoss.
Der offene Wohnbereich ist ein Meisterwerk des Designs, das eine moderne Küche mit Insel, einen stilvollen Essbereich und ein gemütliches Wohnzimmer nahtlos integriert, das zur Terrasse und zum Poolbereich führt. Bodenhohe Fenster fluten die Innenräume mit natürlichem Licht und schaffen eine harmonische Verbindung zwischen Innen- und Außenliving.
Die Baugenehmigung wird bis zum Sommer 2026 erwartet, mit einer geschätzten Bauzeit von 12 bis 14 Monaten. Der Entwickler, bekannt für außergewöhnliche Qualität und Detailverliebtheit, stellt sicher, dass jeder Aspekt dieser Finca nach den höchsten Standards gebaut wird. Persönliche Wünsche und Modifikationen können weiterhin in das Projekt integriert werden.
Dieser zukünftige Landsitz wird der perfekte Rückzugsort für die, die einen exklusiven und ruhigen Lebensstil im Herzen Mallorcas suchen.
Hinweis: Die hier gezeigten Entwürfe dienen lediglich der Illustration und sind unverbindliche, künstlerische Darstellungen. Änderungen in Ausführung, Ausstattung und Abmessungen der Immobilie bleiben vorbehalten. #ref:6345
Merkmale
20.306 m² Grundstück
Garten
Terrasse
voll klimatisiert
offener Kamin
Swimmingpool
Grundrisse
Grundrisse
1 / 2
Realisiere Dein Projekt
Bausubstanz und Energie
Der Anbieter hat keine Informationen zum Energieverbrauch bereitgestellt.
Baujahr0
HeizungsartZentralheizung: Fußbodenheizung
Preisdetails
Kaufpreis
6200000 €6.200.000 €
10.316,14 €/m²
Provision für Käufer
Bitte beachte, das Angebot kann bei Vertragsabschluss die Zahlung einer Provision beinhalten. Weitere Informationen erhältst Du vom Anbieter.
Lage
Campos (07630)
Der Anbieter hat die genaue Adresse nicht freigegeben
Weitere Informationen
Stichworte
Anzahl der Schlafzimmer: 5, Anzahl der Badezimmer: 8, Anzahl Terrassen: 1, Bundesland: Mallorca