Version: 8.25.1Navigation überspringen
610 €
2 Zimmer  •  58,6 m²  •  EG  •  frei ab sofort
Immowelt logo

Wohnung zur Miete
610 €
2 Zimmer  •  58,6 m²  •  EG  •  frei ab sofort

Frisch renoviert und viel Ruhe! 2-Zimmer Wohnung mit EBK und Balkon

Sehr schöne, frisch renovierte Zweizimmerwohnung im Herzen von Bad Pyrmont. Die Wohnung besticht nicht nur aufgrund der sehr ruhigen Lage, sondern auch durch durch die Nähe zur Hauptallee und Wandelhalle.

Die Wohnung ist frisch renoviert und hat folgende Räume:
- Flur / Diele
- 1 Wohn- /Essraum
- 1 Schlafzimmer
- 1 Küche mit Einbauküche
- 1 Bad mit WC und bodenebener Dusche
- 1 Balkon (überdacht)
- 1 Abstellraum

- 1 Kellerraum
- Gemeinschafts-Wasch- und Trockenkeller

Leider kein Aufzug und kein PKW-Stellplatz. Parkmöglichkeit an der Straße im öffentlichen Raum.

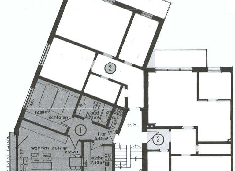
Sehen Sie sich den Grundriss der Wohnung Nr. 1 an und vereinbaren einen Besichtigungstermin.

Merkmale

  • frei ab sofort
  • Erdgeschoss
  • Einbauküche
  • Keller
  • Balkon
  • Bad mit Dusche
  • Bodenbelag: Fliesen, Laminat

Grundrisse

Grundrisse
1 / 1

Realisiere Dein Projekt

Bausubstanz und Energie

Energieausweis

D
  • Baujahr1984
  • Zustand der Immobilierenoviert / saniert
  • HeizungsartZentralheizung
  • EnergieträgerGas
Immowelt logo

Mietkosten

Warmmiete
795 €
Kaltmiete
10,41 €/m²
610 €
Nebenkosten
185 €
Heizkosten
in Nebenkosten enthalten
Kaution
1830 €

Lage

address-icon
Wiesenweg 7Bad Pyrmont (31812)
31812 Bad Pyrmont, Wiesenweg 7 , nur 1 Minute Fussweg von der Hauptallee entfernt und ca. 7 Minuten Fussweg bis in die Innenstadt / Fussgängerzone (Brunnenstraße).

Weitere Informationen

Sonstiges/Besichtigungstermine Tierhaltung Hund(e) und Katze(n) ist leider nicht erwünscht.

Die Wohnung befindet sich im Erdgeschoss (Hochpaterre) in einem 10 Parteien Mehrfamilienhaus.

Vereinbaren Sie einen Besichtigungstermin. Wir geben Ihnen gerne weitere Informationen. ­­­­­­­­­­­­­­­­­­­­­­­­­­­­­­­­­­­­­­­­­­­­­­­­­­­­­­­­­­­­­­­­­­­­­­­­­­­­­­­­­­­­­­­­­­­­­­­­ ­­­­­­­­­­­­­­­­­

Gerne verkaufen oder vermieten wir auch Ihre Immobilie. Nutzen Sie den Bewertungsservice und besuchen Sie uns in unserem Immobilienbüro in Paderborn in der Friedrichstraße 45.

Irrtümer vorbehalten. Alle Angaben, Objekt­ und Flächengrößen sowie Angaben zum Objekt basieren auf Informationen des Eigentümers. Eine Haftung und / oder Gewähr hinsichtlich der Richtigkeit und Vollständigkeit kann hierfür seitens ImmoGlück by Gerd Fornefeld nicht übernommen werden.

Weitere Services

Lust auf eine Besichtigung?
Eine Frage zur Immobilie?
Mit einer persönlichen Nachricht hast du bessere Chancen auf eine Antwort.
Mit der Nutzung der oben angegebenen Telefonnummer oder durch Klicken auf „Kontaktieren“ akzeptierst Du die Allgemeinen Nutzungsbedingungen, denen Du jederzeit widersprechen kannst. Weitere Informationen zum Datenschutz

Über den Anbieter

Friedrichstr. 45, 33102 Paderborn
partner badge
6 Jahre Partnerschaft
Herr Gerd Fornefeld
Herr Gerd FornefeldDein Kontakt

Weitere Unterlagen

Online-ID: 26P1D2E93YEU
Referenznummer: PYM-7-EG
ImmoGlück by Gerd Fornefeld
title
ImmoGlück by Gerd Fornefeld
Bewertung: 4,5 von 5 Sternen
Mit einer persönlichen Nachricht hast du bessere Chancen auf eine Antwort.
Mit der Nutzung der oben angegebenen Telefonnummer oder durch Klicken auf „Kontaktieren“ akzeptierst Du die Allgemeinen Nutzungsbedingungen, denen Du jederzeit widersprechen kannst. Weitere Informationen zum Datenschutz
Wie zufrieden bist du mit dieser Seite (nicht mit der Immobilie selbst)?