Version: 8.25.1Navigation überspringen
StarREAL OG
550.000 €
5 Zimmer  •  133,7 m²  •  175 m² Grundstück

Doppelhaushälfte zum Kauf - Erstbezug
550000 €
4.113 €/m²
5 Zimmer  •  133,7 m²  •  175 m² Grundstück

FRÜHLINGSAKTION! BELAGSFERTIG PLUS! INKLUSIVE VERFLIESUNG, PARKETT UND MALEREI. CARPORT. 5 ZIMMER. 2 BALKONE. 2 TERRASSEN. PROVISIONSFREI für den Käuf

VERFLIESUNG, MALEREI UND PARKETT GESCHENKT! ÜBERGABE BELAGSFERTIG PLUS.
Ostern im eigenen Garten mit Grill feiern!

AB SOFORT DÜRFEN WIR IHNEN DIESES HAUS ZU EINEM
REDUZIERTEN AKTIONSPREIS IN HÖHE VON EUR 550.000,- ANBIETEN. 

ATTRAKTIVE ZENTRUMSLAGE!
BAHNHOF, KINDERGÄRTEN, SCHULEN, EINKAUFEN, GASTRONOMIE etc. - ALLES ZU FUSS ERREICHBAR!

PROVISIONSFREI FÜR DEN KÄUFER.

KOSTEN - AB SOFORT REDUZIERTER AKTIONSKAUFPREIS
Der reduzierte Aktionskaufpreis für das Haus samt Grundstück im Eigentum und 2 PKW-Abstellplätzen (davon 1 Stück Carport-Stellplatz) beträgt € 550.000,- statt € 598.000,- laut Liste. 
Das Haus befindet sich derzeit beim Innenausbau und wird INKLUSIVE PARKETT, FLIESEN UND MALEREI ÜBERGEBEN. ÜBERGABEZUSTAND: BELAGSFERTIG PLUS!
Dieses Objekt dürfen wir Ihnen OHNE KÄUFERPROVISION anbieten.

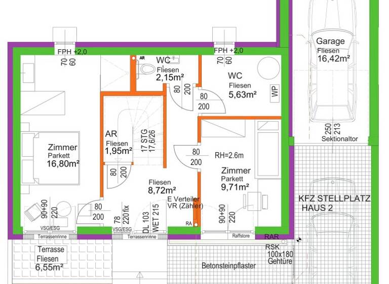
GRUNDRISS
Ebene Eingang: Vorraum, Badezimmer, 2 Zimmer, Technikraum/Waschküche, Vorgarten, Einfahrtstor, Carport, Stellplatz
Ebene Wohnen: Wohnküche, Wohnzimmer, WC, Abstellraum, Balkon, Terrasse, Garten
Obergeschoss: 2 Zimmer, Badezimmer, getrenntes WC, Balkon

AUSSTATTUNG (ÜBERGABEZUSTAND BELAGSFERTIG PLUS - SCHLÜSSELFERTIGPAKET VERFÜGBAR)
- solide Ziegelmassivbauweise - AUSSEN- UND INNENWÄNDE (auch nicht tragende Wände)
- VAILLANT Luftwärmepumpe
- Bodenkühlung
- Fußbodenheizung
- Vorbereitung PHOTOVOLTAIKANLAGE

- Fenster mit 3-Scheiben-Verglasung
- HOLZ-ALU-Eingangstür
- Vorbereitung ELEKTRISCHE AUSSENBESCHATTUNG
- BODENGLEICHE DUSCHE inklusive Edelstahl-Ablaufrinne
- Vorbereitung E-AUTO-LADEMÖGLICHKEIT 
- Hochwertige Außenanlagen mit Alu-Lamellenzaun und Verfliesung im Großformat
- EDLE VOLLGLASGELÄNDER bei sämtlichen Balkonen montiert

SCHLÜSSELFERTIGPAKET
Gegen Aufpreis ist ein Schlüsselfertigpaket verfügbar.

LAGE
In zentraler Pressbaumer Lage, wenige Gehminuten vom S-Bahnhof entfernt, wurden 2 solide Doppelhäuser in hochwertiger Ziegelmassivbauweise errichtet.
Die Lage im Zentrum bietet ausgezeichnete Infrastruktur: Geschäfte, Gastronomie, Ärzte, Gemeindeamt, Schulen und Kindergarten sowie das Bildungszentrum Sacre Coeur befinden sich in unmittelbarer Umgebung.

ERREICHBARKEIT MIT DEM PKW
Über A1 - Westautobahn: In ca. 15 km/10 Fahrminuten liegt die westliche Wiener Stadtgrenze (Auhof). 
Der Knoten St. Pölten ist über die A1 ca. 19 Fahrminuten von Pressbaum entfernt.
Über A21 - Wiener Außenring Autobahn: In ca. 10 km/8 Fahrminuten liegt die Anschlussstelle Knoten Steinhäusl. 

ÖFFENTLICHE INFRASTRUKTUR
In ca. 350 Metern Entfernung liegt der S-Bahnhof.
Zwischen Pressbaum und Wien gibt es eine gute Schnellbahnverbindung. Fahrzeit: ca. 14 Minuten bis Wien Hütteldorf (U4).
Die U6 Westbahnhof ist in ca. 21 Minuten mit der Schnellbahn erreichbar.

EINKAUFEN 
In Pressbaum finden sich zahlreiche Einkaufsmöglichkeiten für den täglichen Bedarf:
ca. 500 Meter/ca. 7 Gehminuten: Lidl
ca. 700 Meter/ca. 10 Gehminuten: Hofer

Binnen 3 Fahrminuten (1400 Meter) erreichen Sie Filialen von Spar und Pagro.

BILDUNG
Pressbaum bietet Familien mit Kindern sowohl öffentlichen Kindergarten als auch Volks- und Mittelschule.
Die Privatschule Sacre Coeur betreibt ein Schulzentrum mit Kindergarten, Volksschule/Hort, Mittelschule und Gymnasium, welches fußläufig erreichbar ist.

Für nähere Informationen oder zur Vereinbarung eines Besichtigungstermins erreichen Sie Frau Deutschbauer unter 0699/106 36 585, Frau Lenhardt unter 0699/151 46 733 bzw. unser Büro unter 01/997 28 81.

Wir weisen darauf hin, dass zwischen dem Vermittler und dem zu vermittelnden Dritten ein familiäres oder wirtschaftliches Naheverhältnis besteht.

Der Vermittler ist als Doppelmakler tätig.

Infrastruktur / Entfernungen

Gesundheit
Arzt <500m
Apotheke <500m
Klinik <8.500m

Kinder & Schulen
Kindergarten <500m
Schule <500m

Nahversorgung
Supermarkt <500m
Bäckerei <1.000m

Sonstige
Bank <500m
Geldautomat <500m
Post <500m
Polizei <500m

Verkehr
Bus <500m
Autobahnanschluss <1.000m
Bahnhof <500m

Angaben Entfernung Luftlinie / Quelle: OpenStreetMap

Merkmale

  • 175 m² Grundstück
  • offene Küche
  • 2 Stellplätze: 2 Außen-Stellplätze
  • Gäste-WC
  • Balkon
  • Terrasse
  • Bad mit Fenster

Grundrisse

Grundrisse
1 / 3

Realisiere Dein Projekt

Bausubstanz und Energie

Heizwärmebedarf (HWB)

B

Gesamtenergieeffizienz (fGEE)

A+
  • Baujahr2026
  • Zustand der ImmobilieNeubau, Massivhaus, Erstbezug
  • HeizungsartFußbodenheizung
  • EnergieträgerLuft-/Wasser-Wärmepumpe
MediumRectangleTop

Preisdetails

Kaufpreis
550000 €
4.112,76 €/m²
Provision für Käufer
Bitte beachte, das Angebot kann bei Vertragsabschluss die Zahlung einer Provision beinhalten. Weitere Informationen erhältst Du vom Anbieter.
Weitere Preisinformationen
2 Stellplätze

Lage

address-icon
Pressbaum (3021)
Wienerwald

Weitere Informationen

Sonstiges Dieses Angebot ist unverbindlich und freibleibend. Die Angaben erfolgen aufgrund der Informationen und Unterlagen, die uns vom Eigentümer und/oder Dritten zur Verfügung gestellt werden und sind ohne Gewähr. Sämtliche Inhalte wurden mit Sorgfalt geprüft. Dessen ungeachtet kann keine Garantie für Richtigkeit, Vollständigkeit und Aktualität der Angaben übernommen werden. Stichworte Carport vorhanden, Stellplatz vorhanden, Nord-Süd-Balkon/Terrasse, Nutzfläche: 133,73 m², Anzahl der Badezimmer: 2, Anzahl der separaten WCs: 3, Anzahl Balkone: 2, Anzahl Terrassen: 2, Balkon-Terrassen-Fläche: 54,54 m², Gartenfläche: 87,60 m², Bundesland: Niederösterreich Sonstiges: Neubaustandard

Weitere Services

Lust auf eine Besichtigung?
Eine Frage zur Immobilie?
Nachricht hinzufügen
Mit der Nutzung der oben angegebenen Telefonnummer oder durch Klicken auf „Kontaktieren“ akzeptierst Du die Allgemeinen Nutzungsbedingungen, denen Du jederzeit widersprechen kannst. Weitere Informationen zum Datenschutz

Über den Anbieter

StarREAL OG
StarREAL OGMaklerbüro
Rennweg 78/2, 1030 WIEN
partner badge
Partnerschaft
Frau Denise LenhardtDein Kontakt
Online-ID: 25396847U7U3
Referenznummer: OBGC20250705105418334c9ee2dc47e
StarREAL OG
StarREAL OG
Nachricht hinzufügen
Mit der Nutzung der oben angegebenen Telefonnummer oder durch Klicken auf „Kontaktieren“ akzeptierst Du die Allgemeinen Nutzungsbedingungen, denen Du jederzeit widersprechen kannst. Weitere Informationen zum Datenschutz
MediumRectangleTop
MediumRectangleBottom
MediumRectangleTop
Wie zufrieden bist du mit dieser Seite (nicht mit der Immobilie selbst)?