

Niehaus Immobilien
Herr Daniel Ebbing
028 ···
Nr. anzeigenPreise & Kosten
Provision für Käufer
3,57% inkl. MwSt.
Lage
Das Objekt befindet sich in zentralster Wohnlage im Ortskern von Südlohn. Sämtliche Geschäfte des täglichen Bedarfs liegen direkt vor der Tür und sind mit wenigen Schritten erreichbar. Die Gemeinde Südlohn mit ihren insgesamt ca. 9.000 Einwohnern liegt im westlichen Münsterland. Sie gliedert sich in die Ortsteile Südlohn und...
Die Wohnung
Wohnungslage
Dachgeschoss
Bezug
Q4 2026
Wohnanlage
Details
Objektbeschreibung
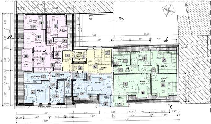
Zentraler geht es nicht, eine moderne City-Wohnung im Herzen von Südlohn! Wir bieten Ihnen hier eine moderne Dachgeschosswohnung (W8) mit 2 Schlafzimmern, Tageslichtbad mit Dusche, Abstellraum im Keller und gemütlichem Balkon an und ist besonders gut als Kapitalanlage oder kompakte Eigentumswohnung zur Selbstnutzung geeignet...
Ausstattung
Folgende Ausstattungsmerkmale W8:
- barrierefrei
- Balkon
- 2 Schlafzimmer
- Bad mit Dusche
- Fußbodenheizung
- 3-fach verglaste Fenster
- zusätzlich ein separater Kellerraum zur alleinigen Nutzung
- gemeinschaftliche Fahrradstellplätze
- Glasfaserausbaugebiet
- Wärmepumpe
- Effizienzhaus 40...
Weitere Informationen
Sonstiges
Die Grundrisse in diesem Exposé wurden überarbeitet und entsprechen dem geplanten Istzustand nach Kernsanierung. Die Visualisierung dient lediglich als Orientierung, Abweichungen sind möglich. Es wird daher keine Haftung für die Maßstabsgenauigkeit übernommen. Die Originalpläne aus der Baugenehmigung erhalten Sie...
Anbieter der Immobilie
Niehaus Immobilien
Kirchstr. 5, 46354 Südlohn

Online-ID: 2kbmz5l
Referenznummer: 7164#lKbZG
Finde Angebote wie dieses
Hier geht es zu unserem Impressum, den Allgemeinen Geschäftsbedingungen, den Hinweisen zum Datenschutz und nutzungsbasierter Online-Werbung.