Version: 8.24.0Navigation überspringen
1.350.000 €
4 Zimmer  •  264 m²  •  4. Geschoss
Immowelt logo

Penthouse zum Kauf
1350000 €
5.114 €/m²
4 Zimmer  •  264 m²  •  4. Geschoss

Van Ommerenlaan 22 2243 CE WASSENAAR

beautifully situated 4-room penthouse (approx. 265 m² living space) with large balconies on the third floor of a small apartment complex on the rust en vreugd estate. originally two apartments, it was completely renovated and redesigned in 2009. you will find high-quality materials and luxurious details, including a custom-made interior and air conditioning. there are also two parking spaces and a storage unit in the basement.

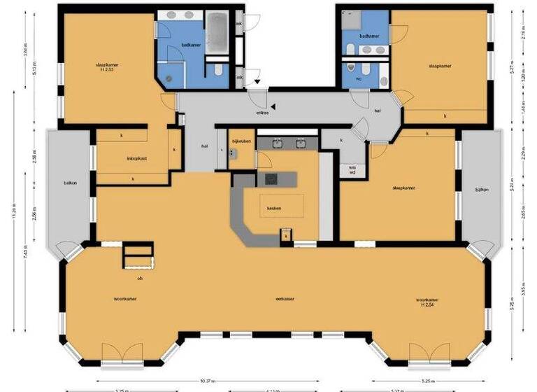
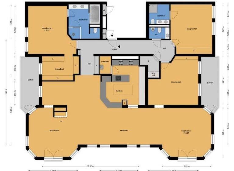
layout:
central entrance with intercom, elevator to the 3rd floor.
entrance, spacious hall with luxurious stone flooring and underfloor heating, and guest toilet.
master bedroom at the rear has an ensuite bathroom with a steam shower, spacious bathtub and double vanity. the second bedroom at the front also has its own bathroom.
separate laundry room and separate storage room in the hallway. stylish office with walnut cabinets and a desk.
spacious living room (three combined rooms) with a gas fireplace, large windows, and stunning views. two balconies surrounded by greenery. the semi-open designer kitchen features high-quality miele appliances, including two ovens, wine coolers, and a large bar.

this luxury penthouse is situated in a quiet, green setting with beautifully landscaped gardens and a water feature. with access roads nearby, you can combine tranquility with accessibility.

additional information:
- leasehold, ground rent €781 per month, fixed for 10 years and indexed. after the leasehold period ends in 2057, a new leasehold period and rent will be determined.
- double glazing throughout
- electric blinds
- ample closet space
- two parking spaces in the basement and a private storage unit
- active and healthy homeowners' association (vve), monthly fee approximately €1.050,- per month, including advance costs for water
- age and materials clauses will be included in the nvm purchase agreement

Merkmale

  • 4. Geschoss

Grundrisse

Grundrisse
1 / 3

Realisiere Dein Projekt

Bausubstanz und Energie

Der Anbieter hat keine Informationen zum Energieverbrauch bereit gestellt.
  • Baujahr1988
  • Zustand der ImmobilieAltbau (bis 1945)
Immowelt logo

Preisdetails

Kaufpreis
1350000 €
5.113,64 €/m²
Provision für Käufer
Bitte beachte, das Angebot kann bei Vertragsabschluss die Zahlung einer Provision beinhalten. Weitere Informationen erhältst Du vom Anbieter.

Lage

address-icon
van ommerenlaan 22wassenaar (2243 CE)

Weitere Informationen

Stichworte Lagerfläche: 71,00 m², Anzahl der Schlafzimmer: 3, Anzahl der Badezimmer: 2, Kubatur: 836,00 m³, Bundesland: zuid-holland, 1 Etagen

Weitere Services

Lust auf eine Besichtigung?
Eine Frage zur Immobilie?
Nachricht hinzufügen
Mit der Nutzung der oben angegebenen Telefonnummer oder durch Klicken auf „Kontaktieren“ akzeptierst Du die Allgemeinen Nutzungsbedingungen, denen Du jederzeit widersprechen kannst. Weitere Informationen zum Datenschutz

Über den Anbieter

Baerz & Co
Baerz & CoMaklerbüro
Gustav Mahlerplein 28, 1082MA Amsterdam
partner badge
Partnerschaft
Frau Chantal Cunningham
Frau Chantal CunninghamDein Kontakt
Online-ID: 2nskx5g
Referenznummer: 47201
Baerz & Co
title
Baerz & Co
Bewertung: 1 von 5 Sternen aus einer Bewertung
Nachricht hinzufügen
Mit der Nutzung der oben angegebenen Telefonnummer oder durch Klicken auf „Kontaktieren“ akzeptierst Du die Allgemeinen Nutzungsbedingungen, denen Du jederzeit widersprechen kannst. Weitere Informationen zum Datenschutz
Wie zufrieden bist du mit dieser Seite (nicht mit der Immobilie selbst)?