2 komplette Etagen im "Schwanenbau" in Offenburg zu verkaufen
Zum Verkauf stehen hier gleich 2 ganze Etagen im "Schwanenbau" in Offenburg (3. OG + 4. OG).
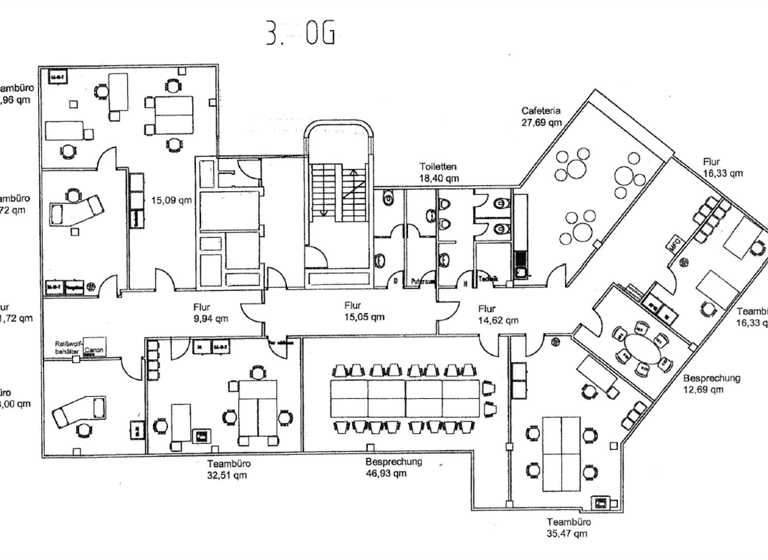
Im 3. OG befinden sich 9 Räume, wovon einer als Cafeteria mit Einbauküche verwendet wird. Zusätzlich gibt es 2 getrennte Toiletten sowie einen Abstell- und einen kleinen Technikraum.
Im 4. OG befinden sich 10 Räume, wovon einer als Pausenraum mit kleiner Einbauküche verwendet wird. Zusätzlich gibt es 2 getrennte Toiletten und einen kleinen Serverraum, welcher klimatisiert ist.
Beide Etagen sind EDV-verkabelt (Netzwerk) und miteinander verbunden.
Optional können PKW-Stellplätze im Innenhof oder in der Tiefgarage zusätzlich erworben werden.
Die Immobilie ist noch bis zum 31.12.2025 vermietet!
Merkmale
frei ab sofort
Grundrisse
Grundrisse
1 / 2
Realisiere Dein Projekt
Bausubstanz und Energie
Der Anbieter hat keine Informationen zum Energieverbrauch bereit gestellt.
Baujahr1977
HeizungsartZentralheizung
EnergieträgerGas
Preisdetails
Kaufpreis
1850000 €1.850.000 €
Provision für Käufer
Es wird eine Maklerprovision in Höhe von 3,57% einschl. MwSt. (aktuell 19%) berechnet. Die Provision ist mit dem Datum des notariellen Kaufvertrages verdient und fällig.
Geschätzte Gesamtkosten
1.916.045 €1
Kaufpreis
1.850.000 €
Kaufnebenkosten
66.045 €
2
Provision für Käufer (3,57%)
66.045 €
1Der angezeigte Wert ist eine automatisch berechnete Schätzung von immowelt.
2Bei den Angaben handelt es sich um ortsübliche Werte. Individuelle Kosten können abweichen.
Lage
Stadtmitte, Offenburg (77652)
Der Anbieter hat die genaue Adresse nicht freigegeben
Der "Schwanenbau" in Offenburg befindet sich in der Hauptstraße kurz vor dem Beginn der Innenstadt.
Weitere Informationen
Maklerprovision
Es wird eine Maklerprovision in Höhe von 3,57% einschl. MwSt. (aktuell 19%) berechnet. Die Provision ist mit dem Datum des notariellen Kaufvertrages verdient und fällig.
Sonstiges
HINWEIS: Wir arbeiten grundlegend OHNE Bieterverfahren!
Korrektheit der Angaben
Ich weise darauf hin, dass die im Exposé genannten Informationen und Angaben zum Objekt ausdrücklich unverbindlich sind und nur zur Vorabinformation bestimmt sind. Für die im Exposé genannten Angaben bin ich auf die Auskünfte des Verkäufers/Vermieters/Verwalters/Auftraggebers etc. angewiesen. Diese an mich übermittelten Angaben sind nicht zwangsläufig durch mich auf Richtigkeit hin überprüft worden. Eine Haftung für die Richtigkeit oder Vollständigkeit dieser Angaben übernehme ich daher nicht! Es obliegt jedem meiner Kunden, die Angaben selbst auf ihre Richtigkeit und Vollständigkeit zu prüfen und es steht jedem frei auf eigene Rechnung einen entsprechenden Sachverständigen zu beauftragen. Ich weiße darauf hin, dass ich als Immobilienmakler KEIN Sachverständiger bin. Als Rechtsgrundlage gilt alleine der notariell abgeschlossen Kaufvertrag oder der schriftlich abgeschlossene Mietvertrag.
Geldwäschegesetz
Gemäß §2 Abs. 1 Nr. 14 und §10 Abs. 3 Geldwäschegesetz (GwG) ist Kienle Immobilien - Thomas Kienle Einzelunternehmung, Winkel 7, 77654 Offenburg als Immobilienmakler dazu verpflichtet, bereits bei der Anbahnung einer Geschäftsbeziehung die Identität der Vertragspartner festzustellen, zu prüfen, zu dokumentieren und zu archivieren. Hierzu bringen Sie zum Besichtigungstermin bitte immer ein gültiges, amtliches Ausweisdokument mit.