




Bürofläche zur MieteMietkosten auf Anfrage2 Zimmer • 195 m² Bürofläche
Mietkosten auf Anfrage
2 Zimmer • 195 m² Bürofläche
*** Neckarsulm: moderne, großzügige Büroflächen in Top-Lage: 2 Großraumbüros (ca. 195 qm) ***
Merkmale
- Bezug: sofort
- 2. Geschoss
- Personenaufzug
- Außen-Stellplatz
- Gäste-WC
- Barrierefrei, Rollstuhlgerecht
- Bodenbelag: Stein
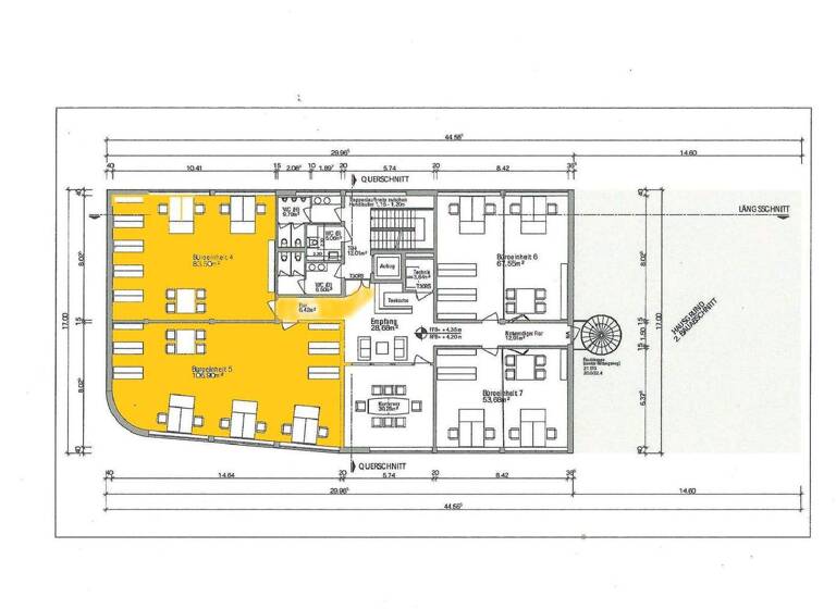
Grundrisse
Grundrisse
1 / 1
Realisiere Dein Projekt
Bausubstanz und Energie
Energieausweis
Endenergieverbrauch (Wärme)
Endenergieverbrauch (Strom)
- Baujahr2011
- Zustand der ImmobilieGepflegt
- HeizungsartFußbodenheizung
- EnergieträgerLuft-/Wasser-Wärmepumpe
Mietkosten
Miete auf Anfrage
Heizkosten
in Warmmiete enthalten
Provision für Mieter
3 Netto Kaltmieten zzgl. MwSt.
3 Netto Kaltmieten zzgl. 19 % MwSt. Fällig bei Unterzeichnung des Mietvertrages.
3 Netto Kaltmieten zzgl. 19 % MwSt. Fällig bei Unterzeichnung des Mietvertrages.
Kaution
3 Nettokaltmieten
Weitere Preisinformationen
1 Stellplatz
Lage

Neckarsulm (74172)
Der Anbieter hat die genaue Adresse nicht freigegeben
Weitere Informationen
Weitere Services
Lust auf eine Besichtigung?
Eine Frage zur Immobilie?
Über den Anbieter
ProMak Immobilien Vermittlungs GmbHMaklerbüro
Wohnlichstr. 6-8, 75179 Pforzheim
10 Jahre Partnerschaft
Frau Heike DietzeDein Kontakt
Online-ID: 2ng3t5d
Referenznummer: 20221014#j6DJgB
Wie zufrieden bist du mit dieser Seite (nicht mit der Immobilie selbst)?




