Version: 8.26.0Navigation überspringen
15,60 €
1.299 m² Bürofläche
Immowelt logo

Bürofläche zur Miete • provisionsfrei
15,60 €
/m²
1.299 m² Bürofläche

Bürohaus über drei Etagen mit einer atemberaubenden, über ca. 150 m² großen Dachterrasse

Sie suchen eine vielseitige Bürofläche zur Miete für bis zu ca. 100 Mitarbeiter und möchten Ihrer Belegschaft flexibles Arbeiten ermöglichen, in unmittelbarer Nähe hohe Serviceleistungen wie Kantine und Fitnessstudio offerieren? In diesem Fall haben wir die passende Immobilie für Ihr Unternehmen:

Ein komplettes Bürogebäude oder Teil-Büroflächen warten darauf, Ihren Ansprüchen an eine moderne Arbeitsumgebung gerecht zu werden: Der Internetzugang ist dank Glasfaser gewährleistet. Die Räumlichkeiten sind aktuell hochwertig und ansprechend möbliert und befinden sich in neuwertigem Zustand. Großzügige Fensterfronten sorgen für eine helle und freundliche Atmosphäre. Akustikdeckensegel sowie Stellwände in Leichtbauweise ermöglichen komfortables, produktives Arbeiten sowie potentielle Raumänderungen, die sowohl Flexibilität als auch Diskretion gestatten. Zwei Serverräume befinden sich im Erdgeschoss (EG) bzw. im 2. Obergeschoss (OG) mit Doppelboden.

Die Büroimmobilie befindet sich in schöner, ruhiger Lage im Technologiedorf Karlsruhe. Hier im "Techpark" profitieren Sie von zentralen Sonderflächen wie gemeinsamer Empfangsbereich, Konferenzcenter, Kantine, Sport- und Freizeiteinrichtungen usw.

Effizientes Heizen und Kühlen via Betonkerntemperierung, Lüften und Beheizen mittels Geothermie sowie Eigenstromerzeugung per Photovoltaikanlage auf den Flachdächern sind grundlegende Merkmale des nachhaltigen Energiekonzeptes.

Mehrere Firmen finden in diesem kfW-50-Gebäude Platz, da jede Etage einen separaten Eingang aufweist. Die Eingangstür ist mit einer digitalen, sicheren Zugangskontrolle ausgestattet: Ein Transponder ermöglicht das Öffnen der Türen, die Klingelanlage ist mit einer Kamera versehen.

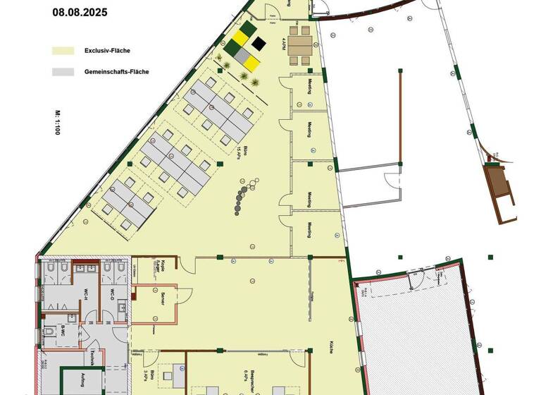
Im EG beträgt die Bürofläche ca. 388 m². Hier gibt es eine Terrasse von ca. 49 m² und eine Behinderten-Toilette. Im 1. OG kann die vorhandene Bürofläche von ca. 390 m² in vier (Büro-)Bereiche aufgeteilt werden. Das 2. OG bietet eine Bürofläche von ca. 334 m² sowie Gemeinschaftsräume. Im Dachgeschoss beträgt die Bürofläche ca. 187 m². Eine großzügige Terrasse und WC sind hier insgesamt ca. 151 m² groß.

Installationsböden sind in allen Bereichen verlegt (u. a. Lastklasse 2 nach DIN EN 1321), der Bodenbelag in den Büros ist Teppichboden (Kugelgarn).

Das Mobiliar kann gegen Entgelt übernommen werden. Der Mietpreis von 15,60 €/ m² versteht sich zzgl. Nebenkostenvorauszahlungspauschale.

In der Tiefgarage gibt es 16 PKW-Stellplätze (weitere bei Bedarf). Die Stellplatzmiete beträgt 81,80 € zzgl. ges. USt. Eine Wallbox, ausreichend für zwei E-Autos, und zwei Starkstromanschlüsse sind installiert. Ein Personenaufzug bietet direkten, barrierefreien Zugang zu den Büroebenen.

Für Ihre Geschäftspartner gibt es im Außenbereich zahlreiche, unentgeltliche Parkplätze. 600 m entfernt befindet sich die nächste S-Bahn-Haltestelle, in ca. 25 min. erreichen Sie den Hauptbahnhof Karlsruhe.

Merkmale

  • Bezug: nach Vereinbarung
  • Personenaufzug
  • Bodenbelag: Doppelboden, Teppich

Grundrisse

Grundrisse
1 / 4

Bausubstanz und Energie

Energieausweis

Endenergieverbrauch (Wärme)

Endenergieverbrauch (Strom)

  • Baujahr2021
Immowelt logo

Mietkosten

Monatliche Miete
15,60 €/m²
Provision für Mieter
provisionsfrei
Kaution
keine Angabe

Lage

address-icon
RintheimKarlsruhe / Innenstadt-Ost (76131)
Der Anbieter hat die genaue Adresse nicht freigegeben
Das Oberzentrum Karlsruhe ist mit rund 312.000 Einwohnern die drittgrößte Stadt in Baden-Württemberg und liegt in der Region Mittlerer Oberrhein. Die Stadt ist einer der bedeutendsten europäischen Standorte der Informations- und Kommunikationstechnik, ein Wirtschaftsschwerpunkt und Dienstleistungszentrum ersten Ranges, mit zahlreichen Bildungs-, Forschungs- und Entwicklungseinrichtungen. Das Angebot im Bereich Grund- und Nahversorgung, Sozial- und Gesundheitswesen, Kinder-, Jugend- und Seniorenbetreuung, Bildung und Wirtschaft sowie Kultur und Freizeit ist selbstverständlich vollständig.

Die Infrastruktur ist hervorragend ausgeprägt. Das innerstädtische und überregionale Stadtbahnsystem erstreckt sich über die gesamte Region, mehrere Bundesstraßen verbinden die umliegenden Gemeinden und Städte, die Autobahnen A5 Basel-Frankfurt und A8 Karlsruhe-München sind über das Karlsruher Dreieck verbunden, die A65 Karlsruhe-Mannheim führt linksrheinisch in die Metropolregion Rhein-Neckar mit Mannheim und Heidelberg. Die nächste Autobahnzufahrt zur A5 (Durlach) liegt in einer Entfernung von circa 3,5 km.

Die Immobilie liegt nordöstlich des Zentrums von Karlsruhe im Übergang der Stadtteile Waldstadt, Rintheim und Oststadt, dem "Herz der Technologieregion" mit einer Vielzahl an Technologie- und Forschungseinrichtungen wie das KIT und das Fraunhofer-Institut.

Weitere Informationen

Sonstiges Gerne können Sie ein ausführliches Exposé mit weiteren Informationen anfordern oder auf unserer Website im VIP-Bereich downloaden.

Sie möchten Ihre Immobilie verkaufen?
Mit uns glücklicher Verkäufer werden und einen unverbindlichen Beratungstermin vereinbaren.

Telefonische Erreichbarkeit
Mo. - Fr. : 9:00 - 12:00 und 14:00 - 17:00 Uhr
(Nicht an Feiertagen) Stichworte Nutzfläche: 549,00 m², vermietbare Fläche: 1.848,00 m², Bundesland: Baden-Württemberg Sonstiges: EDV-Verkabelung

Weitere Services

Lust auf eine Besichtigung?
Eine Frage zur Immobilie?
Mit einer persönlichen Nachricht hast du bessere Chancen auf eine Antwort.
Mit der Nutzung der oben angegebenen Telefonnummer oder durch Klicken auf „Kontaktieren“ akzeptierst Du die Allgemeinen Nutzungsbedingungen, denen Du jederzeit widersprechen kannst. Weitere Informationen zum Datenschutz

Über den Anbieter

Schönbornstraße 19, 76646 Bruchsal
partner badge
6 Jahre Partnerschaft
Herr Peter SchürrerDein Kontakt
Online-ID: 26I2YAEF6KGE
Referenznummer: 207736
Wie zufrieden bist du mit dieser Seite (nicht mit der Immobilie selbst)?