Version: 8.25.1Navigation überspringen
699.900 €
7 Zimmer  •  154 m²
Immowelt logo

WG-Zimmer zum Kauf • als Kapitalanlage geeignet
699900 €
4.545 €/m²
7 Zimmer  •  154 m²

Seltene Chance: Zwei 3-Zimmer-Wohnungen mit Zusammenlegungspotenzial

Diese beiden sanierungsbedürftigen 3-Zimmer-Wohnungen eröffnen eine seltene Möglichkeit zur Zusammenlegung zu einer großzügigen 6-7-Zimmer-Wohnung mit rund 154 m² Wohnfläche. Die aktuelle Substanz bietet dabei eine ideale Grundlage, um ein individuelles Wohnkonzept nach eigenen Vorstellungen zu realisieren.

Durch den sanierungsbedürftigen Zustand ergibt sich der große Vorteil, dass Grundriss, Ausstattung und Gestaltung nahezu vollständig neu gedacht und an persönliche Bedürfnisse angepasst werden können - von der modernen Familienwohnung bis hin zu einer repräsentativen Wohnlösung mit großzügigen Raumstrukturen.

Auf Wunsch begleiten wir den gesamten Entwicklungs- und Sanierungsprozess strukturiert und transparent - von der Planung bis zur finalen Umsetzung.
Die dargestellten Bilder dienen als Visualisierungen eines möglichen Endergebnisses. Diese wurden gemeinsam mit unserem Architekten entwickelt und sollen einen ersten Eindruck vermitteln, welches Wohnkonzept sich aus der Zusammenlegung der beiden Einheiten realisieren lässt.

Merkmale

  • frei ab sofort
  • 2. Geschoss
  • offene Küche
  • Personenaufzug
  • Keller
  • Balkon
  • DSL-Anschluss
  • Badezimmer: Badewanne, Bad mit Dusche

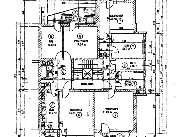
Grundrisse

Grundrisse
1 / 1

Realisiere Dein Projekt

Bausubstanz und Energie

Energieausweis

D
  • Baujahr1964
  • Zustand der ImmobilieNeubau, Massivhaus, renovierungsbedürftig / sanierungsbedürftig
  • HeizungsartZentralheizung
  • EnergieträgerGas
Immowelt logo

Preisdetails

Kaufpreis
699900 €
4.544,81 €/m²
Hausgeld
590 €
Provision für Käufer
3,57 % inkl. der gesetzlichen Mehrwertsteuer (19 %).
Geschätzte Gesamtkosten
784.379 €1
Kaufpreis
699.900 €
Notarkosten (1,5%)
10.499 €
Grunderwerbsteuer (6,5%)
45.494 €
Provision für Käufer (3,57%)
24.986 €
Grundbucheintrag (0,5%)
3.500 €
1Der angezeigte Wert ist eine automatisch berechnete Schätzung von immowelt.
2Bei den Angaben handelt es sich um ortsübliche Werte. Individuelle Kosten können abweichen.

Lage

address-icon
GolzheimDüsseldorf (40474)
Der Anbieter hat die genaue Adresse nicht freigegeben
Golzheim zählt zu den stabilsten und wertbeständigsten Wohnlagen Düsseldorfs. Die Nähe zum Rhein, zur Innenstadt, zum Messe- und Business-Standort sowie die hervorragende Verkehrsanbindung schaffen eine Lage, die Eigennutzer wie Kapitalanleger gleichermaßen überzeugt.
Hier treffen Ruhe, Urbanität und nachhaltige Nachfrage aufeinander - ein Standort mit Substanz und Perspektive.

Weitere Informationen

Sonstiges Courtage Die Courtage in Höhe von 3,57 % inkl. der gesetzlichen Mehrwertsteuer auf den Kaufpreis ist mit dem Zustandekommen des Kaufvertrages (notarieller Vertragsabschluss) verdient und fällig. Die Vermittelnden und/oder Nachweisenden, Francisco Bravo & Waldemar Feldmann GbR und ggf. deren Beauftragter, erhalten einen unmittelbaren Zahlungsanspruch gegenüber dem Käufer (Vertrag zugunsten Dritter, § 328 BGB). Alle Angaben sind ohne Gewähr und basieren ausschließlich auf Informationen, die uns von unserem Auftraggeber zur Verfügung gestellt wurden. Wir übernehmen keine Gewähr für die Vollständigkeit, Richtigkeit und Aktualität dieser Angaben. Die Grunderwerbsteuer, Notar- und Grundbuchkosten sind vom Käufer zu tragen. Im Übrigen gelten unsere Allgemeinen Geschäftsbedingungen. Irrtum und Zwischenverkauf vorbehalten. Stichworte Serviceleistungen: Hausmeister

Weitere Services

Lust auf eine Besichtigung?
Eine Frage zur Immobilie?
Nachricht hinzufügen
Mit der Nutzung der oben angegebenen Telefonnummer oder durch Klicken auf „Kontaktieren“ akzeptierst Du die Allgemeinen Nutzungsbedingungen, denen Du jederzeit widersprechen kannst. Weitere Informationen zum Datenschutz

Über den Anbieter

Monheimer Str. 26, 40789 Monheim am Rhein
Herr Erik MargrafDein Kontakt
Online-ID: 266WC5SCXJNI
Referenznummer: 1629 (1/1629)
Immobiliefürmich GmbH
Immobiliefürmich GmbH
Nachricht hinzufügen
Mit der Nutzung der oben angegebenen Telefonnummer oder durch Klicken auf „Kontaktieren“ akzeptierst Du die Allgemeinen Nutzungsbedingungen, denen Du jederzeit widersprechen kannst. Weitere Informationen zum Datenschutz
Wie zufrieden bist du mit dieser Seite (nicht mit der Immobilie selbst)?