Version: 8.24.0Navigation ĂĽberspringen
980.000 €
14 Zimmer  â€˘  328 m²  â€˘  494 m² GrundstĂĽck
Immowelt logo

Mehrfamilienhaus zum Kauf • als Kapitalanlage geeignet
980000 €
2.988 €/m²
14 Zimmer  â€˘  328 m²  â€˘  494 m² GrundstĂĽck

vermietetes Vierfamilienhaus in bevorzugter Wohnlage

Gepflegtes Mehrfamilienhaus mit 4 Einheiten in bester Wohnlage von Neu Wulmstorf.

Flächenaufteilung:

-Ca. 325 - Wohnfläche
-Ca. 494 - EigenlandgrundstĂĽck (real geteilt)



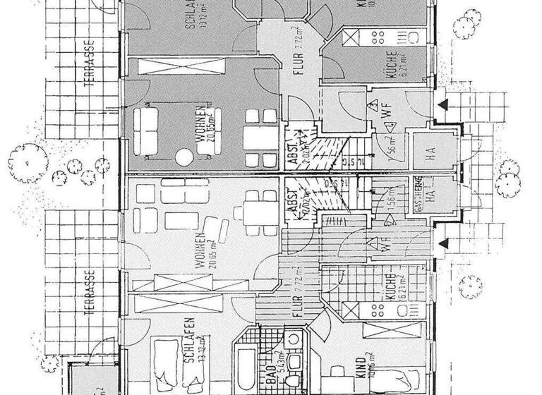
Wohnungsgrößen:

- Ca. 68 m² - Wohnung-Nr. 1 (Erdgeschoss -links - Haus 77)
- Ca. 94 m² – Wohnung -Nr. 2 (Dachgeschoss - rechts - Haus 77)
- Ca. 68 m² – Wohnung -Nr. 3 (Erdgeschoss - rechts - Haus 79)
- Ca. 94 m² – Wohnung -Nr. 4 (Dachgeschoss - rechts - Haus 79)



Ist-Miete:

EUR ~ p.a. 41.868,00 € / p. M. 3.489,00 €

Mieteinnahmen im Ăśberblick (netto/monatlich)

Stellplatzmieten: €  60,00
Erdgeschoss:  € 1.580,00
Dachgeschoss:   â‚¬ 1.849,00
Gesamtmieteinnahmen:   â‚¬ 3.489,00

Energieausweis:

- Verbrauchsausweis, Endenergieverbrauch 87,2 kWh/(m²*a), Gas, Gebäudebaujahr 1999, Energieeffizienzklasse C

Besonderheit:

Weitere Informationen und diverse Fotos finden Sie im anliegenden Verkaufsexposee.

Merkmale

  • Bezug: Nach Vereinbarung
  • vermietet
  • 2 Geschosse
  • 494 m² GrundstĂĽck
  • EinbaukĂĽche
  • 4 Stellplätze: AuĂźen-Stellplatz
  • Bodenbelag: Fliesen, Laminat, Kunststoff
  • Fenster: Kunststoff

Grundrisse

Grundrisse
1 / 3

Realisiere Dein Projekt

Bausubstanz und Energie

Energieausweis

C
  • Baujahr1999
  • Zustand der ImmobilieGepflegt
  • HeizungsartZentralheizung
  • EnergieträgerGas
Immowelt logo

Preisdetails

Kaufpreis
980000 €
2.987,80 €/m²
Provision für Käufer
Die Käufercourtage beträgt 5 % inkl. der gesetzlichen MwSt.

Siehe bitte auch Sonstiges!
Geschätzte Gesamtkosten
1.083.586 €1
Kaufpreis
980.000 €
Notarkosten (1,5%)
14.700 €
Grunderwerbsteuer (5%)
49.000 €
Provision für Käufer (3,57%)
34.986 €
Grundbucheintrag (0,5%)
4.900 €
1Der angezeigte Wert ist eine automatisch berechnete Schätzung von immowelt.
2Bei den Angaben handelt es sich um ortsübliche Werte. Individuelle Kosten können abweichen.

Lage

address-icon
Auering 77-79, Neu Wulmstorf (21629)
Bevorzugte Wohnlage in Neu Wulmstorf.

Neu Wulmstorf liegt nur etwa 30 km Luftlinie vom Stadtzentrum Hamburg in südwestlicher Richtung entfernt, gut zu erreichen durch den Elbtunnel über die A7 und die B73, sowie aus Richtung Süden über die A1 und die B3. Direkter Bahnanschluss besteht zur Strecke Hamburg-Cuxhaven (S-Bahn-Anschluss bis Stade), Busverbindung Richtung Hamburg ist durch den Hamburger Verkehrsverbund (HVV) gegeben (nächste Haltestelle innerhalb von 4 Gehminuten zu erreichen). Der Ort Neu Wulmstorf bietet diverse Kindergärten, 2 Grundschulen, eine Oberschule und ein Gymnasium sowie alle Einkaufsmöglichkeiten des täglichen Bedarfs und noch ein wenig mehr. Alle bekannten Discounter sind vor Ort, die ärztliche Versorgung ist hervorragend (Krankenhaus in Buxtehude oder Harburg), darüber hinaus bieten Eiscafes, ein CrossFit-Studio, ein Fitnessstudio, ein Kino, ein Sonnenstudio, ein Bioladen und eine vielfältige Gastronomie einen schönen privaten Ausgleich. Die Gemeinde Neu Wulmstorf und der unmittelbare Umkreis bieten vielfältige Freizeitmöglichkeiten wie: Freibad, Hallenbad, Jugendzentrum, Reithallen, Minigolf sowie großzügige Rad- u. Wanderwege.

Weitere Informationen

Sonstiges Die Käufercourtage in Höhe von 5 % inkl. der gesetzlichen Mehrwertsteuer auf den Kaufpreis ist mit dem Zustandekommen des Kaufvertrages (notarieller Vertragsabschluss) verdient und fällig. Die vermittelnde und/oder nachweisende Maklerfirma Puttkammer & Team, und ggf. deren Beauftragter, erhalten einen unmittelbaren Zahlungsanspruch gegenüber dem Käufer (Vertrag zugunsten Dritter, § 328 BGB).   Die Grunderwerbsteuer, Notar-, Gerichts- und Grundbuchkosten sind ebenfalls vom Käufer zu tragen.





Weitere Anlagen (z. B. Fotos/Grundrisse) finden Sie im Anhang (pdf-Dokument)...

Alle in dieser Expertise stehenden Angaben zum Kaufobjekt sind von dem Eigentümer, Behörden, Banken und anderen Dritten zur Verfügung gestellt worden. Selbstverständlich wurden alle Angaben mit größter Sorgfalt überprüft. Wir können für die Richtigkeit und die Aktualität dieser Angaben jedoch trotz hoher Sorgfalt keine Gewähr und keine Haftung übernehmen. Soweit die Grundrissgrafiken Maßangaben und Einrichtungen enthalten, wird auch für diese jegliche Haftung ausgeschlossen. Wir können auch nicht gewährleisten, dass zum Zeitpunkt des Zugangs des Exposés oder zu einem späteren Zeitpunkt das Objekt noch zum Verkauf steht. Das Angebot ist insoweit unverbindlich und freibleibend. Bitte beachten Sie unsere AGB`s.

Interessiert? Besichtigungen sind auf Wunsch des Verkäufers und aus Diskretionsgründen ausschließlich mit unserem Büro (Tel.: 0 40 - 70 97 05 86) zu vereinbaren. Stichworte Sonstiges/Wohnen: Dachboden

Weitere Services

Lust auf eine Besichtigung?
Eine Frage zur Immobilie?
Nachricht hinzufĂĽgen
Mit der Nutzung der oben angegebenen Telefonnummer oder durch Klicken auf „Kontaktieren“ akzeptierst Du die Allgemeinen Nutzungsbedingungen, denen Du jederzeit widersprechen kannst. Weitere Informationen zum Datenschutz

Ăśber den Anbieter

Rudolf-Diesel-StraĂźe 1, 21629 Neu Wulmstorf
partner badge
6 Jahre Partnerschaft
Herr Thomas Zufall
Herr Thomas ZufallDein Kontakt

Weitere Unterlagen

Online-ID: 2mvc956
Referenznummer: 12622124343
Makler Puttkammer & Team
title
Makler Puttkammer & Team
Nachricht hinzufĂĽgen
Mit der Nutzung der oben angegebenen Telefonnummer oder durch Klicken auf „Kontaktieren“ akzeptierst Du die Allgemeinen Nutzungsbedingungen, denen Du jederzeit widersprechen kannst. Weitere Informationen zum Datenschutz
Wie zufrieden bist du mit dieser Seite (nicht mit der Immobilie selbst)?