Version: 8.25.1Navigation überspringen
McMakler GmbH
569.000 €
15 Zimmer  •  450,1 m²  •  3.837,1 m² Grundstück

Mehrfamilienhaus zum Kauf
569000 €
1.264 €/m²
15 Zimmer  •  450,1 m²  •  3.837,1 m² Grundstück

Wohnraum für alle: Großes 7-Zimmer-EFH & 3 Mietwohnungen auf einem Grundstück vereint

Objektnr: 1069819

Als ideale Option für Eigennutzung und Investment präsentiert sich dieses Objekt in Schwedt/Oder, beschaulich und sicher in einer Nebenstraße. Während 2 Einheiten bereits vermietet sind, stehen Ihnen 2 bezugsfrei zur Verfügung. Indem Sie das vorhandene Mietsteigerungspotenzial optimal nutzen, gewährleisten Sie eine zügige Refinanzierung Ihrer Investition und erzielen eine erhöhte Rendite. Etwa 15.240 € werden durch die bestehende Vermietung derzeit als Jahresnettokaltmiete erzielt, wobei diese auf eine Soll-Jahresnettokaltmiete von ca. 20.094 € gesteigert werden kann. Die ursprünglich 1997 erbaute Immobilie charakterisiert sich durch einen gepflegten Zustand.

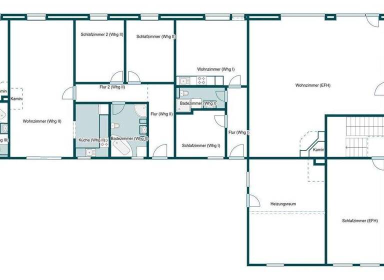
Die Immobilie umfasst ca. 450 m² Gesamtwohnfläche, die sich auf 4 separate Wohneinheiten, sprich ein 7-Zi.-EFH mit ca. 250 m² (selbstgenutzt); eine 3-Zi-WHG mit ca. 95 m² (vermietet); eine 3-Zi-WHG mit ca. 63 m² (vermietet); eine 2-Zi-WHG mit ca. 39 m² (frei) verteilt. Hinsichtlich der Ausstattung wartet die Immobilie bspw. mit einer Einbauküche, 3 Kaminen sowie Solarthermie auf. Die zentral beheizten, jedoch unabhängig voneinander nutzbaren Einheiten lassen sich sowohl teilweise als auch vollständig vermieten.

Gelegen ist die Immobilie auf einem ca. 3.837 m² großen Grundstück. Nicht nur eine Loggia und ein überdachter Freisitz verschaffen hier Extra-Komfort. Ein besonderes Highlight der Mietwohnungen ist der große Garten mit 3 Terrassen, der viele Möglichkeiten bietet. Darüber hinaus sind der Immobilie 2 Zufahrten, 3 Garagen und freie Stellplätze für das Abstellen von Pkw zugehörig.

Merkmale

  • Bezug: nach Absprache
  • 3.837,1 m² Grundstück
  • Einbauküche
  • Badezimmer: Badewanne, Bad mit Dusche
  • Kein Keller
  • Terrasse
  • Garten
  • Stellplatz
+ Einfamilienhaus & 3 Wohnungen in Schwedt/Oder für Eigennutzung und Vermietung
+ 2 Wohnungen vermietet zu ca. 15.240 € p.a. - denkbare Vermietung ohne Leerstand zu ca. 20.094 € p.a.
+ Die Immobilie präsentiert sich in einem gepflegten Zustand
+ Ausstattungsdetails umfassen u. a. eine Einbauküche, 3 Kamine und Solarthermie
+ Der Außenbereich umfasst einen Garten mit 3 Terrassen sowie einem überdachten Freisitz; 3 Garagen und Freistellplätze bieten weiteren Komfort

Grundrisse

Grundrisse
1 / 2

Realisiere Dein Projekt

Bausubstanz und Energie

Energieausweis

B
  • Baujahr1997
  • Zustand der ImmobilieGepflegt
  • HeizungsartZentralheizung
  • EnergieträgerÖl, Solar
MediumRectangleTop

Preisdetails

Kaufpreis
569000 €
1.264,44 €/m²
Provision für Käufer
Die Provision i.H.v. 3,57 % inkl. MwSt. ist mit Kaufvertragsbeurkundung fällig, sofern der Verkaufspreis über 83.000,00 € liegt.

Liegt der Verkaufspreis dagegen bei/unter 83. Weitere Informationen siehe Provisionshinweis.
Weitere Preisinformationen
Ist-Mieteinnahmen pro Jahr: 15.240,00 EUR
Geschätzte Gesamtkosten
617.422 €1
Kaufpreis
569.000 €
Notarkosten (1,5%)
8.535 €
Grunderwerbsteuer (6,5%)
36.985 €
Provision für Käufer (0,01%)
57 €
Grundbucheintrag (0,5%)
2.845 €
1Der angezeigte Wert ist eine automatisch berechnete Schätzung von immowelt.
2Bei den Angaben handelt es sich um ortsübliche Werte. Individuelle Kosten können abweichen.

Lage

address-icon
ZützenSchwedt/Oder (16303)
Der Anbieter hat die genaue Adresse nicht freigegeben
Lage: Attraktive Lage in Schwedt/Oder-Zützen mit besten Voraussetzungen für Selbstnutzer und Anleger
Bildung und Betreuung: Mehreren Kindergärten und einigen Schulen in ca. 6 km bis ca. 9 km Entfernung
Nahversorgung: Anlaufstellen wie Supermarkt, Apotheke, Postfiliale und Bankfiliale in einem Radius von max. 6 km
Anbindung: Bushaltestelle komfortabel erreichbar

Weitere Informationen

Provisionshinweis Die Provision i.H.v. 3,57 % inkl. MwSt. ist mit Kaufvertragsbeurkundung fällig, sofern der Verkaufspreis über 83.000,00 € liegt.

Liegt der Verkaufspreis dagegen bei/unter 83.000,00 €, ist die fest vereinbarte Mindestprovision i.H.v. mind. 5.950,00 € inkl. MwSt. mit Kaufvertragsbeurkundung fällig. Die Mindestprovision fällt insg. nur einmal an, wodurch Verkäufer und Käufer die Mindestprovision dann jeweils mit 2.975,00 € inkl. MwSt. tragen. Sonstiges Vereinbaren Sie noch heute einen Besichtigungstermin!
_____________________________________________________

Alle Angaben sind ohne Gewähr und basieren ausschließlich auf Informationen, die uns von unserem Auftraggeber zur Verfügung gestellt wurden. Wir übernehmen keine Gewähr für die Vollständigkeit, Richtigkeit und Aktualität der Angaben. Stichworte Gesamtfläche: 450,00 m², Anzahl der Schlafzimmer: 10, Anzahl der Badezimmer: 5, Anzahl Terrassen: 3, 2 Etagen

Weitere Services

Lust auf eine Besichtigung?
Eine Frage zur Immobilie?
Nachricht hinzufügen
Mit der Nutzung der oben angegebenen Telefonnummer oder durch Klicken auf „Kontaktieren“ akzeptierst Du die Allgemeinen Nutzungsbedingungen, denen Du jederzeit widersprechen kannst. Weitere Informationen zum Datenschutz

Über den Anbieter

Am Postbahnhof 17, 10243 Berlin
Ihr McMakler TeamDein Kontakt
Online-ID: 26S211ADRVZ8
Referenznummer: 169155a866
McMakler GmbH
McMakler GmbH
Nachricht hinzufügen
Mit der Nutzung der oben angegebenen Telefonnummer oder durch Klicken auf „Kontaktieren“ akzeptierst Du die Allgemeinen Nutzungsbedingungen, denen Du jederzeit widersprechen kannst. Weitere Informationen zum Datenschutz
MediumRectangleTop
MediumRectangleBottom
MediumRectangleTop
Wie zufrieden bist du mit dieser Seite (nicht mit der Immobilie selbst)?