

Halle/Industriefläche zur Miete2 €/m²1.100 m² Lagerfläche • teilbar von 200 m² bis 1.100 m²
2 €
/m²
1.100 m² Lagerfläche • teilbar von 200 m² bis 1.100 m²
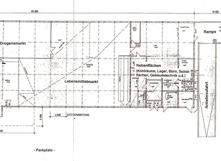
200–1100 m² in Neustadt a.d. O. - mit LKW Laderampe in ehemaligem Supermarkt - ab sofort verfügbar
Merkmale
- 60 Stellplätze: Außen-Stellplatz
- Laderampe
- LKW-Zufahrt
- Überwachungskamera
Grundrisse
Grundrisse
1 / 1
Realisiere Dein Projekt
Bausubstanz und Energie
Möchtest du Details zum Energieverbrauch?

Mietkosten
Monatliche Miete
2 €/m²
Provision für Mieter
Bitte beachte, das Angebot beinhaltet bei Vertragsabschluss die Zahlung einer Provision. Weitere Informationen erhältst Du vom Anbieter.
Kaution
keine Angabe
Lage

Weltwitzer Weg 3, Neustadt, Neustadt an der Orla (07806)
Weitere Informationen
Weitere Services
Lust auf eine Besichtigung?
Eine Frage zur Immobilie?
Über den Anbieter
Oschitzer Straße 36, 07907 Schleiz
Partnerschaft
Herr Jens FichtelmannDein Kontakt
Online-ID: 25TGDCSWQFEL
Planet Casino GmbH
Wie zufrieden bist du mit dieser Seite (nicht mit der Immobilie selbst)?

