Version: 8.22.4Navigation überspringen
19 €
1 Zimmer
Immowelt logo

Atelier zur Miete
19 Euro pro Quadratmeter
1 Zimmer

Erstbezug | Loft-Büro in der Zollergasse

Das Büro

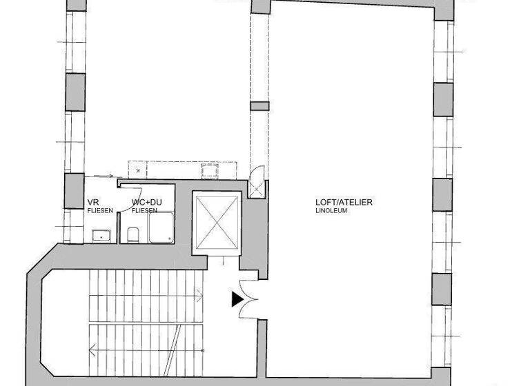
Unweit der Mariahilfer Straße gelangt diese hochwertige und eben erst sanierte Fläche ab sofort zur Vermietung. Das Büro ist ca. 111,02 m² groß, befindet sich im 2. Liftstock eines Gründerzeithauses und besitzt neben einer modernen Ausstattung zusätzlich einen effizienten Grundriss. Durch die offene Bauweise, bietet die Fläche eine Vielzahl an Gestaltungs- und Nutzungsmöglichkeiten. Der große Hauptraum, eignet sich optimal als Open Space und ermöglicht ein kommunikatives Arbeitsklima.

Die Fläche besteht aus einem Großraumbüro sowie Anschlüsse für eine Teeküche und eine Toilette samt moderner Walk-In Dusche. 

Zusätzlich zu den o.a. Betriebskosten werden aktuell noch EUR 100,34 zzgl. 20% Ust. für Heizkosten vorgeschrieben.

Highlights

* Erstbezug
* Große Fensterflächen
* Ausgezeichnete Infrastruktur
* Walk-In Dusche

 

Verkehrsanbindung & Infrastruktur

In unmittelbarer Umgebung der Liegenschaft befindet sich die U-Bahnstation Neubaugasse, an welcher die Linie U3 fährt sowie die U-Bahnstation Museumsquartier der Linie U2. In wenigen Gehminuten fährt die Straßenbahnlinie 49 sowie die Buslinie 13A. Des Weiteren fahren ab dem Westbahnhof die U-Bahnlinie U6, die Straßenbahnlinien 5,6,9,18,52 und 60 sowie mehrere Schnellbahnen und Regionalbahnen. Rund um das Büro befinden sich mehrere Nahversorger und Restaurants. Die nur wenige Gehminuten entfernten Volksgarten, Burggarten und Naschmarkt laden bei gutem Wetter zu einer gemütlich Mittagspause im Freien ein.

 

* Alle Preise verstehen sich zuzüglich der gesetzlichen Umsatzsteuer.

Infrastruktur / Entfernungen

Gesundheit
Arzt <250m
Apotheke <250m
Klinik <250m
Krankenhaus <1.000m

Kinder & Schulen
Schule <250m
Kindergarten <250m
Universität <750m
Höhere Schule <1.000m

Nahversorgung
Supermarkt <250m
Bäckerei <250m
Einkaufszentrum <250m

Sonstige
Geldautomat <250m
Bank <250m
Post <250m
Polizei <500m

Verkehr
Bus <250m
U-Bahn <250m
Straßenbahn <500m
Bahnhof <250m
Autobahnanschluss <4.500m

Angaben Entfernung Luftlinie / Quelle: OpenStreetMap

Grundrisse

Grundrisse
1 / 1

Realisiere Dein Projekt

Bausubstanz und Energie

Heizwärmebedarf (HWB)

E

Gesamtenergieeffizienz (fGEE)

D
Immowelt logo

Mietkosten

Nettokaltmiete
19 €/m²
2.109,38 €
Betriebskosten
225,37 €
Provision für Mieter
3 Bruttomonatsmieten zzgl. 20% USt.
Kaution
6 Bruttomonatsmieten
Weitere Preisinformationen
Nettokaltmiete: 2.109,38 EUR

Lage

address-icon
Zollergasse 9Wien (1070)
Neubaugasse, Mariahilfer Straße

Weitere Informationen

Stichworte Nutzfläche: 111,02 m², Anzahl der Badezimmer: 1, Anzahl der separaten WCs: 1, Bundesland: Wien

Weitere Services

Lust auf eine Besichtigung?
Eine Frage zur Immobilie?
Nachricht hinzufügen
Mit der Nutzung der oben angegebenen Telefonnummer oder durch Klicken auf „Kontaktieren“ akzeptierst Du die Allgemeinen Nutzungsbedingungen, denen Du jederzeit widersprechen kannst. Weitere Informationen zum Datenschutz

Über den Anbieter

Marc-Aurel-Straße 6/6, 1010 WIEN
partner badge
3 Jahre Partnerschaft
Frau Veronika PetrosyanDein Kontakt
Online-ID: 2ngt457
Referenznummer: OBGC20241109123310710ecc71ab926
EDEX Immobilien GmbH
EDEX Immobilien GmbH
Bewertung: 5 von 5 Sternen
Nachricht hinzufügen
Mit der Nutzung der oben angegebenen Telefonnummer oder durch Klicken auf „Kontaktieren“ akzeptierst Du die Allgemeinen Nutzungsbedingungen, denen Du jederzeit widersprechen kannst. Weitere Informationen zum Datenschutz
Wie zufrieden bist du mit dieser Seite (nicht mit der Immobilie selbst)?