Version: 8.24.0Navigation überspringen
79.000 €
2 Zimmer  •  51 m²  •  3. Geschoss
Immowelt logo

Wohnung zum Kauf
79000 €
1.549 €/m²
2 Zimmer  •  51 m²  •  3. Geschoss

NEUMÜNSTER: Vermietete 2-Zi.-Dachgeschosswohnung mit Entwicklungsmöglichkeiten

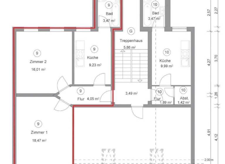
Diese Wohnung liegt im Dachgeschoss eines im Jahr 1900 erbauten Mehrfamilienhauses mit insgesamt acht Wohneinheiten. Auf einer Wohnfläche von rund 51 m² stehen zwei Zimmer, eine Küche, ein Badezimmer sowie ein Flur zur Verfügung.

Die Einheit präsentiert sich in einem gepflegten, aber weitgehend dem Baujahr entsprechenden Zustand. Küche und Bad sind funktional, aber nicht modernisiert. Für Investoren bedeutet das: Hier besteht langfristig Potenzial zur Aufwertung, sobald die Wohnung frei wird.

Aktuell ist die Wohnung langjährig und zuverlässig vermietet. Die monatlichen Kaltmieteinnahmen belaufen sich auf 355,- €. Damit bietet die Einheit eine solide Einnahmequelle und eignet sich insbesondere für Käufer, die eine Kapitalanlage mit Entwicklungsmöglichkeiten suchen.

Beheizt wird das Haus über eine Fernwärmeheizung, die Warmwasserversorgung erfolgt dezentral innerhalb der Wohnungen.

Insgesamt handelt es sich um eine gepflegte Altbauwohnung in zentraler Lage von Neumünster, die durch ihre zuverlässige Vermietung und ihr Entwicklungspotenzial perspektivisch interessant für Kapitalanleger ist.

Buchen Sie am besten gleich Ihren persönlichen Besichtigungstermin. Nutzen Sie hierfür bitte die schriftliche Kontaktfunktion im Immobilienportal, damit wir Ihnen vorab alle relevanten Unterlagen zusenden können. Anfragen beantworten wir in der Regel innerhalb von 24 Stunden. Falls Sie keine Antwort erhalten, prüfen Sie bitte auch den Spam-Ordner Ihres E-Mail-Postfachs.

Merkmale

  • Bezug: nach Vereinbarung
  • vermietet
  • 3. Geschoss
  • Einbauküche
  • Kelleranteil
  • Badezimmer: Badewanne, Bad mit Fenster
  • Bodenbelag: Fliesen, Laminat, Teppich

Grundrisse

Grundrisse
1 / 1

Realisiere Dein Projekt

Bausubstanz und Energie

Energieausweis

  • Baujahr1900
  • EnergieträgerFernwärme
Immowelt logo

Preisdetails

Kaufpreis
79000 €
1.549,02 €/m²
Hausgeld
215 €
Provision für Käufer
3,57% vom Kaufpreis (inkl. MwSt.)
Geschätzte Gesamtkosten
88.535 €1
Kaufpreis
79.000 €
Notarkosten (1,5%)
1.185 €
Grunderwerbsteuer (6,5%)
5.135 €
Provision für Käufer (3,57%)
2.820 €
Grundbucheintrag (0,5%)
395 €
1Der angezeigte Wert ist eine automatisch berechnete Schätzung von immowelt.
2Bei den Angaben handelt es sich um ortsübliche Werte. Individuelle Kosten können abweichen.

Lage

address-icon
InnenstadtNeumünster (24534)
Der Anbieter hat die genaue Adresse nicht freigegeben
Die Wohnung befindet sich in zentraler Lage von Neumünster, in der Wilhelmstraße. Hier lebt man stadtnah und profitiert gleichzeitig von einer angenehmen Wohnumgebung mit kurzen Wegen zu allen wichtigen Anlaufstellen des täglichen Bedarfs.

Einkaufsmöglichkeiten, Bäckereien, Apotheken und verschiedene Restaurants befinden sich in unmittelbarer Nähe. Schulen und Kindergärten sind gut erreichbar und machen die Lage auch für Familien interessant. Zudem sorgt die Nähe zur Innenstadt für ein vielfältiges Angebot an Kultur, Gastronomie und Freizeit.

Für Erholung und Bewegung im Freien bieten sich die nahegelegenen Parks und Grünflächen an. Auch das Einfelder Seegebiet ist schnell zu erreichen und bietet vielfältige Freizeitmöglichkeiten wie Spazieren, Radfahren oder Wassersport.

Die Anbindung an den öffentlichen Nahverkehr ist hervorragend. Der Hauptbahnhof Neumünster liegt nur wenige Minuten entfernt und bietet gute Verbindungen in Richtung Hamburg, Kiel und Flensburg. Auch die Autobahn A7 ist schnell erreichbar, sodass eine optimale Verkehrsanbindung in alle Richtungen gewährleistet ist.

Weitere Informationen

Sonstiges Die im Exposé enthaltenen Informationen beruhen auf den vom Objekteigentümer übermittelten Unterlagen. Für die inhaltliche Richtigkeit, Vollständigkeit oder Aktualität dieser Angaben übernimmt BENKOSS Immobilien keine Haftung. Stichworte vermietbare Fläche: 51,00 m², Grundstücksfläche: 439,00 m², Anzahl der Schlafzimmer: 1, Anzahl der Badezimmer: 1, Bundesland: Schleswig-Holstein, 3 Etagen, Lage im Bau: rechts, Wohnungsnr.: 9

Weitere Services

Lust auf eine Besichtigung?
Eine Frage zur Immobilie?
Nachricht hinzufügen
Mit der Nutzung der oben angegebenen Telefonnummer oder durch Klicken auf „Kontaktieren“ akzeptierst Du die Allgemeinen Nutzungsbedingungen, denen Du jederzeit widersprechen kannst. Weitere Informationen zum Datenschutz

Über den Anbieter

Bahnhofstraße 5, 24594 Hohenwestedt
partner badge
Partnerschaft
Herr Benjamin KossDein Kontakt
Online-ID: 2nk3g5a
Referenznummer: 385006
BENKOSS Immobilien
BENKOSS Immobilien
Nachricht hinzufügen
Mit der Nutzung der oben angegebenen Telefonnummer oder durch Klicken auf „Kontaktieren“ akzeptierst Du die Allgemeinen Nutzungsbedingungen, denen Du jederzeit widersprechen kannst. Weitere Informationen zum Datenschutz
Wie zufrieden bist du mit dieser Seite (nicht mit der Immobilie selbst)?