Version: 8.26.0Navigation überspringen
461.000 €
131 m² Bürofläche
Immowelt logo

Büro zum Kauf - Erstbezug • provisionsfrei
461000 €
131 m² Bürofläche

Attraktive Neubaugewerbefläche zur Mitgestaltung | GE302

Sie möchten eine Gewerbefläche in Steinen kaufen? Warum nicht eine im Wiesental Carré? Als Käufer einer Immobilie haben Sie berechtigterweise viele Ansprüche. Wie sich diese vereinen lassen? Die Antwort darauf liefert das durchdachte Wohnprojekt auf dem Areal der alten Weberei.
Die Wohn- und Geschäftshäuser liegen direkt am Egertenweg und bieten im Erdgeschoss Raum für 4 Gewerbeflächen. Diese eignen sich zum Beispiel als Büroflächen, eine Physiopraxis, Dienstleistungen rund um die Gesundheit oder als Sanitätshaus. Zusätzliche Lagerfläche bietet jeweils ein Kellerraum im Untergeschoss. Des Weiteren sind für die Einheiten oberirdische Stellplätze vorgesehen.

•Geschoss: EG
•Flächen: 131 m² bis 153 m²
•Raumhöhe: ca. 3m bis 4m
•Ausbauzustand: veredelter Rohbau, Ausbaumöglichkeiten nach Absprache
•Keller/Lager: Kellerraum im UG
•KFZ-Stellplätze: Außenstellplätze (je 9.500 €)

•Moderne Architektur
•Hohe Bauqualität
•Beheizung der Einheiten sowie Warmwasserbereitung über Fernwärmeversorgung
•Ausbau der Gewerbeeinheiten im veredelten Rohbau weitere Ausbaumöglichkeiten nach Absprache
•Viele Nutzungsmöglichkeiten und eine flexible Raumaufteilung möglich
•Hohe Wahrnehmbarkeit
•Umfassende Infrastruktur im Umfeld

Merkmale

  • Bezug: 2024
  • Erdgeschoss
  • Personenaufzug
  • Außen-Stellplatz
  • Fenster: Kunststoff

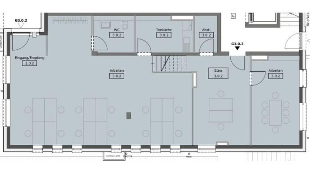
Grundrisse

Verschaffe dir einen genauen Überblick über die Raumaufteilung.selection_property_house-icon

Bausubstanz und Energie

Möchtest du Details zum Energieverbrauch?info_energy_calculation-icon
  • Baujahr2022
  • Zustand der ImmobilieNeubau, Erstbezug
  • EnergieträgerFernwärme
Immowelt logo

Preisdetails

Kaufpreis
461000 €
Preis pro Stellplatz
9500 €
Provision für Käufer
provisionsfrei
Geschätzte Gesamtkosten
461.000 €1
Kaufpreis
461.000 €
1Der angezeigte Wert ist eine automatisch berechnete Schätzung von immowelt.

Lage

address-icon
Egertenweg 9Steinen (79585)
Steinen liegt mit annähernd 10.000 Einwohnern eingebettet in das Wiesental. Die zentrale Lage macht den Standort besonders attraktiv: kurze Wege in die Innenstadt und an den Bahnhof. Innerhalb einer Viertelstunde zu Fuß sind das Schulzentrum Steinenmit Grund-, Haupt-, Werkreal- und Realschule sowie Kindergärten erreichbar. Im Stadtzentrum finden Sie Supermärkte sowie Einzelhandelsgeschäfte. Auch die medizinische Versorgung mit Haus- und Zahnärzten sowie Apotheken ist am Ort gewährleistet.

Ein weiteres Angebot an Ärzten, Apotheken, Arbeitsplätzen, Kindergärten, Schulen sowie zahlreiche Einkaufs- und Freizeitmöglichkeiten finden Sie in dem rund 15 Autominuten entfernten Lörrach. Das Zentralklinikum des Landkreises Lörrach ist nur ca. 1 km vom Projektstandort entfernt.

Der an die Wiesentalbahn angeschlossene Bahnhof Steinen ist gerade mal 600 Meter vom Wiesental Carré entfernt. Dort verkehrt die Regio-S-Bahn Basel mit den Linien S5 und S6. Darüber hinaus ergänzen Busse den öffentlichen Personennahverkehr. Mit dem Auto brauchen Sie über die Bundesstraße 317 etwa 15 Minuten nach Lörrach. In einer halben Stunde ist Basel erreicht. Bis zur A98 sind es knapp zehn Minuten Fahrtzeit, zu Flughafen Basel Mulhouse Freiburg ca. 25 Minuten. Nicht zuletzt ist die Umgebung durch eine Vielzahl an ausgebauten Radwegen gut zu erschließen.

Weitere Informationen

Zu den Gewerbeflächen https://www.neubau-steinen.de/gewerbeflaechen Besichtigungstermine Jetzt Gewerbefläche finden - Kommen Sie zum Beratungstermin!

Melden Sie sich für eine Besichtigung an bei unserem Vertriebspartner Mathias Walther unter +49 151 616 600 00 oder kontakt@walther-immobilien.de.

Nehmen Sie die Gelegenheit wahr, einen direkten Eindruck davon zu erhalten, wie es wäre, Ihr Business im Wiesental Carré bei Lörrach zu führen.

Wir freuen uns auf Sie!

Weitere Services

Lust auf eine Besichtigung?
Eine Frage zur Immobilie?
Nachricht hinzufügen
Mit der Nutzung der oben angegebenen Telefonnummer oder durch Klicken auf „Kontaktieren“ akzeptierst Du die Allgemeinen Nutzungsbedingungen, denen Du jederzeit widersprechen kannst. Weitere Informationen zum Datenschutz

Über den Anbieter

Solmsstr. 18, 60486 Frankfurt am Main
partner badge
Partnerschaft

Weitere Unterlagen

Online-ID: 2333APX4AKEM
Referenznummer: a087R00001IG6DIQA1
Wie zufrieden bist du mit dieser Seite (nicht mit der Immobilie selbst)?