Version: 8.25.1Navigation überspringen
179.000 €
1 Zimmer  •  22 m²
Immowelt logo

Wohnanlage zum Kauf • provisionsfrei • als Kapitalanlage geeignet
179000 €
8.136 €/m²
1 Zimmer  •  22 m²

Rollstuhl- / Altersgerechte Neubau-Single - Apartments in Hamburg - Rahlstedt

Architektonisch anspruchsvolle Apartments
altersgerecht, stilvoll und zukunftssicher
mit EIGENEM GARTEN, ROLLSTUHLgerecht oder im PENTHOUSE MIT EIGENER DACHTERRASSE
als Kapitalanlage oder zur Eigennutzung
für PENDLER, Singles, Renter, Studenten, Mitarbeiter als dauerhafter Hotelersatz mit Anmeldung, etc.
in Hamburg - Rahlstedt

MODERNES APARTMENT MIT ZUKUNFTSABSICHERUNG
Rollstuhl- und Altersgerechte, barrierearme 1-Zimmer-Wohnung
2-3 Art "französische Balkone" und Nutzung des Gemeinschaftsgartens
im 1. Obergeschoss (Aufzug vorhanden) (hier Wohnung 14)

ENERGIEEFFIZIENZ
Möchten Sie lieber in einer kompekteren, aber dafür fensterreichen, hochwertigen und energieeffizienten Neubauwohnung (geringe Nebenkosten) mit einem durchdachten Grundriss,
statt einer sanierungs- und modernisierungsbedürftigen Altbauwohnung wohnen?

BEQUEM
- Aufzug vorhanden
- stufenloser Zugang zum Haus
- schwellenfreier Zugang zum Aufzug mit einem Rollstuhl oder Fahrrad / E-Bike möglich

BESONDERHEITEN - DESIGN TRIFFT LICHT
- Zimmer mit zahlreichen bodentiefen Fensterflächen (2-3 Fenster)
- Fenster als eine Art "französischer Balkon", da sich die oberen Fensterelemente öffnen lassen und das untere Fensterelement als Geländer dient
- Bad mit bodentiefem Fenster
- elektrische Außenjalousien (Verdunkelung und Sonnenschutz mit Sicht nach Außen möglich)

- Fußbodenheizung

- modernes Badezimmer mit bodentiefem Fenster (Außenjalousien schützen die Privatsphäre), mit ebenerdiger Dusche, Wachtisch und wandhängendem WC,
(Waschmaschinenanschluss und Wäschetrocknungsmöglichkeit im ca. 6 m² großen Kellerraum mit elektrischer Abluft - über den Fahrstuhl komfortabel erreichbar)

- ca. 6 m² großer Kellerabstellraum zu jeder Wohnung
- mit Waschmaschinenanschluss und einer elektrischen Entlüftung zum Trocknen Ihrer Wäsche
- zusätzlicher Stauraum und stufenloser Fahrrad-Abstellplatz (Aufzug)

NEUBAU IM JAHR 2025-2026 vom Bauträger GFG Architektenhäuser in Ahrensburg
- Bauzeit- und Fertigstellunggarantie
- schlüsselfertige Übergabe
- 5 Jahre Gewährleistung
- Neubau als Standard KfW Effizienzhaus 55
- moderne Architektur mit hochwertigen Materialien
- Fassade in anthrazit oder grau bis hellgrau
- Kellergeschoss aus WU Beton (wasserundurchlässiger Beton)
- hochwärtige Sanitärausstattung
- 3fach Isolierverglasung, Fenserrahmen von außen in Anthrazit und von Innen weiß
- Be- und Entlüftungsanlage mit Wärmerückgewinnung
- Luft-Wärmepumpe
- Photovoltaikanlage mit Stromspeicher
- inkl. Malerarbeiten
- Fliesen aus der umfangreichen Ausstellung können Sie aussuchen (40,- Euro je m², 30,- Euro je m² den Kellerabstellraum)
- inkl. Erschließung
- Glasfaseranschluss
- Angebot ohne Bodenbelag im Zimmer, den Bodenbelag können Sie nach Ihren Vorstellungen gestalten
- inkl. Außenanlagen (außer Gartengestaltung)
(siehe auch Baubeschreibung)

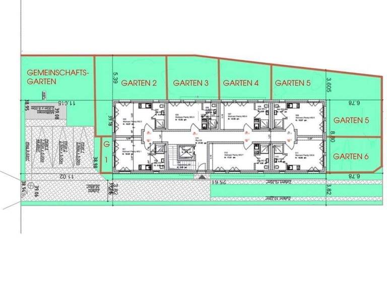
ERDGESCHOSS-APARTMENTS MIT EIGENEM GARTEN
- ca. 20 m²
- Wohn(t)raum in der Natur
- ab 179.000,- Euro

ROLLSTUHLGERECHTE APARTMENTS
- ca. 20 m²
- altersgerechte, barrierearme Wohnungen mit Rollstuhl-gerechtem Duschbad
- ab 179.000,- Euro

PENTHOUSE APARTMENTS MIT EIGENER DACHTERRASSE
- ca. 25 m²
- kompakter Luxus über den Dächern
- ab 225.000,- Euro

Die Bilder sind Visualisierungen der Neubau - Wohnungen / Apartments.


VERMÖGENSAUFBAU UND ALTERSVORSORGE / KAPITALANLAGE
Nutzen Sie die Vorteile einer Neubauimmobilie:
- 5 % Neubau-Abschreibung

Nettokaltmiete von 900,- Euro je Monat
Jahresrohertrag von 10.800,- Euro
Rendite von 6 % p. a.
Faktor 16,57fach bei der angebotenen Wohnung (179.000,- Euro Kaufpreis)

Ein Mieter ist bereit, einen Mietvertrag über 10 Jahre + 5 Jahre beiseitige Option + 5 Jahre beidseitige Option für die Wohnungen zu schließen.

IDEAL FÜR PENDLER
bis zu 1.000,- Euro der Miete für Pendler steuerlich absetzbar

www.karpa.com/neubau-apartments

Merkmale

  • frei ab sofort
  • 2 Geschosse
  • Kochnische, offene Küche
  • Personenaufzug
  • Kelleranteil
  • Terrasse

Grundrisse

Grundrisse
1 / 4

Realisiere Dein Projekt

Bausubstanz und Energie

Möchtest du Details zum Energieverbrauch?info_energy_calculation-icon
  • Baujahr2026
  • Zustand der ImmobilieNeubau, Massivhaus
  • HeizungsartFußbodenheizung
  • EnergieträgerSolar, Luft-/Wasser-Wärmepumpe
Immowelt logo

Preisdetails

Kaufpreis
179000 €
8.136,36 €/m²
Provision für Käufer
provisionsfrei
Geschätzte Gesamtkosten
192.425 €1
Kaufpreis
179.000 €
Notarkosten (1,5%)
2.685 €
Grunderwerbsteuer (5,5%)
9.845 €
Grundbucheintrag (0,5%)
895 €
1Der angezeigte Wert ist eine automatisch berechnete Schätzung von immowelt.
2Bei den Angaben handelt es sich um ortsübliche Werte. Individuelle Kosten können abweichen.

Lage

address-icon
RahlstedtHamburg (22143)
Der Anbieter hat die genaue Adresse nicht freigegeben
- Hamburg - Rahlstedt
- Naturschutzgebiet Tunneltahl (Fluss Wandse) auf der gegenüberliegenden Straßenseite
- Einkaufsmöglichkeiten für den täglichen Bedarf (Netto), Drogerie und Tankstelle wenige Meter entfernt
- weitere Einkaufsmöglichkeiten für den täglichen Bedarf (Aldi, Metro), Restaurants, Tankstelle, Drogerie, ein kleines Hotel in der Nähe

- Bushaltestelle in Grundstücksnähe, 3 Bushaltestellen zum Bahnhof Rahlstedt und zur Regionalbahn RB (zukünftig S4) (ca. 40 Minuten Fahrtzeit zum Hamburger Hauptbahnhof)
- an der Straße, die zu den Walddörfern (Sasel, Volksdorf, etc.) und nach Ahrensburg führt
- zahlreiche Neubauten in der nahen Umgebung

Weitere Informationen

Sonstiges Ausführlichere Informationen der Immobilie werden wir Ihnen in einem Exposé zusenden. Bei Interesse benötigen wir von Ihnen Ihre vollständigen Kontaktdaten sowie Ihre E-Mail-Adresse. Füllen Sie hierfür bitte das Kontaktformular des Portals aus. Eine telefonsiche Aufnahme Ihrer Daten wird nicht erfolgen. Fragen zu der Immobilie werden wir Ihnen gerne telefonisch beantworten.

Wichtiger Hinweis: Sollten Sie keine E-Mail von uns sichtbar erhalten, bitten wir Sie, im Spam- bzw. Junk-Mail Ordner Ihres E-Mail-Anbieters nachzusehen!

Das Abgebot ist courtagefrei.

Der Bauträger erhebt eine Projektierungspauschale in Höhe von 3,57 % vom Kaufpreis.
Die Projektierungspauschale dient zur Deckung der bereits erfolgten Vorplanungsleistungen durch den Bauträger. Diese wird bei Abschluss eines Kaufvertrages mit dem Bauträger fällig.
Die Pauschale geht nicht an den vermittelnden Maklerin.

Sämtliche Erwerbsnebenkosten wie 5,5 % Grunderwerbsteuer und ca. 1,5 % Notar- und Gerichtskosten sind allein vom Käufer zu entrichten.

Bei aller Sorgfalt können wir keine Gewähr dafür übernehmen, dass alle Angebotsangaben richtig bzw. vollständig sind und dass das Objekt im Augenblick des Zugangs dieser Offerte noch verfügbar ist. Alle Angaben beruhen auf Auskünften des Eigentümers bzw. Verkäufers. Irrtum bleibt ausdrücklich vorbehalten. Eine Haftung für die Richtigkeit und Vollständigkeit übernehmen wir nicht.

Für nähere Auskünfte sowie individuelle Besichtigungstermine stehen wir Ihnen gern zur Verfügung:

J. KARPA Immobilien
Johanna Karpa
T 040/234 919 73
M 0176/40 24 72 44
info@karpa.com
www.karpa.com Stichworte Sonstiges/Wohnen: seniorengerechtes Wohnen

Weitere Services

Lust auf eine Besichtigung?
Eine Frage zur Immobilie?
Nachricht hinzufügen
Mit der Nutzung der oben angegebenen Telefonnummer oder durch Klicken auf „Kontaktieren“ akzeptierst Du die Allgemeinen Nutzungsbedingungen, denen Du jederzeit widersprechen kannst. Weitere Informationen zum Datenschutz

Über den Anbieter

Meiendorfer Straße 77, 22145 Hamburg
partner badge
Partnerschaft
Frau Johanna Karpa
Frau Johanna KarpaDein Kontakt
Online-ID: 256LN2KX8Y3M
Referenznummer: 1331 (1/1331)
J. KARPA Immobilien , Inh. Johanna Karpa
title
J. KARPA Immobilien , Inh. Johanna Karpa
Bewertung: 5 von 5 Sternen
Nachricht hinzufügen
Mit der Nutzung der oben angegebenen Telefonnummer oder durch Klicken auf „Kontaktieren“ akzeptierst Du die Allgemeinen Nutzungsbedingungen, denen Du jederzeit widersprechen kannst. Weitere Informationen zum Datenschutz
Wie zufrieden bist du mit dieser Seite (nicht mit der Immobilie selbst)?