Version: 8.24.0Navigation überspringen
749.000 €
8,5 Zimmer  •  126 m²  •  117 m² Grundstück
Immowelt logo

Einfamilienhaus zum Kauf
749000 €
5.944 €/m²
8,5 Zimmer  •  126 m²  •  117 m² Grundstück

Ihre Chance: Bezugsbereites freistehendes Einfamilienhaus!

Dieses charmante Einfamilienhaus wurde ca. 1903 in zentraler Lage in Wangen erbaut und ist wirklich etwas Besonderes. Umfassende Renovierungsarbeiten fanden in den Jahren 2015/2016 statt, wodurch sich das Haus auch heute noch modern und ansprechend präsentiert. Hier können Sie tatsächlich direkt einziehen und ein einzigartiges Wohngefühl genießen.

Merkmale

  • Bezug: sofort frei
  • 117 m² Grundstück
  • Keller
Das Haus wurde umfassend renoviert und aufwendig in Stand gesetzt, ohne dabei den ansprechenden Charakter des ursprünglichen Altbaus zu verlieren. So sind beispielsweise Bäder und Küche modern gestaltet und mit zeitlosem Natursteinboden ausgestattet. Da die Eigentümer die Immobilie für sich selbst zur Nutzung hergerichtet haben, wurde bei allen Maßnahmen auf hohe Qualität geachtet. Das Gebäude ist komplett unterkellert und liefert dort zusätzlich ca. 40 m² Nutzfläche. Unter dem Dach befindet sich weiterer Raum mit etwa 20 m² Bodenfläche.
Eine umfassende Aufstellung aller wesentlichen erfolgten Maßnahmen können Sie dem Downloadbereich des vollständigen Exposé entnehmen.

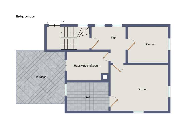
Grundrisse

Grundrisse
1 / 3

Realisiere Dein Projekt

Bausubstanz und Energie

Energieausweis

H
  • Baujahr1903
  • Zustand der ImmobilieGepflegt
  • HeizungsartZentralheizung
  • EnergieträgerGas
Immowelt logo

Preisdetails

Kaufpreis
749000 €
5.944,44 €/m²
Provision für Käufer
3,57 % inkl. MwSt.
Geschätzte Gesamtkosten
828.169 €1
Kaufpreis
749.000 €
Notarkosten (1,5%)
11.235 €
Grunderwerbsteuer (5%)
37.450 €
Provision für Käufer (3,57%)
26.739 €
Grundbucheintrag (0,5%)
3.745 €
1Der angezeigte Wert ist eine automatisch berechnete Schätzung von immowelt.
2Bei den Angaben handelt es sich um ortsübliche Werte. Individuelle Kosten können abweichen.

Lage

address-icon
WangenStuttgart (70327)
Der Anbieter hat die genaue Adresse nicht freigegeben
Das Haus befindet sich zentral und doch ruhig in Stuttgart-Wangen. Hier profitieren Sie von sehr guter Infrastruktur mit Einkaufsmöglichkeiten, Bildungseinrichtungen, medizinischer Versorgung, Gastronomie und Freizeitangeboten, die allesamt fußläufig oder mit dem Fahrrad gut erreichbar sind. Sehr gute Anbindung an ÖPNV über Bus und Stadtbahn, mit dem PKW schnelle Anbindung an B10/B14 und damit in die Stuttgarter Innenstadt sowie nach Esslingen.

Weitere Informationen

Sonstiges Haben wir Ihr Interesse geweckt? Dann lassen Sie sich jetzt das ausführliche Webexposé mit weiteren Unterlagen/Objektinformationen und Bildern zuschicken. Falls Sie nach Einsicht der Unterlagen einen Besichtigungswunsch haben, freuen wir uns über erneute Kontaktaufnahme über das Kontaktformular im Exposé, per Mail, oder telefonisch.

Alle Angaben basieren auf Informationen des Auftraggebers, für Vollständigkeit und Richtigkeit wird keine Haftung übernommen. Stichworte Bundesland: Baden-Württemberg

Weitere Services

Lust auf eine Besichtigung?
Eine Frage zur Immobilie?
Nachricht hinzufügen
Mit der Nutzung der oben angegebenen Telefonnummer oder durch Klicken auf „Kontaktieren“ akzeptierst Du die Allgemeinen Nutzungsbedingungen, denen Du jederzeit widersprechen kannst. Weitere Informationen zum Datenschutz

Über den Anbieter

Heilbronner Straße 28, 70191 Stuttgart
partner badge
10 Jahre Partnerschaft
Herr David Peti
Herr David PetiDein Kontakt
Online-ID: 2j4ds5x
Referenznummer: S-108459
BW-Bank Immobilienvermittlung
title
BW-Bank Immobilienvermittlung
Bewertung: 4,3 von 5 Sternen
Nachricht hinzufügen
Mit der Nutzung der oben angegebenen Telefonnummer oder durch Klicken auf „Kontaktieren“ akzeptierst Du die Allgemeinen Nutzungsbedingungen, denen Du jederzeit widersprechen kannst. Weitere Informationen zum Datenschutz
Wie zufrieden bist du mit dieser Seite (nicht mit der Immobilie selbst)?