730 m² Lagerhalle in Gewerbegebiet am Stadtrand von Döbeln
Merkmale
Bodenbelag: Estrich
Die kalte Lagerhalle zeichnet sich durch ihre großzügige Größe und praktische Ausstattung aus. Mit drei hohen Toren ermöglicht sie die mühelose Einfahrt von großen LKW-Aufliegern, was eine reibungslose Be- und Entladung gewährleistet. Die Hallenhöhe bietet ausreichend Platz für die Lagerung von Gütern verschiedenster Größen und Höhen. Die Halle verfügt über einen eigenen Stromverteiler mit einem separaten Stromzähler. Diese unabhängige Stromversorgung ermöglicht eine flexible Nutzung und erleichtert die Abrechnung entsprechend dem individuellen Verbrauch.
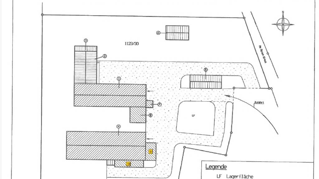
Die Halle ist auf dem Lageplan mit der Nummer 4 bezeichnet. Die Innenraumhöhe beträgt ca. 6m. Die Tore haben jeweils eine Höhe von 4,20 m und eine Breite von 4,20 m, somit ist auch hier eine Zufahrt für LKW-Auflieger ohne Probleme gewährleistet.
Nutzen Sie diese Gelegenheit und bringen Sie Ihr Lager- und Logistikgeschäft auf das nächste Level.
Für weitere Informationen oder eine Besichtigung kontaktieren Sie uns gerne.
Grundrisse
Verschaffe dir einen genauen Überblick über die Raumaufteilung.
Realisiere Dein Projekt
Bausubstanz und Energie
Möchtest du Details zum Energieverbrauch?
Mietkosten
Nettomiete zzgl. Nebenkosten
2,19 €/m²
1.599 €
Zusätzliche Kosten
Heizkosten
Provision für Mieter
provisionsfrei
Kaution
3198 €3.198 €
Weitere Preisinformationen
Nettokaltmiete: 1.599,00 EUR
Lage
Oschatzer Str. 11a, Döbeln (04720)
Willkommen in Döbeln, wo sich eine herausragende Gelegenheit für Ihr Lager- und Logistikgeschäft bietet. Diese geräumige Lagerhalle, eingebettet in ein sicheres Gewerbeobjekt am Stadtrand, bietet eine erstklassige Lage nur wenige Minuten von der Autobahn A14 entfernt. Die Lagerhalle befindet sich in einem eingezäunten Gewerbegebiet am ruhigen Stadtrand von Döbeln. Dank der Nähe zur Autobahn A14 ist eine reibungslose Anbindung an nationale und internationale Verkehrswege gewährleistet. Diese strategische Lage erleichtert den Transport von Waren und Gütern und bietet gleichzeitig die Möglichkeit zur effizienten Verteilung.
Weitere Informationen
Stichworte
Lagerfläche: 730,00 m², Nutzfläche: 730,00 m², Gesamtfläche: 730,00 m²