Neuer Glanz am Löwentor - LEO Business Campus Stuttgart
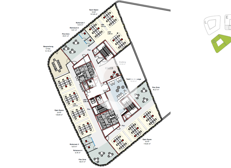
Drei hochmoderne Bürogebäude bilden den LEO Business Campus Stuttgart. Flexibel gestaltbare Büroflächen, ausgestattet mit hochwertigen Materialien sowie zukunftsweisender und intelligenter Technik, ermöglichen die Umsetzung von verschiedensten Raumkonzepten auf jeder Ebene. Die Kühlung der Räumlichkeiten erfolgt durch vorhandene Kühldecken und kann anhand einer Einzelraumsteuerung individuell oder bei Kombi Großraumbüros Zonenweise angepasst werden. Des Weiteren ermöglicht ein außenliegender, elektrischer Sonnenschutz die zusätzliche Abdunkelung der Büroflächen, wodurch ein angenehmes Raumklima zu jeder Jahreszeit gegeben ist Variable Tagungs- und Meetingräume praktische Teeküchen, eine lichte Raumhöhe in den Bürobereichen von 3.00 m sowie große Fensterelemente, welche einen einzigartigen Weitblick in die Weinberge oder den Rosensteinpark ermöglichen, runden das Angebot dieser besonderen Flächen ab. Dank der großzügigen Dachterrassen sowie der belebten Plaza, welche das Herzstück des Quartiers darstellt, sind attraktive Freiflächen mit hoher Aufenthaltsqualität garantiert. Der Einsatz umweltfreundlicher Baustoffe sowie ein intelligentes, ressourcenschonendes Energiekonzept gehören hier ebenso zum Konzept, wie der Campus Gedanke, der sich durch das gesamte Projekt zieht. Dies spiegelt sich auch in der angestrebten DGNB Gold Zertifizierung wider. Der Gebäudeteil E ist bereits an ein namhaftes Unternehmen vermietet
Der Anbieter hat die genaue Adresse nicht freigegeben
Der LEO Business Campus befindet sich an einem begehrten Standort nahe der Innenstadt und dem Pragsattel an der Kreuzung Löwentor-/Pragstraße in Stuttgart Nord. Durch diese zentrale Lage lassen sich alle wichtigen Ziele in der Region schnell und bequem per Auto oder mit dem öffentlichen Nahverkehr erreichen Die U Bahnhaltestelle "befindet sich unmittelbar gegenüber vom Gebäude und garantiert so einen besonders komfortablen Anschluss an den ÖPNV. Auch anhand der Nähe zur S -Bahnhaltestelle "erhält man den Vorteil den Stuttgarter Hauptbahnhof in nur circa 6 Minuten zu erreichen Namhafte Unternehmen wie Telekom, Mercedes Benz, BMW, Bosch und Mahle schätzen diese optimale Infrastruktur und Lagevorteile und haben sich hier niedergelassen. Am bekannten Löwentor gelegen, bietet der Standort des LEO Business Campus Stuttgart zudem eine vielfältige und abwechslungsreiche Umgebung. Der besondere Charme dieses Quartiers wird unter anderem durch die Wilhelma den Killesberg oder den Rosensteinpark mit seinen schönen Grünanlagen geprägt.