Version: 8.25.1Navigation überspringen
Wohnungsswap.de
563 €
4 Zimmer  •  79 m²  •  5. Geschoss

Wohnung zur Miete • Tauschwohnung
563 €
4 Zimmer  •  79 m²  •  5. Geschoss

Wohnungsswap - Platz der Vereinten Nationen

Wir lösen unsere WG auf und suchen deshalb zwei kleinere Wohnungen.

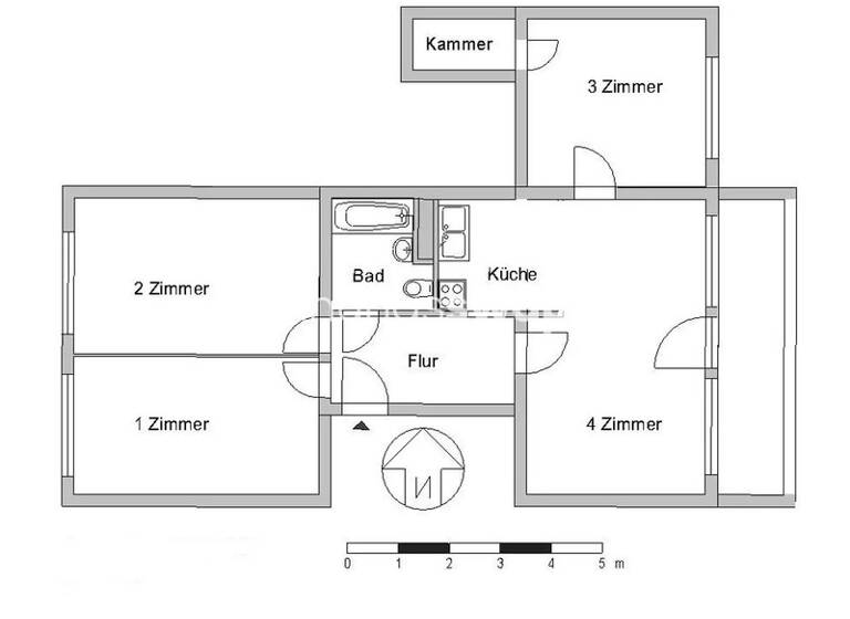
Unsere 79qm große Wohnung liegt 3 Minuten vom Volkspark Friedrichshain entfernt, hat einen Balkon, Badewanne und ein eigenes Kellerabteil. Die Küche und das Wohnzimmer sind räumlich nicht voneinander getrennt. (siehe Foto)

In unmittelbarer Nähe befinden sich die Tram Linien M4,M5,M6 & M8, Die Bus Linie 142, jeweils etwa 3min entfernt. Der U-Bahnhof Strausberger Platz befindet sich 10min entfernt und zum Alexanderplatz sind es 15 Gehminuten.

Wir sind ein tierfreier, Nichtraucherhaushalt. Tiere sind im Haus aber grundsätzlich erlaubt.

Ein Parkplatz kann angemietet werden. Der Fahrstuhl fährt in den 4. Stock, die letzte Etage in den 5. Stock muss zu Fuß genommen werden.


Wichtig
Diese Wohnung wird derzeit bei Wohnungsswap als Tauschobjekt angeboten, eignet sich also nur für diejenigen, die im Gegenzug eine eigene passende Wohnung für den Tausch haben.
Es ist kostenlos, ihr Konto zu registrieren und diese bestimme Wohnung oder Hunderte andere Wohnungen bei uns zu finden.

Merkmale

  • 5. Geschoss

Grundrisse

Grundrisse
1 / 1

Realisiere Dein Projekt

Bausubstanz und Energie

Möchtest du Details zum Energieverbrauch?info_energy_calculation-icon
MediumRectangleTop

Mietkosten

Kaltmiete
7,13 €/m²
563 €
Kaution
keine Angabe

Lage

address-icon
FriedrichshainBerlin (10249)
Der Anbieter hat die genaue Adresse nicht freigegeben

Weitere Services

Lust auf eine Besichtigung?
Eine Frage zur Immobilie?
Mit einer persönlichen Nachricht hast du bessere Chancen auf eine Antwort.
Mit der Nutzung der oben angegebenen Telefonnummer oder durch Klicken auf „Kontaktieren“ akzeptierst Du die Allgemeinen Nutzungsbedingungen, denen Du jederzeit widersprechen kannst. Weitere Informationen zum Datenschutz

Über den Anbieter

Beedstraße 54, 40468 Düsseldorf
Herr Tobias JonnarthDein Kontakt
Keine Telefonnummer hinterlegt
Keine Telefonnummer hinterlegt
Online-ID: 26XU3BFSW2VW
Referenznummer: 1502718
Wohnungsswap.de
Wohnungsswap.de
Mit einer persönlichen Nachricht hast du bessere Chancen auf eine Antwort.
Mit der Nutzung der oben angegebenen Telefonnummer oder durch Klicken auf „Kontaktieren“ akzeptierst Du die Allgemeinen Nutzungsbedingungen, denen Du jederzeit widersprechen kannst. Weitere Informationen zum Datenschutz
MediumRectangleTop
MediumRectangleBottom
MediumRectangleTop
Wie zufrieden bist du mit dieser Seite (nicht mit der Immobilie selbst)?