Version: 8.24.0Navigation überspringen
498.000 €
9 Zimmer  •  210 m²  •  275 m² Grundstück  •  frei ab sofort
Immowelt logo

Reihenendhaus zum Kauf
498000 €
2.371 €/m²
9 Zimmer  •  210 m²  •  275 m² Grundstück  •  frei ab sofort

Ein Reihenendhaus mit viel Platz in Magstadt

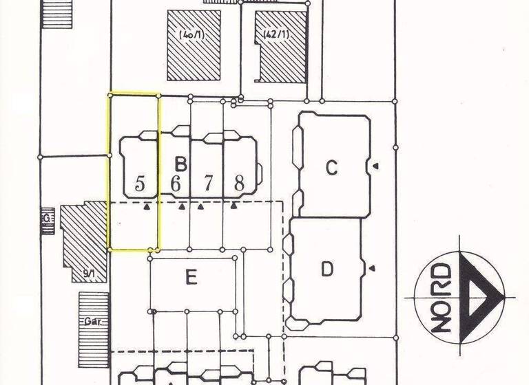
Objektbeschreibung Ein Reihenendhaus mit viel Platz über vier Stockwerke. Ohne Berücksichtigung der Dachschrägen beim ausgebauten Dachgeschoß ergibt sich eine Wohn- und Nutzfläche von ca. 210qm. Zum Haus gehören zwei Tiefgaragenstellplätze die gemauert sind und mit einem Tor versehen. Entgegen den Plänen gibt es im UG eine Ausgangstüre die über eine Treppe direkt zu den TG-Plätzen führt. Die beiden TG Plätze sind im Kaufpreis inbegriffen. Im OG wurde das große Kinderzimmer durch eine Wand getrennt und somit sind daraus zwei Zimmer geworden. Im EG befindet sich bei Küche und Wohnbereich ein Kachelofen. Die Einliegerwohnung im UG wurde jetzt erst renoviert. Machen Sie sich selber ein Bild und besichtigen Sie das Haus. Raumaufteilung Siehe Grundrisszeichnungen. Die Grundrisszeichnungen sind nicht Detailgerecht bzw. Maßstabsgetreu.

Merkmale

  • Bezug: frei
  • 4 Geschosse
  • 275 m² Grundstück
  • Einbauküche
  • 2 Stellplätze: Tiefgarage
  • Gäste-WC
  • Balkon
  • Terrasse

Grundrisse

Grundrisse
1 / 5

Realisiere Dein Projekt

Bausubstanz und Energie

Energieausweis

G
  • Baujahr1983
  • HeizungsartZentralheizung
  • EnergieträgerGas
Immowelt logo

Preisdetails

Kaufpreis
498000 €
2.371,43 €/m²
Provision für Käufer
Die vom Käufer zu zahlende Provision beträgt 1,95% aus dem Kaufpreis incl. Mwst.
Geschätzte Gesamtkosten
542.571 €1
Kaufpreis
498.000 €
Notarkosten (1,5%)
7.470 €
Grunderwerbsteuer (5%)
24.900 €
Provision für Käufer (1,95%)
9.711 €
Grundbucheintrag (0,5%)
2.490 €
1Der angezeigte Wert ist eine automatisch berechnete Schätzung von immowelt.
2Bei den Angaben handelt es sich um ortsübliche Werte. Individuelle Kosten können abweichen.

Lage

address-icon
Magstadt (71106)
Der Anbieter hat die genaue Adresse nicht freigegeben
Das Reihenendhaus befindet sich in Magstadt in der Nähe der Blumengalerie Weidenbach.

Weitere Informationen

Anfragen +Besichtigungstermine Bitte nur schriftliche Anfragen mit Angabe Ihrer vollständigen Anschrift, E-Mail Adresse und Telefonnummer. Dankeschön.

Aus Gründen der besseren Lesbarkeit wird generell auf die gleichzeitige Verwendung der Sprachformen männlich, weiblich und divers (m/w/d) verzichtet. Sämtliche Personenbezeichnungen gelten gleichermaßen für alle Geschlechter.

AGB und Widerrufsrecht Geschäftsbedingungen:
Alle meine Angaben sind nur für den Empfänger bestimmt. Der Empfänger schriftlicher, mündlicher oder fernmündlicher Angebote wird mir gegenüber nach Abschluss eines Kaufvertrages provisionspflichtig. Sollte ein von mir nachgewiesenes Objekt schon von anderer Seite bekannt sein, ist mir unter Angabe dieser Stelle umgehend schriftlich Mitteilung zu machen, andernfalls gilt der Nachweis durch meine Firma als anerkannt.

Das Exposé ist nur für Sie persönlich bestimmt und vertraulich zu behandeln, eine Weitergabe an Dritte ist an meine Zustimmung gebunden und unterbindet in keinem Falle meinen Provisionsanspruch bei zustande kommen eines Vertrages.

Hinweis für Verbraucher. Entsprechend dem Gesetz über die Verteilung der Maklerkosten bei Einfamilienhäusern und Eigentumswohnungen habe ich mit beiden Seiten (Käufer und Verkäufer) einen provisionspflichtigen Maklervertrag abgeschlossen. In diesem Fall bin ich auch für beide Seiten tätig.

Bei Abschluß eines Kaufvertrages beträgt die von Käufer und Verkäufer jeweils zu zahlende Provision 3% zzgl. der aktuell gültigen Mehrwertsteuer (zur Zeit 19%, somit insgesamt 3,57%), gerechnet aus dem Gesamtkaufpreis. Falls im Exposé eine andere Provisionsregelung angegeben ist gilt selbstverständlich diese abweichende Regelung. Die Provision ist bei Beurkundung des Kaufvertrages zur Zahlung fällig, bzw. für den Käufer erst nachdem der Nachweis über die vom Verkäufer bezahlte Provision erfolgt ist.

Alle Angaben beruhen auf vom Verkäufer zur Verfügung gestellten Unterlagen bzw. erteilten Auskünften, so dass eine Haftung für deren Richtigkeit bzw. Vollständigkeit nicht übernommen werden kann.


Widerrufsrecht:
Sie haben das Recht, binnen vierzehn Tagen ohne Angabe von Gründen diesen Vertrag zu widerrufen. Die Widerrufsfrist beträgt vierzehn Tage ab dem Tag der Vertragsunterschrift bzw. dem zustande gekommenen Vertrag.
Um Ihr Widerrufsrecht auszuüben, müssen Sie mich bzw. meine Firma
mittels einer eindeutigen Erklärung (z.B. ein mit der Post versandter Brief, Telefax oder E-Mail) über Ihren Entschluss, diesen Vertrag zu widerrufen, informieren.
Den Widerruf richten Sie bitte an;
Firma
Andreas Hoss
Immobilien und Dienstleistungen e.K.
Weilderstädterstr. 52
71069 Sindelfingen
Per FAX; 07031/764476, Per E-Mail; info@immobilien-hoss.de
Zur Wahrung der Widerrufsfrist reicht es aus, dass Sie die Mitteilung über die Ausübung des Widerrufsrechts vor Ablauf der Widerrufsfrist absenden. Stichworte Sonstiges/Wohnen: Einliegerwohnung

Weitere Services

Lust auf eine Besichtigung?
Eine Frage zur Immobilie?
Nachricht hinzufügen
Mit der Nutzung der oben angegebenen Telefonnummer oder durch Klicken auf „Kontaktieren“ akzeptierst Du die Allgemeinen Nutzungsbedingungen, denen Du jederzeit widersprechen kannst. Weitere Informationen zum Datenschutz

Über den Anbieter

Weilderstädter Str. 52, 71069 Sindelfingen
partner badge
Diamond Partner
Herr Andreas HossDein Kontakt
Online-ID: 2nuld5b
Referenznummer: RUWS114-2
Andreas Hoss Immobilien und Dienstleistungen e.K.
Andreas Hoss Immobilien und Dienstleistungen e.K.
Nachricht hinzufügen
Mit der Nutzung der oben angegebenen Telefonnummer oder durch Klicken auf „Kontaktieren“ akzeptierst Du die Allgemeinen Nutzungsbedingungen, denen Du jederzeit widersprechen kannst. Weitere Informationen zum Datenschutz
Wie zufrieden bist du mit dieser Seite (nicht mit der Immobilie selbst)?