Haus zum Kauf • als Kapitalanlage geeignetPreis auf Anfrage758,6 m² • 1.172 m² Grundstück
Preis auf Anfrage
758,6 m² • 1.172 m² Grundstück
Sichere Kapitalanlage in der Landeshauptstadt Kiel! Neubau mit einem langfristigen & indexierten Mietvertrag
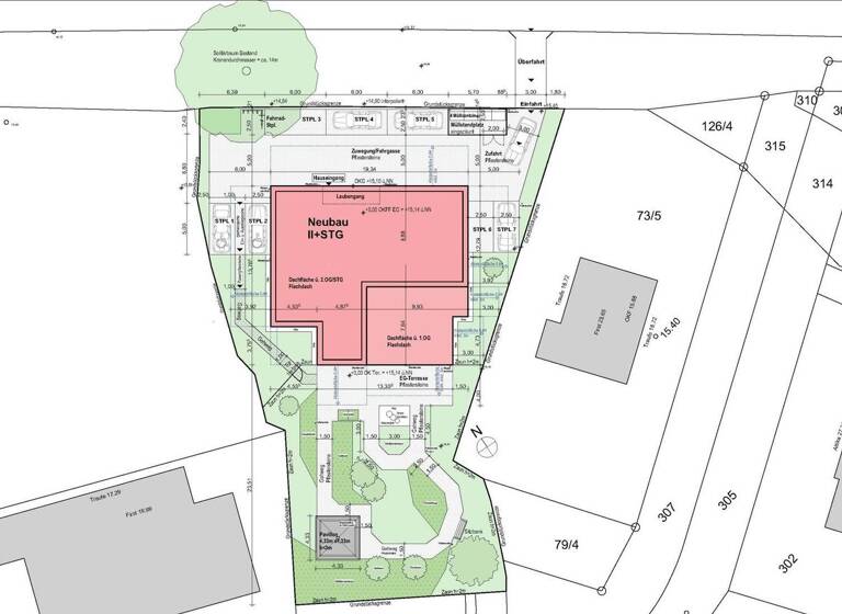
Mit dem geplanten Neubau soll das Unterkunftsangebot der Deutschen Fachpflege erweitert werden. Es entsteht ein neues zuhause für 12 Menschen, die an die Intensivpflege angewiesen sind. Der geplante Neubau befindet sich in dem Kieler
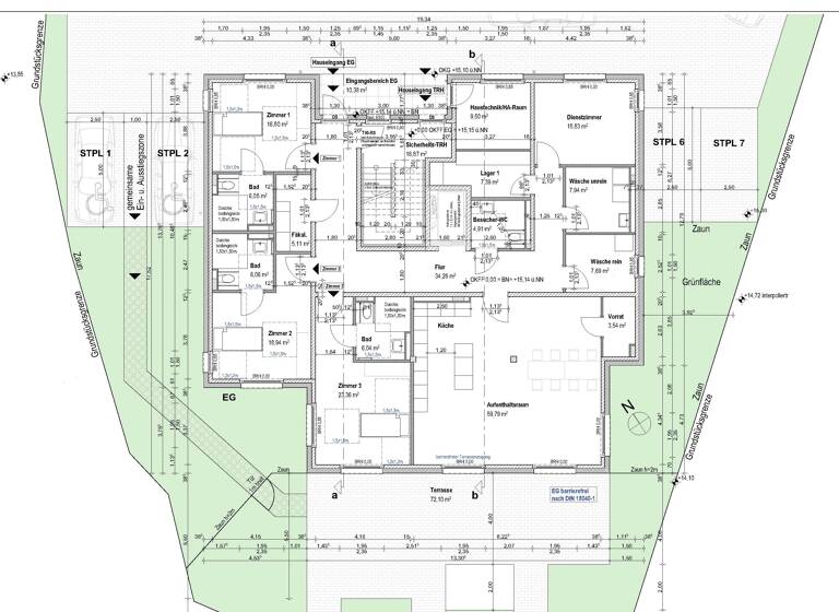
Stadtteil Suchsdorf und ist nur 10 Fahrminuten vom Stadtzentrum entfernt. Das Grundstück hat eine Gesamtfläche von ca. 1.172 m². Das Objekt wird nach DIN 18040-1 rollstuhlgerecht erbaut und bietet auf ca. 758,55 m² Mietfläche, verteilt auf zwei Vollgeschosse mit Staffel, Platz für 12 Bewohner und Mitarbeiter des Pflegedienstes.
Im Erdgeschoss befinden sich drei Bewohnerzimmer mit Duschbad, ein Aufenthaltsraum inkl. Küche für die Gemeinschaft, Räumlichkeiten für Mitarbeiter. Vom Aufenthaltsraum gelangt man auf die großzügige Terrasse und in den angrenzendem, schön angelegten Garten.
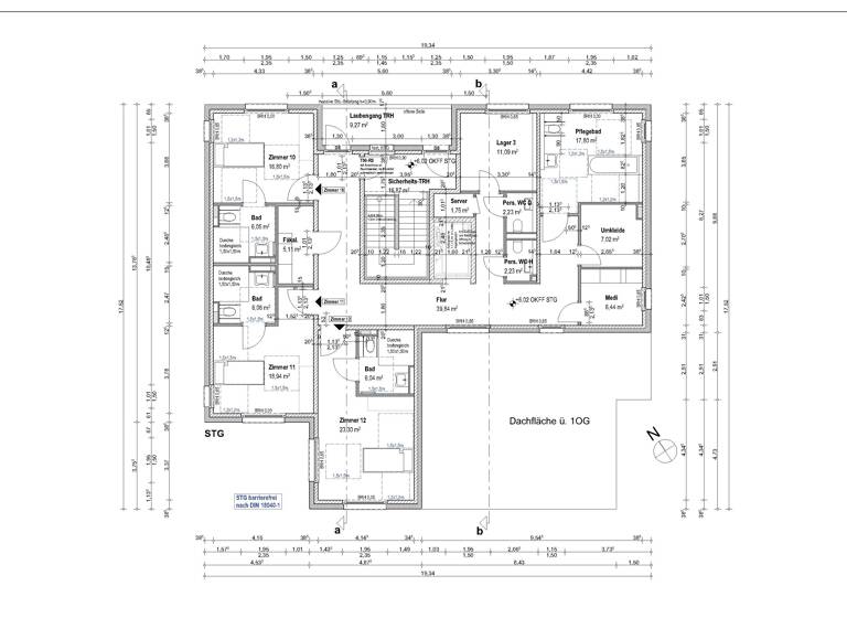
Im 1. Obergeschoss befinden sich sechs weitere Bewohnerzimmer mit Duschbad sowie die zugehörigen Nebenflächen wie z.B. der Medikamentenraum. Im Staffelgeschoss sind letzten drei Bewohnerzimmer mit Duschbad und unter Anderem ein Pflegebad untergebracht.
Mit nur geringem Aufwand ließen sich, im Hinblick auf eine mögliche Drittverwertbarkeit, hier 18 Ein-Zimmer Apartments realisieren.
Für die Menschen echte Lebensqualität schaffen
Stadtteil Suchsdorf und ist nur 10 Fahrminuten vom Stadtzentrum entfernt. Das Grundstück hat eine Gesamtfläche von ca. 1.172 m². Das Objekt wird nach DIN 18040-1 rollstuhlgerecht erbaut und bietet auf ca. 758,55 m² Mietfläche, verteilt auf zwei Vollgeschosse mit Staffel, Platz für 12 Bewohner und Mitarbeiter des Pflegedienstes.
Im Erdgeschoss befinden sich drei Bewohnerzimmer mit Duschbad, ein Aufenthaltsraum inkl. Küche für die Gemeinschaft, Räumlichkeiten für Mitarbeiter. Vom Aufenthaltsraum gelangt man auf die großzügige Terrasse und in den angrenzendem, schön angelegten Garten.
Im 1. Obergeschoss befinden sich sechs weitere Bewohnerzimmer mit Duschbad sowie die zugehörigen Nebenflächen wie z.B. der Medikamentenraum. Im Staffelgeschoss sind letzten drei Bewohnerzimmer mit Duschbad und unter Anderem ein Pflegebad untergebracht.
Mit nur geringem Aufwand ließen sich, im Hinblick auf eine mögliche Drittverwertbarkeit, hier 18 Ein-Zimmer Apartments realisieren.
Für die Menschen echte Lebensqualität schaffen
Merkmale
- Bezug: 2025
- vermietet
- 3 Geschosse
- 1.172 m² Grundstück
- Einbauküche, Speisekammer
- Personenaufzug
- Kein Keller
- 7 Stellplätze: Außen-Stellplatz
Grundrisse
Grundrisse
1 / 4
Bausubstanz und Energie
Möchtest du Details zum Energieverbrauch?

- Baujahr2025
- Zustand der ImmobilieNeubau
- EnergieträgerLuft-/Wasser-Wärmepumpe
Preisdetails
Preis auf Anfrage
Provision für Käufer
auf Anfrage
Lage

Suchsdorf, Kiel (24107)
Der Anbieter hat die genaue Adresse nicht freigegeben
Kiel ist die Landeshauptstadt von Schleswig-Holstein, liegt an der Ostsee und ist der Endpunkt des Nord-Ostsee-Kanals, der als meistbefahrene künstliche Wasserstraße der Welt gilt. Nach wie vor gilt Kiel ein bedeutender Marinestützpunkt.
Die Stadt hat eine lange Geschichte und ist mit ihren ca. 247.717 Einwohnern heute eine der 30 größten Städte Deutschlands. Die Stadt erstreckt sich entlang der malerischen Kieler Förde, einer Bucht der Ostsee. Der markante Rathausturm und das Opernhaus Kiel sind bekannte Symbole der Stadt. Zudem ist die überregional bekannte Kieler Woche eine der größten Segelveranstaltungen der Welt.
Kiel verfügt über drei renommierte Hochschulen: die Christian-Albrechts-Universität, die Fachhochschule Kiel und die Muthesius Kunsthochschule. Kiel-Suchsdorf ist ein Stadtteil im Nordwesten von Kiel, etwa fünf bis zehn Kilometer vom Stadtzentrum entfernt. Er wurde 1958 in das Kieler Stadtgebiet eingemeindet und hat rund 9300 Einwohner. Der Stadtteil liegt südlich des Nord-Ostsee-Kanals und wird von der Kronshagen-Ottendorfer Au durchflossen. Er besteht aus mehreren Ortsteilen, wie Nienbrügge, Viedamm, Levensau und Schwartenbek.
Suchsdorf verfügt über eine Grundschule, mehrere Kindertagesstätten, einen Sportverein und eine Jugendkulturwerkstat. Der Bahnhof Suchsdorf liegt etwa 1,5 km vom Zentrum des Stadtteils entfernt und ist mit dem Bus oder zu Fuß erreichbar. Der Bahnhof Suchsdorf ist ein Regionalbahnhof, der von den Linien RB 72 (Kiel–Flensburg) und RB 73 (Kiel–Eckernförde) bedient wird. Die Fahrzeit zum Kieler Hauptbahnhof beträgt etwa 10 Minuten. Der nächste Flughafen ist der Helmut-Schmidt-Flughafen in Hamburg. Dieser liegt ca. 90 km entfernt und wir nach ca. 55 Autominuten erreicht.
Die Stadt hat eine lange Geschichte und ist mit ihren ca. 247.717 Einwohnern heute eine der 30 größten Städte Deutschlands. Die Stadt erstreckt sich entlang der malerischen Kieler Förde, einer Bucht der Ostsee. Der markante Rathausturm und das Opernhaus Kiel sind bekannte Symbole der Stadt. Zudem ist die überregional bekannte Kieler Woche eine der größten Segelveranstaltungen der Welt.
Kiel verfügt über drei renommierte Hochschulen: die Christian-Albrechts-Universität, die Fachhochschule Kiel und die Muthesius Kunsthochschule. Kiel-Suchsdorf ist ein Stadtteil im Nordwesten von Kiel, etwa fünf bis zehn Kilometer vom Stadtzentrum entfernt. Er wurde 1958 in das Kieler Stadtgebiet eingemeindet und hat rund 9300 Einwohner. Der Stadtteil liegt südlich des Nord-Ostsee-Kanals und wird von der Kronshagen-Ottendorfer Au durchflossen. Er besteht aus mehreren Ortsteilen, wie Nienbrügge, Viedamm, Levensau und Schwartenbek.
Suchsdorf verfügt über eine Grundschule, mehrere Kindertagesstätten, einen Sportverein und eine Jugendkulturwerkstat. Der Bahnhof Suchsdorf liegt etwa 1,5 km vom Zentrum des Stadtteils entfernt und ist mit dem Bus oder zu Fuß erreichbar. Der Bahnhof Suchsdorf ist ein Regionalbahnhof, der von den Linien RB 72 (Kiel–Flensburg) und RB 73 (Kiel–Eckernförde) bedient wird. Die Fahrzeit zum Kieler Hauptbahnhof beträgt etwa 10 Minuten. Der nächste Flughafen ist der Helmut-Schmidt-Flughafen in Hamburg. Dieser liegt ca. 90 km entfernt und wir nach ca. 55 Autominuten erreicht.
Weitere Informationen
Die Investition
Investition in eine ambulant betreute Wohngemeinschaft
- In ambulant betreute Wohngemeinschaften werden Menschen mit u.a. Beatmungsschwierigkeiten betreut.
- Da es sich um Wohngemeinschaften mit maximal 12 Bewohnern handelt, werden diese Einrichtungen nicht als Pflegeheime eingestuft.
- Hierbei handelt es sich um soziale Immobilien die durch staatliche Garantien den Betreiber und damit auch die Vermieter/Eigentümer u.a. vor Zahlungsausfällen der Pflegebedürftigen schützen.
- Die Eigentümer erhalten gesichert jeden Monat ihre vertraglich garantierte Miete vom Betreiber, auch bei vorübergehendem Leerstand einzelner Pflegeplätze.
- Der Betreiber ist verantwortlich für den Einzug der Mieten, Mieterhöhungen, Verwalten der Geldkonten, Erstellung der Jahresabrechnung, Rechnungskontrolle und den Erhalt des Immobilienwertes.
- Eigentümer von ambulant betreuten Wohngemeinschaften haben also einen wesentlich geringeren Aufwand als Eigentümer von vermieteten Eigentumswohnungen, denn der Betreiber kümmert sich um die Belegung und alle Aufgaben rund um das Gebäude. Die administrativen Aufgaben werden von der Pflegeheimverwaltung erledigt.
- Mit der Investition in Sozialimmobilien werden die dringend benötigten Pflegeplätze den Menschen mit intensivem Pflegebedarf zur Verfügung gestellt.
„Kaufe jetzt eine Pflegeimmobilie und sichere Dir für die nächsten Jahre stabile Miteinnahmen und Wertsteigerung!“
Der Mieter Die Deutsche Fachpflege mit über 12.500 Mitarbeiter*innen ist im Jahr 2019 durch den Zusammenschluss zwischen der Deutschen Fachpflegegruppe (DFG), der Bonitas Pflegegruppe und der Bundesweiten Intensivpflege Gruppe (BIP Gruppe) entstanden.
Mit über 380 Standorten und rund 80 Pflegediensten ist die Deutsche Fachpflege der größte Pflegeanbieter auf dem deutschen Markt. Durch sie wird das gesamte Spektrum der Pflege abgedeckt: die Alten-, Kranken-, Intensiv- und die Beatmungspflege. Dabei werden den Klient*innen die Versorgung in den eigenen vier Wänden, stationären Einrichtungen, Wohngemeinschaften oder der Tages- und Kurzzeitpflege angeboten.
Für den angebotenen Neubau ist ein Mietvertrag mit der Ihre Assistenz im Norden GmbH & Co. KG, welche eine 100%ige Tochtergesellschaft der Bonitas Holding GmbH ist, abgeschlossen worden.
Die Ihre Assistenz im Norden betreut als regionaler Spezialist die 12 zukünftigen Bewohner des Hauses. Sie sind intensivpflegebedürftige Menschen, größtenteils mit dauerhafter oder vorübergehender Beatmungspflicht. Jeder Bewohner verfügt über sein eigenes WG-Zimmer mit eigenem Bad, zusätzlich können sie alle Gemeinschaftsflächen wie Küche, Wohnbereich sowie Lager- und Nebenflächen nutzen. Die Pflege- und Betreuungsleistungen werden durch ca. 25 Mitarbeiter, davon 22 Frauen und 3 Männer, sichergestellt. In der stärksten Schicht (Frühschicht) werden max. 6 Mitarbeiter anwesend sein. Durch den Pflegedienst wird eine pflegerische Betreuung von 24 Stunden an 365 Tagen im Jahr gewährleistet.
Die Bonitas Holding und Ihre Tochtergesellschaften unterliegen den strengen Anforderungen des „Code of Conduct“ der Deutschen Fachpflege.
Link zum „Code of Conduct“: https://deutschefachpflege.de/wp-content/uploads/2025/02/Code-of-Conduct-DEUTSCHEFACHPFLEGE-v2.pdf
Das Bauunternehmen Die PLW Projekte GmbH ist ein erfolgreiches Generalunternehmen für Bauleistungen, spezialisiert auf Neubau, Sanierung und schlüsselfertige Projekte. Das Unternehmen übernimmt sämtliche Aufgaben von der Grundstücksbeschaffung bis zur Fertigstellung. Die PLW Projekte GmbH ist Teil der PLW-Gruppe, welche diverse Geschäftsbereiche abdeckt, darunter Fassadenbau, Rohbau und Handel. Das im Jahr 2000 in Hamburg gegründete Familienunternehmen legt seinen Fokus auf öffentliche und private Bauprojekte, inklusive eigener Projektentwicklung.
Leistungsspektrum:
- Fassadenbau, Sanierung, Rohbau, schlüsselfertige Bauausführung
- Bauplanung, Objektakquise, Projektrealisierung
- Spezialisierung auf energieeffiziente Sanierungen und Umbauten
Auszug aus dem Track Record:
- Neubau eines Mehrfamilienhauses mit 13 WE und TG in der Sierksdorfer Str. 65 in Neustadt in Holstein (Fertigstellung 2023)
- Neubau von 2 Mehrfamilienhäusern mit einem gemeinsamen KG mit 35 WE in der Kaiserstraße 40 / Wikingerstraße 5 in Kiel (Fertigstellung Herbst 2023)
- Neubau eines Mehrfamilienhauses mit 20 WE in Hamburg-Jenfeld (Fertigstellung Frühjahr 2024)
- Neubau eines Mehrfamilienhauses sowie von 2 Doppelhäusern in Malente (Fertigstellung Frühjahr 2024)
- Energetische Sanierung und Umbau des denkmalgeschützten Feddersen-Hofes in Eutin; Umbau und Sanierung von 3 Gebäuden; Entstehung von 4 neuen -Geschäftsräumen, 2 Hausmeisterwohnungen und 22 WE zur Vermietung; Umbau des bestehenden Bauernhauses zur Kindertagesstätte.
Energieausweis Energieausweis noch nicht vorhanden. Wird nach Festlegung des Ausführungsstandards erstellt. Stichworte Zustand: Erstbezug, gepflegt Versorgung: Eigene Stromversorgung
- In ambulant betreute Wohngemeinschaften werden Menschen mit u.a. Beatmungsschwierigkeiten betreut.
- Da es sich um Wohngemeinschaften mit maximal 12 Bewohnern handelt, werden diese Einrichtungen nicht als Pflegeheime eingestuft.
- Hierbei handelt es sich um soziale Immobilien die durch staatliche Garantien den Betreiber und damit auch die Vermieter/Eigentümer u.a. vor Zahlungsausfällen der Pflegebedürftigen schützen.
- Die Eigentümer erhalten gesichert jeden Monat ihre vertraglich garantierte Miete vom Betreiber, auch bei vorübergehendem Leerstand einzelner Pflegeplätze.
- Der Betreiber ist verantwortlich für den Einzug der Mieten, Mieterhöhungen, Verwalten der Geldkonten, Erstellung der Jahresabrechnung, Rechnungskontrolle und den Erhalt des Immobilienwertes.
- Eigentümer von ambulant betreuten Wohngemeinschaften haben also einen wesentlich geringeren Aufwand als Eigentümer von vermieteten Eigentumswohnungen, denn der Betreiber kümmert sich um die Belegung und alle Aufgaben rund um das Gebäude. Die administrativen Aufgaben werden von der Pflegeheimverwaltung erledigt.
- Mit der Investition in Sozialimmobilien werden die dringend benötigten Pflegeplätze den Menschen mit intensivem Pflegebedarf zur Verfügung gestellt.
„Kaufe jetzt eine Pflegeimmobilie und sichere Dir für die nächsten Jahre stabile Miteinnahmen und Wertsteigerung!“
Der Mieter Die Deutsche Fachpflege mit über 12.500 Mitarbeiter*innen ist im Jahr 2019 durch den Zusammenschluss zwischen der Deutschen Fachpflegegruppe (DFG), der Bonitas Pflegegruppe und der Bundesweiten Intensivpflege Gruppe (BIP Gruppe) entstanden.
Mit über 380 Standorten und rund 80 Pflegediensten ist die Deutsche Fachpflege der größte Pflegeanbieter auf dem deutschen Markt. Durch sie wird das gesamte Spektrum der Pflege abgedeckt: die Alten-, Kranken-, Intensiv- und die Beatmungspflege. Dabei werden den Klient*innen die Versorgung in den eigenen vier Wänden, stationären Einrichtungen, Wohngemeinschaften oder der Tages- und Kurzzeitpflege angeboten.
Für den angebotenen Neubau ist ein Mietvertrag mit der Ihre Assistenz im Norden GmbH & Co. KG, welche eine 100%ige Tochtergesellschaft der Bonitas Holding GmbH ist, abgeschlossen worden.
Die Ihre Assistenz im Norden betreut als regionaler Spezialist die 12 zukünftigen Bewohner des Hauses. Sie sind intensivpflegebedürftige Menschen, größtenteils mit dauerhafter oder vorübergehender Beatmungspflicht. Jeder Bewohner verfügt über sein eigenes WG-Zimmer mit eigenem Bad, zusätzlich können sie alle Gemeinschaftsflächen wie Küche, Wohnbereich sowie Lager- und Nebenflächen nutzen. Die Pflege- und Betreuungsleistungen werden durch ca. 25 Mitarbeiter, davon 22 Frauen und 3 Männer, sichergestellt. In der stärksten Schicht (Frühschicht) werden max. 6 Mitarbeiter anwesend sein. Durch den Pflegedienst wird eine pflegerische Betreuung von 24 Stunden an 365 Tagen im Jahr gewährleistet.
Die Bonitas Holding und Ihre Tochtergesellschaften unterliegen den strengen Anforderungen des „Code of Conduct“ der Deutschen Fachpflege.
Link zum „Code of Conduct“: https://deutschefachpflege.de/wp-content/uploads/2025/02/Code-of-Conduct-DEUTSCHEFACHPFLEGE-v2.pdf
Das Bauunternehmen Die PLW Projekte GmbH ist ein erfolgreiches Generalunternehmen für Bauleistungen, spezialisiert auf Neubau, Sanierung und schlüsselfertige Projekte. Das Unternehmen übernimmt sämtliche Aufgaben von der Grundstücksbeschaffung bis zur Fertigstellung. Die PLW Projekte GmbH ist Teil der PLW-Gruppe, welche diverse Geschäftsbereiche abdeckt, darunter Fassadenbau, Rohbau und Handel. Das im Jahr 2000 in Hamburg gegründete Familienunternehmen legt seinen Fokus auf öffentliche und private Bauprojekte, inklusive eigener Projektentwicklung.
Leistungsspektrum:
- Fassadenbau, Sanierung, Rohbau, schlüsselfertige Bauausführung
- Bauplanung, Objektakquise, Projektrealisierung
- Spezialisierung auf energieeffiziente Sanierungen und Umbauten
Auszug aus dem Track Record:
- Neubau eines Mehrfamilienhauses mit 13 WE und TG in der Sierksdorfer Str. 65 in Neustadt in Holstein (Fertigstellung 2023)
- Neubau von 2 Mehrfamilienhäusern mit einem gemeinsamen KG mit 35 WE in der Kaiserstraße 40 / Wikingerstraße 5 in Kiel (Fertigstellung Herbst 2023)
- Neubau eines Mehrfamilienhauses mit 20 WE in Hamburg-Jenfeld (Fertigstellung Frühjahr 2024)
- Neubau eines Mehrfamilienhauses sowie von 2 Doppelhäusern in Malente (Fertigstellung Frühjahr 2024)
- Energetische Sanierung und Umbau des denkmalgeschützten Feddersen-Hofes in Eutin; Umbau und Sanierung von 3 Gebäuden; Entstehung von 4 neuen -Geschäftsräumen, 2 Hausmeisterwohnungen und 22 WE zur Vermietung; Umbau des bestehenden Bauernhauses zur Kindertagesstätte.
Energieausweis Energieausweis noch nicht vorhanden. Wird nach Festlegung des Ausführungsstandards erstellt. Stichworte Zustand: Erstbezug, gepflegt Versorgung: Eigene Stromversorgung
Weitere Services
Lust auf eine Besichtigung?
Eine Frage zur Immobilie?
Über den Anbieter
Rahlstedter Bahnhofstraße 17, 22143 Hamburg
Partnerschaft
Frau Nina KluehnDein Kontakt
Online-ID: 25F98NPHWTVA
Referenznummer: JKI-001-NK
Wie zufrieden bist du mit dieser Seite (nicht mit der Immobilie selbst)?


