Version: 8.24.0Navigation überspringen
450.000 €
1.068 m² Grundstück
Immowelt logo

Grundstück zum Kauf
450000 €
421 €/m²
1.068 m² Grundstück

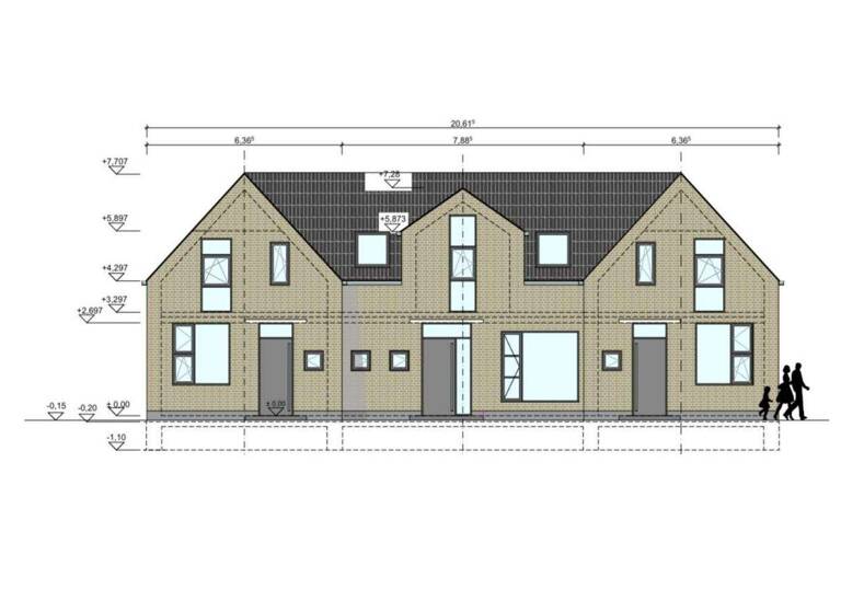
Genehmigtes Neubauprojekt in zentraler Lage von Gettorf

Für Kapitalanleger / Investoren
Dieses baurechtlich genehmigte Bauvorhaben bietet Investoren eine hervorragende Gelegenheit, in einen gefragten Wohnstandort im Kreis Rendsburg-Eckernförde zu investieren. Der genehmigte Baubeginn ab dem 01.05.2027 ermöglicht eine verlässliche Projekt- und Finanzierungsplanung ohne Genehmigungsrisiko.

Die Kombination aus:
zentraler, fußläufiger Lage
moderner, energieeffizienter Bauweise
attraktivem Grundstücksanteil je Einheit
hoher infrastruktureller Dichte
spricht eine breite Mieterzielgruppe an - von Familien bis zu Berufspendlern in Richtung Kiel und Eckernförde.

Gettorf übernimmt als Versorgungszentrum der Region Dänischer Wohld eine wichtige Funktion für das Umland. Die stabile Nachfrage nach modernem Wohnraum in gut angebundener Lage bietet nachhaltiges Wertsteigerungspotenzial.

Für Eigennutzer / Familien
Modern wohnen in ruhiger Bestlage von Gettorf
Hier entsteht ein Zuhause mit Zukunft: sonnige Grundstücksanteile, moderne Architektur und ein TOP-aktueller Energiestandard sorgen für Wohnkomfort und langfristige Sicherheit.

Die Lage ist ideal für Familien:
Kindergarten und Schulen nur wenige Minuten entfernt
Einkaufsmöglichkeiten und Ärzte fußläufig erreichbar
Bahnhof mit schneller Verbindung nach Kiel oder Eckernförde in ca. 10 Minuten zu Fuß
Gettorf bietet mit rund 7.500 Einwohnern eine perfekte Mischung aus Ruhe, Gemeinschaft und guter Infrastruktur. Freizeitangebote, Vereine und der beliebte Tierpark Gettorf machen den Ort besonders lebenswert.
Einziehen, wohlfühlen, ankommen - und das in einer gewachsenen Gemeinde mit hoher Lebensqualität.

Für Bauträger / Projektentwickler
Baureifes Wohnprojekt in zentraler Lage von Gettorf
Zum Verkauf steht ein baurechtlich genehmigtes Bauvorhaben mit möglichem Baubeginn ab 01.05.2027 - ideale Voraussetzungen für eine zeitnahe Projektumsetzung ohne Planungsunsicherheiten.
Standortvorteile:
gewachsene Infrastruktur
starke regionale Einbindung zwischen Kiel und Eckernförde
gute Erreichbarkeit über die Bundesstraße 76
Bahnhof an der Strecke Kiel-Flensburg
Die Nachfrage nach energieeffizienten Neubauten in zentraler Lage ist in Gettorf stabil und marktgerecht positionierbar. Die Kombination aus ruhigem Wohnumfeld und fußläufiger Infrastruktur schafft eine breite Käuferzielgruppe.

Merkmale

  • Bezug: sofort
  • 1.068 m² Grundstück

Grundrisse

Grundrisse
1 / 4

Realisiere Dein Projekt

Bausubstanz und Energie

Der Anbieter hat keine Informationen zu Energieverbrauch oder Zustand der Immobilie bereit gestellt.
Immowelt logo

Preisdetails

Kaufpreis
450000 €
421,35 €/m²
Provision für Käufer
2,38 %
Geschätzte Gesamtkosten
460.710 €1
Kaufpreis
450.000 €
Provision für Käufer (2,38%)
10.710 €
1Der angezeigte Wert ist eine automatisch berechnete Schätzung von immowelt.
2Bei den Angaben handelt es sich um ortsübliche Werte. Individuelle Kosten können abweichen.

Lage

address-icon
Gettorf (24214)
Der Anbieter hat die genaue Adresse nicht freigegeben
Das Bauvorhaben befindet sich in reiner, gewachsener Wohnlage direkt im Ort Gettorf.

Die Umgebung ist geprägt von einer angenehmen Nachbarschaftsbebauung und bietet ein ruhiges, familienfreundliches Wohnumfeld.

Das Ortszentrum mit seinen vielfältigen Einkaufsmöglichkeiten, Ärzten, Schulen, Kindergärten sowie gastronomischen Angeboten ist bequem fußläufig erreichbar. Damit verbindet der Standort eine entspannte Wohnatmosphäre mit kurzen Wegen im Alltag.

Der öffentliche Nahverkehr befindet sich in unmittelbarer Nähe. Sowohl Busverbindungen als auch der Bahnhof mit Anbindung in Richtung Kiel und Eckernförde gewährleisten eine komfortable regionale Erreichbarkeit - ideal für Berufspendler und Familien gleichermaßen.

Weitere Informationen

Stichworte Lage im Ort

Weitere Services

Lust auf eine Besichtigung?
Eine Frage zur Immobilie?
Nachricht hinzufügen
Mit der Nutzung der oben angegebenen Telefonnummer oder durch Klicken auf „Kontaktieren“ akzeptierst Du die Allgemeinen Nutzungsbedingungen, denen Du jederzeit widersprechen kannst. Weitere Informationen zum Datenschutz

Über den Anbieter

Stadtweg 29, 24837 Schleswig
Frau Bente Hansen
Frau Bente HansenDein Kontakt

Weitere Unterlagen

Online-ID: 2nbdf5j
Referenznummer: 840#NIlqLv
BHS-Immobilien – Schleswig
title
BHS-Immobilien – Schleswig
Bewertung: 5 von 5 Sternen
Nachricht hinzufügen
Mit der Nutzung der oben angegebenen Telefonnummer oder durch Klicken auf „Kontaktieren“ akzeptierst Du die Allgemeinen Nutzungsbedingungen, denen Du jederzeit widersprechen kannst. Weitere Informationen zum Datenschutz
Wie zufrieden bist du mit dieser Seite (nicht mit der Immobilie selbst)?