Version: 8.25.1Navigation überspringen
12 €
581 m² Bürofläche
Immowelt logo

Bürofläche zur Miete • provisionsfrei
12 €
/m²
581 m² Bürofläche

Max-Planck 17

Es handelt sich um ein 4-geschossiges Büro- und Geschäftshaus mit Flachdach. Gebäudekonstruktion und Architektur sind modern gestaltet und entsprechen den üblichen Anforderungen für eine vergleichbare Büronutzung eines Großraumbüros mit Loftcharakter. Das 4-geschossige Bürogebäude verfügt über ein ausgebautes Untergeschoss, in dem sich weitere Büro- und auch Lager-/Archivflächen befinden.

Merkmale

  • Bezug: nach Vereinbarung
  • Erdgeschoss
  • Personenaufzug, Lastenaufzug
  • Bodenbelag: Laminat, Teppich
  • Außen-Stellplatz
- High-Speed-Verbindung/Glasfaserverkabelung; maximale Datenübertragung möglich
- Die Büroflächen verfügen über ein kompaktes jedoch flexibles Flächenlayout für Großraum- und Gemeinschaftsbüros mit einer hohen Flächeneffizienz
- Die Büros sind mit Teppichböden oder Laminat und Bodentanks ausgestattet
- Das Gebäude verfügt über einen Personenaufzug und einen Lastenaufzug
- Darüber hinaus stehen bis zu 162 Stellplätze zur Verfügung

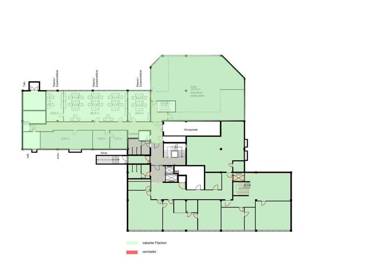
Grundrisse

Grundrisse
1 / 6

Realisiere Dein Projekt

Bausubstanz und Energie

Möchtest du Details zum Energieverbrauch?info_energy_calculation-icon
  • Baujahr1987
  • HeizungsartZentralheizung
Immowelt logo

Mietkosten

Monatliche Miete
12 €/m²
Zusätzliche Kosten
Miete pro Stellplatz
60 €
Provision für Mieter
provisionsfrei
Kaution
keine Angabe
Weitere Preisinformationen
1 Stellplatz, Miete: 60,00 EUR

Lage

address-icon
UnterfeldhausErkrath (40699)
Der Anbieter hat die genaue Adresse nicht freigegeben
Die Lage im Herzen des Gewerbegebietes Unterfeldhaus mit direkter Autobahnanbindung an das Autobahnkreuz Hilden (A 3 und A 46; 2 min entfernt) im Süden der Stadt Erkrath und die unmittelbare Nähe zur Landeshauptstadt Düsseldorf, mit ihrer optimalen geographischen Lage zwischen Hilden, Solingen, Wuppertal, Oberhausen, Mühlheim an der Ruhr und Essen, unterstreicht die verkehrsgünstige Integrierung im Kreis Mettmann. Erkrath verfügt neben seiner attraktiven Wohnlage in unmittelbarer Nähe zu Düsseldorf über 4 großzügige Gewerbegebiete mit einer Gesamtflächengröße von über 91 ha. In diesen verkehrsgünstigen Gewerbegebieten sind viele mittelständische Betriebe und Unternehmen vertreten, die in Großunternehmen und Konzerne eingebunden sind. Das unternehmerische Spektrum der Branchen in Erkrath ist groß. Produzierende Unternehmen des Maschinenbaus und der Elektrotechnik sowie global agierende Unternehmen im Bereich der Medizin-, IT- und Biotechnik, aber auch große Handelsunternehmen und eine breite Palette von Dienstleistern sind in Erkrath angesiedelt. Unternehmen, wie MENTOR GmbH & Co. Präzisions-Bauteile KG, THIEL & HOCHE GMBH & CO. KG, NTN-SNR, als erster japanischer Wälzlagerhersteller, die Seco Tools GmbH und die Grundfos GmbH, sind als leistungsstarke Unternehmen am Standort Erkrath vertreten. Eingebettet in diese Umgebung befindet sich das Bürogebäude mit seinen attraktiven Büroflächen.

Weitere Informationen

Stichworte Gesamtfläche: 581,00 m², Bundesland: Nordrhein-Westfalen

Weitere Services

Lust auf eine Besichtigung?
Eine Frage zur Immobilie?
Mit einer persönlichen Nachricht hast du bessere Chancen auf eine Antwort.
Mit der Nutzung der oben angegebenen Telefonnummer oder durch Klicken auf „Kontaktieren“ akzeptierst Du die Allgemeinen Nutzungsbedingungen, denen Du jederzeit widersprechen kannst. Weitere Informationen zum Datenschutz

Über den Anbieter

Hohe Straße 8-10, 40213 Düsseldorf
Online-ID: 25JLNZZ3PC8P
Referenznummer: 2382_008
corealis Commercial Real Estate GmbH
corealis Commercial Real Estate GmbH
Bewertung: 3,8 von 5 Sternen
Mit einer persönlichen Nachricht hast du bessere Chancen auf eine Antwort.
Mit der Nutzung der oben angegebenen Telefonnummer oder durch Klicken auf „Kontaktieren“ akzeptierst Du die Allgemeinen Nutzungsbedingungen, denen Du jederzeit widersprechen kannst. Weitere Informationen zum Datenschutz
Wie zufrieden bist du mit dieser Seite (nicht mit der Immobilie selbst)?