Version: 8.24.0Navigation überspringen
ohne-makler.net - Immobilien selbst vermarkten
724 €
3 Zimmer  •  69 m²  •  3. Geschoss  •  frei ab 15.03.2026

Wohnung zur Miete
724 €
3 Zimmer  •  69 m²  •  3. Geschoss  •  frei ab 15.03.2026

Nach Kernsanierung - 3-Zimmer-Dachgeschosswohnung mit Balkon in Magdeburg-Sudenburg

Objektbeschreibung

Zur Vermietung steht eine 3-Zimmer-Dachgeschosswohnung in einem gepflegten Mehrfamilienhaus im beliebten Magdeburger Stadtteil Sudenburg.

Die Wohnung verfügt über eine praktische Raumaufteilung mit drei gut nutzbaren Zimmern, einer separaten Küche, einem Badezimmer mit Dusche sowie einem Balkon mit Blick in den ruhigen Innenhof.

Durch die Dachgeschosslage sind die Räume angenehm hell. Die Wohnung eignet sich ideal für Paare, kleine Familien oder eine 2er-WG.

Ausstattung
- ca. 69 m² Wohnfläche
- 3 Zimmer
- Separate Küche
- Badezimmer mit Dusche
- Balkon zum Innenhof
- Vinylboden in Holzoptik
- Weiß gestrichene Wände
- Zentralheizung (Gas)
- Kellerabteil vorhanden

Energieausweis:
Verbrauchsausweis, 124 kWh/(m²·a), Effizienzklasse D

Objektzustand: Erstbezug nach Sanierung

Merkmale

  • frei ab 15.03.2026
  • 3. Geschoss
  • Einbauküche
  • Kelleranteil
  • Balkon
  • Bad mit Dusche
  • Bodenbelag: Fliesen, Kunststoff
Balkon, Keller, Duschbad, Einbauküche, Fliesen

Bemerkungen:
Die gesamte Wohnung ist erstklassig und mit hochwertigen Materialien ausgestattet. Es wurde besonderer Wert auf eine moderne, langlebige und stilvolle Ausführung gelegt.
- Hochwertige Bodenbeläge
- Modern gestaltete Wohnräume
- Zeitgemäße Ausstattung mit qualitativen Materialien
- Balkon zum ruhigen Innenhof

Kellerabteil vorhanden

Neue Einbauküche inklusive:
- Zum Einzug wird eine moderne Einbauküche neu installiert. Diese ist ausgestattet mit:
- Cerankochfeld
- Backofen
- Dunstabzugshaube
- Anschlussmöglichkeit für Waschmaschine
- Die Küche ist Bestandteil der Wohnung und wird zur Nutzung mitvermietet.

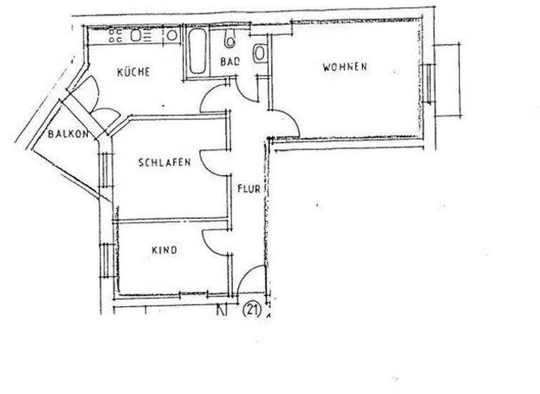
Grundrisse

Grundrisse
1 / 2

Realisiere Dein Projekt

Bausubstanz und Energie

Energieausweis

D
  • Baujahr1900
  • Zustand der Immobilierenoviert / saniert
  • HeizungsartZentralheizung
  • EnergieträgerGas
MediumRectangleTop

Mietkosten

Warmmiete
954 €
Kaltmiete
10,49 €/m²
724 €
Nebenkosten
85 €
Zusätzliche Kosten
Heizkosten
145 €
Kaution
1448 €
Weitere Preisinformationen
Nettokaltmiete: 724,00 EUR

Lage

address-icon
Leipziger Str.Magdeburg (39112)
Der Anbieter hat die genaue Adresse nicht freigegeben
Die Wohnung befindet sich in

Magdeburg - Stadtteil Sudenburg.

Sudenburg ist ein gewachsener, beliebter Wohnstandort mit sehr guter Infrastruktur:
- Einkaufsmöglichkeiten fußläufig erreichbar
- Straßenbahn- und Busanbindung in unmittelbarer Nähe
- Schulen und Kindergärten im Umfeld
- Innenstadt in wenigen Minuten erreichbar
Infrastruktur (im Umkreis von 5 km):
Apotheke, Lebensmittel-Discount, Allgemeinmediziner, Kindergarten, Grundschule, Hauptschule, Realschule, Gymnasium, Gesamtschule, Öffentliche Verkehrsmittel

Weitere Informationen

Sonstiges Heizungsart: Zentralheizung
Energieträger: Gas

Die Wohnung ist ab dem 15. März verfügbar.
Besichtigungen sind nach Vereinbarung möglich.

Bitte senden Sie bei Interesse eine kurze Vorstellung Ihrer Person (Anzahl der einziehenden Personen, Berufstätigkeit, gewünschter Einzugstermin).
Ein ruhiges Mietverhältnis wird gewünscht. Nichtraucher bevorzugt.

Die Vermietung erfolgt langfristig. Eine positive Schufa-Auskunft sowie geregeltes Einkommen werden vorausgesetzt.

Besichtigungstermine sind nach Absprache möglich.

Makleranfragen nicht erwünscht. Nach § 7 UWG sind unaufgeforderte Kontaktaufnahmen durch Makler ohne ausdrückliche Einwilligung des Empfängers verboten!

ohne-makler (OM) ist weder Anbieter noch Vermittler der Immobilie. OM betreibt eine Plattform für Immobilieneigentümer, die unter anderem die gleichzeitige Veröffentlichung einzelner Inserate auf mehreren Immobilienportalen ermöglicht. Die Inhalte dieser Inserate werden ausschließlich von Dritten verantwortet. Für die Richtigkeit, Vollständigkeit oder Rechtmäßigkeit der Angaben übernimmt OM keine Haftung. Hinweise auf mögliche Rechtsverstöße können jederzeit gemeldet werden und werden nach Prüfung umgehend bearbeitet. Stichworte Nutzfläche: 69,00 m², Anzahl der Schlafzimmer: 1, Anzahl der Badezimmer: 1, Anzahl Balkone: 1, Bundesland: Sachsen-Anhalt, 3 Etagen

Weitere Services

Lust auf eine Besichtigung?
Eine Frage zur Immobilie?
Nachricht hinzufügen
Mit der Nutzung der oben angegebenen Telefonnummer oder durch Klicken auf „Kontaktieren“ akzeptierst Du die Allgemeinen Nutzungsbedingungen, denen Du jederzeit widersprechen kannst. Weitere Informationen zum Datenschutz

Über den Anbieter

Humboldtstr. 25 A, 21509 Glinde
partner badge
Partnerschaft
Privat von E. ScholzDein Kontakt
Keine Telefonnummer hinterlegt
Keine Telefonnummer hinterlegt
Online-ID: 2n4a35n
Referenznummer: 426195
ohne-makler.net - Immobilien selbst vermarkten
ohne-makler.net - Immobilien selbst vermarkten
Nachricht hinzufügen
Mit der Nutzung der oben angegebenen Telefonnummer oder durch Klicken auf „Kontaktieren“ akzeptierst Du die Allgemeinen Nutzungsbedingungen, denen Du jederzeit widersprechen kannst. Weitere Informationen zum Datenschutz
MediumRectangleTop
MediumRectangleBottom
MediumRectangleTop
Wie zufrieden bist du mit dieser Seite (nicht mit der Immobilie selbst)?