Version: 8.25.1Navigation überspringen
Schwabenhaus München - Oliver Kurtz  Handelsvertretung für die Schwabenhaus GmbH
1.774.000 €
6 Zimmer  •  169 m²  •  610 m² Grundstück

Einfamilienhaus zum Kauf
1774000 €
10.497 €/m²
6 Zimmer  •  169 m²  •  610 m² Grundstück

Ihr Neubau in idyllischer Lage von Bad Wiessee

In einer etablierten, ruhigen Wohnlage von Bad Wiessee am Tegernsee entsteht dieses moderne und hochwertig konzipierte Einfamilienhaus, welches zeitgemäßen Wohnkomfort mit hoher Lebensqualität vereint.

Das angebotene Einfamilienhaus verfügt über rund 170 m² Wohnfläche, verteilt auf zwei Etagen, und bietet großzügigen Platz für Familien mit Anspruch an Raum und Funktionalität.

Ein besonderer Vorteil: Sowohl die Raumaufteilung als auch die Ausstattung können aktuell noch nach Ihren individuellen Vorstellungen gestaltet werden. Dadurch haben Sie die Möglichkeit, Ihr zukünftiges Zuhause aktiv mitzuplanen - von der Grundrissgestaltung bis hin zu den Ausstattungsdetails.

Die attraktive Lage verbindet ruhiges Wohnen mit einer sehr guten Infrastruktur: Einkaufsmöglichkeiten, Schulen, Kindergärten sowie der öffentliche Nahverkehr sind schnell erreichbar.

Dieses Neubauprojekt steht für modernes Wohnen, hohe Bauqualität und maximale Gestaltungsfreiheit - ideal für Familien, die Wert auf Individualität und Komfort legen.

Merkmale

  • 610 m² Grundstück
  • Gäste-WC
Kurze Bauzeiten, innovative Haustechnik, attraktive Architektur und hochwertige Manufaktur-Qualität bietet Ihnen das angebotene Schwabenhaus im "Blue-Edition" All-Inclusive-Paket:

- Bodenplatte inklusive Effizienzhaus 55 Perimeter-Dämmung unterhalb der Bodenplatte sowie stirnseitig
- Effizienzhaus 55 mit der Option zur Erweiterung auf Effizienzhaus 40 oder 40 Plus
- Klima-Komfort-Bauweise
- Zimmermannmäßiges Pfettendach
- Photovoltaik-Vorbereitung für die Ausführung einer Photovoltaik-Anlage
- Komplette Elektro-, Sanitär- und Heizungs-Installation inkl. Grundinstallation für das Schwabenhaus auf Schwabenhaus-Bodenplatte bzw. optional Keller
- Zukunftsweisende Elektro-Installation
- Elektrische Rollläden im gesamten Haus
- Doppel-Wärmepumpe Eco+ 3.0 für Heizen, Lüften, Kühlen, Luftreinigung und Warmwasser
- Hochwertige, mehrschichtige Holz-Haustür in vielfältigen Design-Lösungen, mit Sicherheitsschließzylinder, 5-fach- Sicherheits-Verriegelung und 3-Scheiben-Wärmeschutzverglasung
- Kunststoff-Fenster mit 3-Scheiben-Wärmeschutzverglasung
- Dachflächenfenster mit Kipp- und Schwingfunktion sowie elektrischen Rollläden
- Parkettfussboden EG + DG
- Massiv-Vollholz-Treppen
- optional Carport bzw. Garage
- Protect Versicherungs-Paket mit Wohngebäudeversicherung inkl. Elementarschutz, Haus- und Wohnungs-Schutzbrief, Bauleistungsversicherung und Bauherren-Haftpflichtversicherung sowie Job-Protect Versicherungs-Paket
- 10 sowie 30 Jahre Gewährleistung

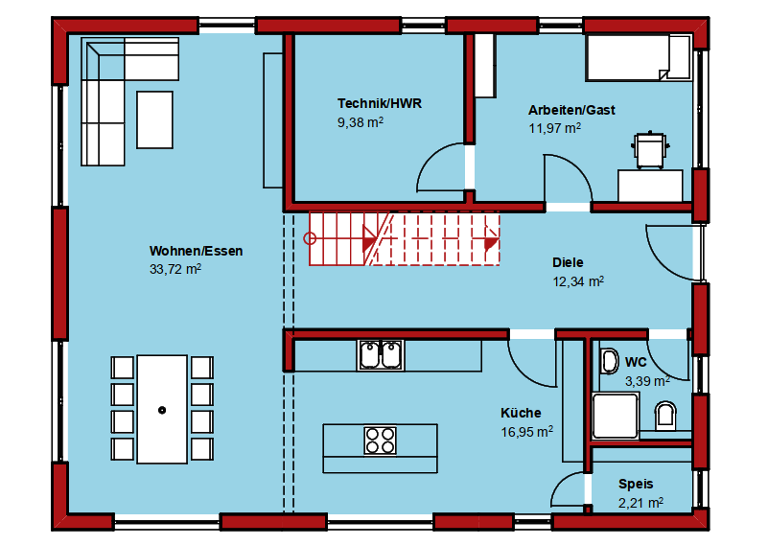
Grundrisse

Grundrisse
1 / 2

Realisiere Dein Projekt

Bausubstanz und Energie

Möchtest du Details zum Energieverbrauch?info_energy_calculation-icon
  • Zustand der ImmobilieNeubau, Projektiert
  • HeizungsartFußbodenheizung

Preisdetails

Kaufpreis
1774000 €
10.497,04 €/m²
Provision für Käufer
3,57 % inkl. MwSt auf den Grundstücksanteil inkl. MwSt.
Gilt nur für den Grundstücksanteil; Haus provisionsfrei. Grundstückspreis variabel, genaue Berechnung vor Maklervertragsabschluss.
Geschätzte Gesamtkosten
1.871.570 €1
Kaufpreis
1.774.000 €
Notarkosten (1,5%)
26.610 €
Grunderwerbsteuer (3,5%)
62.090 €
Grundbucheintrag (0,5%)
8.870 €
1Der angezeigte Wert ist eine automatisch berechnete Schätzung von immowelt.
2Bei den Angaben handelt es sich um ortsübliche Werte. Individuelle Kosten können abweichen.

Lage

address-icon
Bad Wiessee (83707)
Der Anbieter hat die genaue Adresse nicht freigegeben
Das Neubauprojekt befindet sich in Bad Wiessee, einer der gefragten Wohnlagen am westlichen Ufer des Tegernsees. Die Umgebung ist geprägt von einer ruhigen, gewachsenen Wohnbebauung mit überwiegend Einfamilienhäusern und kleinen Mehrfamilienhäusern und bietet ein angenehmes, naturnahes Wohnumfeld.

Bad Wiessee zeichnet sich durch seine hohe Lebensqualität, die Nähe zur Natur und sein exklusives, zugleich bodenständiges Ortsbild aus. Der Tegernsee, weitläufige Spazier- und Radwege sowie die umliegenden Berglandschaften sind in kurzer Zeit erreichbar und bieten ganzjährig vielfältige Freizeit- und Erholungsmöglichkeiten.

Einkaufsmöglichkeiten für den täglichen Bedarf, gastronomische Angebote, Ärzte sowie weitere infrastrukturelle Einrichtungen befinden sich im Ortsgebiet und sind gut erreichbar. Die Anbindung an die umliegenden Gemeinden sowie Richtung Miesbach und München ist sowohl mit dem Pkw als auch mit öffentlichen Verkehrsmitteln gegeben.

Insgesamt bietet die Lage eine gelungene Kombination aus Ruhe, Natur und guter Erreichbarkeit - ideal für ein hochwertiges Wohnprojekt oder ein dauerhaftes Zuhause in einer der attraktivsten Regionen Oberbayerns.

Weitere Informationen

Sonstiges Das Haus ist projektiert inkl. Grundstück. Das Grundstück wird in Kommission angeboten bzw. direkt von Dritten verkauft wie es steht und liegt.

Die Bauabwicklung kann kurzfristig nach Grundstückserwerb begonnen werden. Bilder zeigen möglicherweise Sonderausstattungen, die auf Wunsch gegen Preiskorrektur zusätzlich angeboten werden können.

Abbildungen können Extras enthalten.

Fragen Sie nach unserem kostenlosen Beratungs-Service und erhalten Sie in einem persönlichen Gespräch kostenlos alle wichtigen Informationen zu diesem Projekt, insbesondere: Lage und Bebauungsmöglichkeiten des Baugrundstücks, Baukosten-Kalkulation, Finanzierungs- u. Förderungs-Möglichkeiten, detaillierte Architektur- u. Grundrissplanung, etc.

Wir freuen uns, Sie ausführlich beraten zu dürfen!

Anbauteile, Carport, Garage und Keller können Extras sein, die als Sonderausstattung angeboten werden. Abbildungen, Grundrisse und Flächenangaben sind beispielhaft und können Extras zeigen. Flächenangaben nach DIN 277.

Profitieren Sie jetzt von der Schwabenhaus Online Beratung und verwirklichen Sie Ihr Traumhaus https://www.schwabenhaus.de/anmeldung-hausbau-beratung-online/ Stichworte Anzahl der Schlafzimmer: 4, Anzahl der Badezimmer: 2, Anzahl der separaten WCs: 1

Weitere Services

Lust auf eine Besichtigung?
Eine Frage zur Immobilie?
Nachricht hinzufügen
Mit der Nutzung der oben angegebenen Telefonnummer oder durch Klicken auf „Kontaktieren“ akzeptierst Du die Allgemeinen Nutzungsbedingungen, denen Du jederzeit widersprechen kannst. Weitere Informationen zum Datenschutz

Über den Anbieter

Senator-Gerauer-Str. 25, 85586 Poing-Grub
partner badge
Partnerschaft
Oliver KurtzDein Kontakt
Keine Telefonnummer hinterlegt
Keine Telefonnummer hinterlegt
Online-ID: 26HV4ULU9AN9
Referenznummer: SH-374605
Schwabenhaus München - Oliver Kurtz  Handelsvertretung für die Schwabenhaus GmbH
Schwabenhaus München - Oliver Kurtz Handelsvertretung für die Schwabenhaus GmbH
Nachricht hinzufügen
Mit der Nutzung der oben angegebenen Telefonnummer oder durch Klicken auf „Kontaktieren“ akzeptierst Du die Allgemeinen Nutzungsbedingungen, denen Du jederzeit widersprechen kannst. Weitere Informationen zum Datenschutz
Wie zufrieden bist du mit dieser Seite (nicht mit der Immobilie selbst)?