Version: 8.22.6Navigation überspringen
Utsch GmbH - Freie Handelsvertretung der Living Fertighaus GmbH
549.664 €
4 Zimmer  •  117 m²  •  339 m² Grundstück

Doppelhaushälfte zum Kauf
549664 €
4.698 €/m²
4 Zimmer  •  117 m²  •  339 m² Grundstück

LivingHaus: Ihr maßgeschneidertes Zuhause für Lebensfreude

Entdecke deine maßgeschneiderte Doppelhaushälfte von LivingHaus, die Raum für Lebensfreude auf 117 m² bietet. Mit vier Zimmern und durchdachter Architektur schafft dieses Zuhause ein Ambiente voller Licht und Komfort. Der charakteristische Zwerchgiebel verleiht dem Satteldach eine offene Silhouette und sorgt für eine lichtdurchflutete Atmosphäre, besonders in den Kinderzimmern. Zwei großzügige Schlafzimmer und zwei funktionale Badezimmer unterstreichen den Anspruch an Familienkomfort. Die überdachte Eingangszone empfängt dich einladend, während die beiden begrünten Garagen Nachhaltigkeit leben. Mit LivingHaus erhältst du mehr als nur ein Haus: Eine vollumfassende Betreuung macht dein Bauprojekt zum Genuss. Die individuell geplante Traumküche wird zum Herzstück deines Zuhauses, ausgestattet mit modernster Technik und cleveren Stauraumlösungen. Die praktische Bau-Cockpit-App begleitet dich transparent durch alle Projektphasen. Innovative Konzepte wie I-KON - Intelligentes Bauen garantieren Energieeffizienz, während exklusive Finanzierungsmodelle deine Hausreise komfortabel gestalten. Das umfassende Zuhause-Paket und das DIY-Ausbau-Coaching runden das maßgeschneiderte Angebot ab. Mit LivingHaus wird dein Traumhaus zur greifbaren Realität.

Merkmale

  • 339 m² Grundstück
  • Einbauküche
  • Badezimmer: Badewanne, Bad mit Dusche, Bad mit Fenster
Dein neues Zuhause wird mit einer Vielzahl an hochwertigen Ausstattungsmerkmalen versehen, die den modernen Lebensstil unterstützen. Vom energieeffizienten I-KON Effizienzhaus 55, das nur 55 % der Energie eines Standardhauses benötigt, bis hin zu einem umfangreichen Zuhause-Paket, das moderne Böden, edle Türen und stilvolle Sanitäranlagen umfasst. Die inklusive hochwertige Traumküche wird individuell auf deinen Grundriss abgestimmt und rechtzeitig zum Einzug geliefert. Das DIY-Ausbau-Coaching bietet dir die Möglichkeit, den Innenausbau selbst zu gestalten, während die Bau-Cockpit-App dir jederzeit den Überblick über dein Projekt ermöglicht. Du bekommst eine 18-monatige Festpreisgarantie sowie umfassende Bauversicherungen. Mit der Kombination aus individueller Planung, hochwertigen Materialien und einer durchdachten Bauweise bietet dir LivingHaus die Möglichkeit, dein "Wie ich es will Fertighaus" zu realisieren.

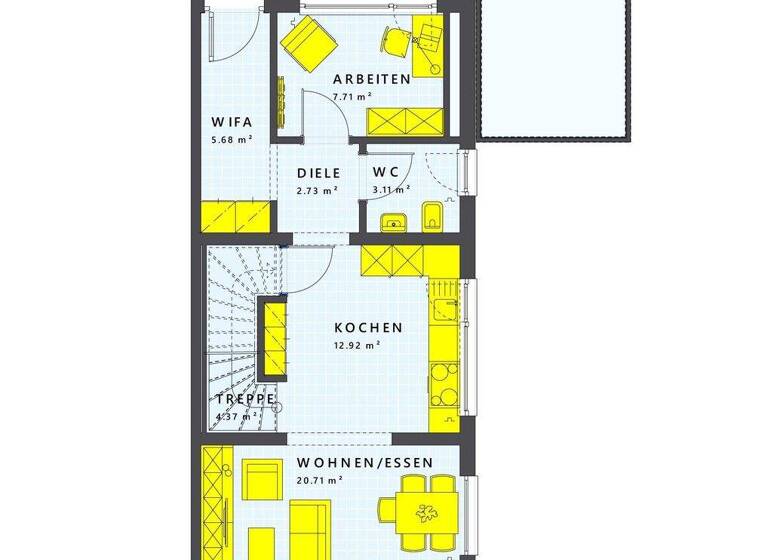
Grundrisse

Grundrisse
1 / 2

Realisiere Dein Projekt

Bausubstanz und Energie

Der Anbieter hat keine Informationen zum Energieverbrauch bereit gestellt.
  • Zustand der ImmobilieProjektiert
  • HaustypKfW 55
MediumRectangleTop

Preisdetails

Kaufpreis
549664 €
4.697,98 €/m²
Provision für Käufer
Bitte beachte, das Angebot kann bei Vertragsabschluss die Zahlung einer Provision beinhalten. Weitere Informationen erhältst Du vom Anbieter.
Geschätzte Gesamtkosten
616.008 €1
Kaufpreis
549.664 €
Notarkosten (1,5%)
8.245 €
Grunderwerbsteuer (6,5%)
35.728 €
Provision für Käufer (3,57%)
19.623 €
Grundbucheintrag (0,5%)
2.748 €
1Der angezeigte Wert ist eine automatisch berechnete Schätzung von immowelt.
2Bei den Angaben handelt es sich um ortsübliche Werte. Individuelle Kosten können abweichen.

Lage

address-icon
Niederkassel (53859)
Der Anbieter hat die genaue Adresse nicht freigegeben
Niederkassel, die charmante Stadt am Rhein, bietet dir eine ideale Lebensqualität mit zahlreichen Vorteilen. In der Umgebung findest du eine Vielzahl von Bildungseinrichtungen, darunter mehrere Kindergärten sowie Grund- und weiterführende Schulen, die gut bewertet sind und den Kindern eine hochwertige Ausbildung bieten. Die Stadt ist hervorragend an den öffentlichen Nahverkehr angebunden, sodass du bequem zur Arbeit oder in die umliegenden Städte pendeln kannst. Die Autobahn A560 ist ebenfalls in wenigen Minuten erreichbar, was dir eine schnelle Anbindung an Köln und Bonn ermöglicht.

Für den täglichen Einkauf stehen dir zahlreiche Supermärkte zur Verfügung, darunter Edeka, REWE und Aldi, die alle in kurzer Distanz erreichbar sind. Auch Ärzte und Apotheken sind in der Nähe und sorgen für eine gute Gesundheitsversorgung. Die Freizeitmöglichkeiten sind vielfältig: Von schönen Parks, in denen du entspannen oder mit der Familie spazieren gehen kannst, bis hin zu Sporteinrichtungen und einem Reiterhof. Für Naturliebhaber gibt es zahlreiche Rad- und Wanderwege entlang des Rheins und in den angrenzenden Naturschutzgebieten. Niederkassel ist ein Ort, der Familien, Naturliebhaber und Pendler gleichermaßen anspricht und dir ein hohes Maß an Lebensqualität bietet.

Weitere Informationen

Sonstiges Der Grundstückspreis ist im Anzeigenpreis bereits enthalten.
Das Grundstück erwerben Sie direkt vom Eigentümer über einen Makler.

Heimkommen - ankommen - herunterkommen - wohlfühlen

Vereinbaren Sie gleich Ihren persönlichen Beratungstermin und sichern Sie sich Ihrer Familie ein geniales Bauland für Ihr neues Zuhause mit Living Haus.

Jedoch bitte ich zu berücksichtigen:
Ich baue mit sehr viel Herz und Kompetenz Häuser. Im Interesse der jeweiligen Grundstückseigentümer sowie meiner Bauherren werde ich ohne ein persönliches Gespräch zum Thema Hausbau keine Grundstücksdaten weiterleiten.

Und... natürlich ist es mir selbst mit bestem Willen nicht möglich, eine dauerhafte Verfügbarkeit der Grundstücke zu garantieren. Es gibt jedes Grundstück halt nur einmal - Leider.

Kennen Sie schon den Living Haus Beratungsservice? Nein? Dann rufen Sie uns an und wir stimmen einen kostenlosen persönlichen Termin ab. Ihr Wohl liegt uns am Herzen.

Die Architektenleistungen sind bereits enthalten.

Für die gesamte Bauphase und darüber hinaus ist Ihr Projekt versichert, diese Leistungen sind im Preis bereits inbegriffen. Fragen Sie Ihren Berater.

Das Grundstück wird über einen anderen Anbieter verkauft. Keine Gewähr auf Angaben. Der Preis versteht sich zzgl. Kauf- und Baunebenkosten. Änderungen des Preises oder der Ausstattungen sowie Irrtümer oder Zwischenverkauf sind vorbehalten. Abbildungen und Grundrisse können Extras zeigen, die nicht im Angebot enthalten sind. Alle Angaben nach bestem Wissen und Gewissen, jedoch ohne Gewähr.

Finanzierungsberater stehen bei uns kostenlos zu Ihrer persönlichen Beratung bereit.

Wir laden Sie gerne zu einem persönlichen Gespräch in unsere Hausstatterei in Bedburg ein. Nur vollständig ausgefüllte Anfragen können auch beantwortet werden. Vereinbaren Sie noch heute einen Termin mit uns und kommen Sie Ihrem Traum von den eigenen 4 Wänden ein Stück näher.

Matthias Utsch 0171 / 4704111 oder per Mail: matthias.utsch(at)livinghaus.de

Wir freuen uns auf Sie! :-)

Konfigurator - https://www.livinghaus.de/hauskonfigurator

Living Haus Preise - https://www.livinghaus.de/fertighaus-preise

Livinghaus Homepage - https://www.livinghaus.de/

Checkliste - https://www.livinghaus.de//anbieter-vergleich Stichworte Nutzfläche: 117,00 m², Anzahl der Schlafzimmer: 2, Anzahl der Badezimmer: 2, 1 Etagen, Lage im Wohngebiet

Weitere Services

Lust auf eine Besichtigung?
Eine Frage zur Immobilie?
Nachricht hinzufügen
Mit der Nutzung der oben angegebenen Telefonnummer oder durch Klicken auf „Kontaktieren“ akzeptierst Du die Allgemeinen Nutzungsbedingungen, denen Du jederzeit widersprechen kannst. Weitere Informationen zum Datenschutz

Über den Anbieter

Amselweg 60, 53844 Troisdorf
partner badge
Partnerschaft
Herr Matthias Utsch
Herr Matthias UtschDein Kontakt
Online-ID: 2nh9e5l
Referenznummer: 30780-1216
Utsch GmbH - Freie Handelsvertretung der Living Fertighaus GmbH
title
Utsch GmbH - Freie Handelsvertretung der Living Fertighaus GmbH
Nachricht hinzufügen
Mit der Nutzung der oben angegebenen Telefonnummer oder durch Klicken auf „Kontaktieren“ akzeptierst Du die Allgemeinen Nutzungsbedingungen, denen Du jederzeit widersprechen kannst. Weitere Informationen zum Datenschutz
MediumRectangleTop
MediumRectangleTop
Wie zufrieden bist du mit dieser Seite (nicht mit der Immobilie selbst)?