Version: 8.26.0Navigation überspringen
990.000 €
8 Zimmer  •  450 m²  •  4.150 m² Grundstück
Immowelt logo

Bauernhaus zum Kauf
990000 €
2.200 €/m²
8 Zimmer  •  450 m²  •  4.150 m² Grundstück

Montegranaro - Landhaus in sehr gutem Zustand mit herrlichem Panoramablick | Immobilie Marken

Tolles Refugium mit großem Pool in wunderschöner Hügellandschaft.

Das Anwesen besteht aus zwei derzeit zusammenhängenden Etagen, die auch geteilt und unabhängig gemacht werden könnten. Die Steinmauern und die Außentreppe verleihen dem Haus ein traditionelles italienisches Flair, ebenso wie der große Portikus, der Sie in diesem herrlichen Anwesen willkommen heißt.

Über eine große steinerne Veranda betritt man das Erdgeschoss und kommt in ein helles Wohnzimmer. Ein großer Steinkamin und die Holzbalken machen diesen Raum besonders gemütlich.

Von hier aus haben Sie Zugang zur Küche mit Kamin, zum Esszimmer und einem großen Schlafzimmer mit eigenem Bad. Eine Waschküche und ein Gästebad befinden sich ebenfalls im Erdgeschoß.

Der erte Stock wird entweder über die Innen- oder die Außentreppe erreicht.

Hier befindet sich eine weitere Küche, ein geräumiges Wohnzimmer, drei Schlafzimmer mit einem eigenen Bad, zwei weitere Bäder und ein nützlicher Abstellraum.

Das Anwesen ist von einem 4.150 m² großen, gewachsenen Garten umgeben, der auf der Rückseite der Villa teilweise in einen Bio-Gemüsegarten umgewandelt wurde.

Die Villa ist nach Süden ausgerichtet mit Blick auf den 8x16m großen Pool und die herrliche Hügellandschaft.

In der Nähe des Landhauses befindet sich ein nützliches Nebengebäude, das derzeit als Geräteschuppen genutzt wird, sowie ein Garagenbereich.

Weitere und ähnliche Angebote finden Sie auf unserer Homepage www.italien-hauskauf.de

Merkmale

  • 4.150 m² Grundstück
  • Swimmingpool

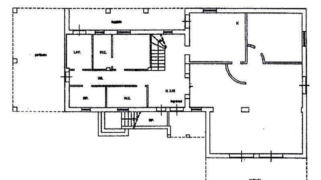
Grundrisse

Verschaffe dir einen genauen Überblick über die Raumaufteilung.selection_property_house-icon

Bausubstanz und Energie

Möchtest du Details zum Energieverbrauch?info_energy_calculation-icon
  • Zustand der ImmobilieGepflegt
Immowelt logo

Preisdetails

Kaufpreis
990000 €
2.200 €/m²
Provision für Käufer
f.d. Käufer 3,66 % inkl. MwSt. inkl. MwSt.

Lage

address-icon
PanoramablickMontegranaro (63014)
Montegranaro, Marken.

Entfernungen:

nächster Ort mit Dienstleistungen: 4,8 km
Autobahn A14: 15 km
Civitanova Marche: 16 km
Fermo: 16 km
Macerata: 23 km
Recanati: 28,5 km
Loreto: 33,9 km
Ancona: 57,5 km
Flughafen von Ancona: 65,1 km
Flughafen von Perugia: 124 km

Weitere Informationen

Stichworte Anzahl der Schlafzimmer: 4, Anzahl der Badezimmer: 5

Weitere Services

Lust auf eine Besichtigung?
Eine Frage zur Immobilie?
Nachricht hinzufügen
Mit der Nutzung der oben angegebenen Telefonnummer oder durch Klicken auf „Kontaktieren“ akzeptierst Du die Allgemeinen Nutzungsbedingungen, denen Du jederzeit widersprechen kannst. Weitere Informationen zum Datenschutz

Über den Anbieter

Tal 44, 80331 München
partner badge
10 Jahre Partnerschaft
Frau Nicole Siedersberger-KingDein Kontakt
Online-ID: 237AGHTW8U17
Referenznummer: IT-0342-KA
Wie zufrieden bist du mit dieser Seite (nicht mit der Immobilie selbst)?