Version: 8.25.1Navigation überspringen
Immobilienbüro Kühn GmbH  Co. KG, Komplimentär: Immobilienbüero Kühn Verwaltungs GmbH
750.000 €
3.859 m²  •  2.571 m² Grundstück

Bürogebäude zum Kauf • als Kapitalanlage geeignet
750000 €
3.859 m²  •  2.571 m² Grundstück

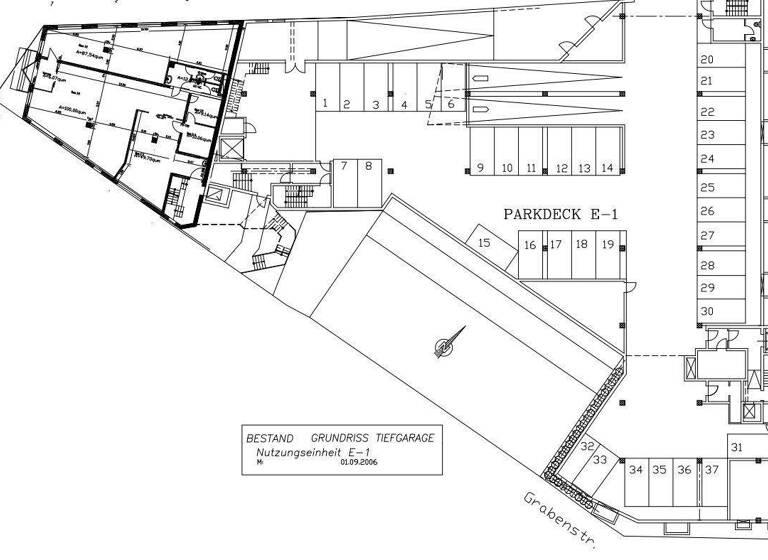
Geschäftshaus im Zentrum von Oelsnitz/V., ca. 3.800 m² Nutzfläche, san-bed. TG, 77 Stpl., Aufzug

Das Geschäftshaus wurde 1994 in 2 Bauabschnitten errichtet. Das Bauteil I ist unterkellert. Dort befindet sich auf 2 Ebenen verteilt eine Tiefgarage mit insgesamt 77 Stellplätzen. Es gibt 7 Gewerbeeinheiten mit einer Nutzfläche von ca. 2.759 m². Eine Einheit im Erdgeschoss (ca. 1.557 m²) ist an einen EDEKA-Markt vermietet. Die restlichen Flächen sind leerstehend und befinden sich teilweise im Rohbauzustand. In den Technikräumen im Kellerbereich gab es Feuchtigkeitsschäden, die jedoch mittels Trocknungsgeräten behoben wurden.

Das Bauteil II ist nicht unterkellert. Insgesamt befinden sich dort 6 Gewerbeeinheiten, die leer stehen, jedoch im Gegensatz zum Bauteil I ausgebaut sind. Die Nutzfläche beträgt ca. 1.100 m². Im Obergeschoss befand sich auf einer Fläche von ca. 280 m² ein Tanzcafé. Auf dem Bauteil I befindet sich ein großflächiges Flachdach, welches teilweise zur Dachterrasse umfunktioniert werden könnte.

Die Immobilie ist an die öffentliche Kanalisation angeschlossen und wird mit einer zentralen Gasheizung betrieben. 2021 wurde ein Glasfaserkabelanschluss ins Haus verlegt.

Die noch auszubauenden Leerflächen eröffnen eine Vielzahl an Nutzungsmöglichkeiten für die Immobilie, wie beispielsweise als Betreutes Wohnen, Tagespflege oder als Schulungsräume.

Ursprünglich beabsichtigte der Verkäufer einen Verkauf der Immobilie für 1.150.000 EUR.

An der Immobilie sind nach Angaben des Verkäufers folgende Mängel bekannt geworden:

- Die Tiefgarage ist sanierungsbedürftig wegen Salzeintrages. Eine Korrosion an der Stahlbewehrung der Ebenen und Stützen wird nicht ausgeschlossen.
In den Jahren 1919 und 1920 erfolgte auf der Basis eines Gutachtens eine sondierende Sanierung eines 6 m langen Tiefgaragenabschnittes inkl. eines Stützenfußes einer Betonstütze.
Eine weitere Sanierung der gesamten Tiefgarage wurde von den Eigentümern bisher nicht in Angriff genommen.

- Für die Tiefgarage gibt es ein System mit Wandhydranten. Dieses genügt neueren brandschutztechnischer Vorgaben nicht mehr. Auch wegen des technischen Zustandes muss das System außer Dienst gestellt werden. Alternativ ist die Installation einer äquivalenten Anzahl von Handfeuerlöschern geplant. Diese Veränderung wurde von den zuständigen Behörden der Stadt Oelsnitz und des Vogtlandkreises geprüft und genehmigt. Über eine Realisierung des Vorhabens ist uns nichts bekannt.

- Zur turnusmäßigen Prüfung der elektrischen Kraft- und Lichtanlagen ist uns bekannt, das eine erneute Prüfung nach Auskunft der zuständigen Versicherung in 07/2025 erfolgen soll.
Protokolle der bisherigen Prüfungen liegen uns nicht vor.

Merkmale

  • vermietet
  • 2.571 m² Grundstück
  • Personenaufzug
  • 77 Stellplätze: 77 Tiefgaragenstellplätze

Grundrisse

Grundrisse
1 / 6

Realisiere Dein Projekt

Bausubstanz und Energie

Energieausweis

Endenergieverbrauch (Wärme)

Endenergieverbrauch (Strom)

  • Baujahr1994
  • HeizungsartZentralheizung
  • EnergieträgerGas
MediumRectangleTop

Preisdetails

Kaufpreis
750000 €
Provision für Käufer
3,57 % des Kaufpreises inkl. gesetzlicher MwSt.
Die Provision beträgt 3,57 % des Kaufpreises inkl. 19 % MwSt. Weitere Informationen siehe Provisionshinweis.
Weitere Preisinformationen
77 Tiefgaragenstellplätze
Geschätzte Gesamtkosten
776.775 €1
Kaufpreis
750.000 €
Provision für Käufer (3,57%)
26.775 €
1Der angezeigte Wert ist eine automatisch berechnete Schätzung von immowelt.
2Bei den Angaben handelt es sich um ortsübliche Werte. Individuelle Kosten können abweichen.

Lage

address-icon
OelsnitzOelsnitz/Vogtland (08606)
Der Anbieter hat die genaue Adresse nicht freigegeben
Die Große Kreisstadt Oelsnitz/Vogtl. liegt im Westen des sächsischen Vogtlandkreises. Die Stadt mit ca. 10.000 Einwohnern befindet sich südlich von Plauen und ist Mitglied der Verwaltungsgemeinschaft Oelsnitz/Vogtl. Am Rande des Stadtzentrums fließt die Weiße Elster. Chemnitz befindet sich circa 80 km nordöstlich von Oelsnitz, Zwickau circa 50 km in der gleichen Richtung. Die Stadt ist verkehrsgünstig direkt an der B92 mit Anbindung an die A72 gelegen.
Es gibt im Ort 3 Gewerbegebiete. Ansässig sind vorrangig mittelständische Unternehmen, Handwerksbetriebe und Dienstleistungsunternehmen. Größter Arbeitgeber ist die Firma Meiser Vogtland OHG, die in Oelsnitz 2020 eine der modernsten Verzinkungsanlagen Europas in Betrieb genommen hat.
Die Gewerbeimmobilie befindet sich unweit vom Stadtzentrum. Geschäfte des täglichen Bedarfs, Banken sowie Einrichtungen der medizinischen Versorgung sind fußläufig erreichbar.

Weitere Informationen

Provisionshinweis 3,57 % des Kaufpreises inkl. gesetzlicher MwSt.
Die Provision beträgt 3,57 % des Kaufpreises inkl. 19 % MwSt.

Sie ist verdient mit Abschluss des notariellen Kaufvertrages und spätestens mit dem Kaufpreis zur Zahlung fällig. Der Makler hat mit dem Verkäufer einen provisionspflichtigen Vertrag in gleicher Höhe geschlossen. Sonstiges Bitte nutzen Sie das Kontaktformular, um uns Ihre Fragen bzw. Ihren Besichtigungswunsch mitzuteilen. Wir nehmen schnellstmöglich den Kontakt zu Ihnen auf bzw. senden Ihnen gern ergänzende Unterlagen entsprechend Ihrer Anfrage zu.

Alle Angaben beruhen auf Aussagen der Eigentümer bzw. basieren auf den uns bis dato vorliegenden Unterlagen und erfolgen ohne Gewähr. Irrtum und zwischenzeitlicher Verkauf bleiben vorbehalten. Fotos, Grundrisse und Exposé © 2025, Immobilienbüro Kühn Stichworte vermietbare Fläche: 3.859,00 m²

Weitere Services

Lust auf eine Besichtigung?
Eine Frage zur Immobilie?
Nachricht hinzufügen
Mit der Nutzung der oben angegebenen Telefonnummer oder durch Klicken auf „Kontaktieren“ akzeptierst Du die Allgemeinen Nutzungsbedingungen, denen Du jederzeit widersprechen kannst. Weitere Informationen zum Datenschutz

Über den Anbieter

Jahnstr. 17, 08058 Zwickau
partner badge
6 Jahre Partnerschaft
Herr Wolfgang KühnDein Kontakt

Weitere Unterlagen

Online-ID: 25GAK3RN57Q5
Referenznummer: OelGr26
Immobilienbüro Kühn GmbH  Co. KG, Komplimentär: Immobilienbüero Kühn Verwaltungs GmbH
Immobilienbüro Kühn GmbH Co. KG, Komplimentär: Immobilienbüero Kühn Verwaltungs GmbH
Bewertung: 4,6 von 5 Sternen
Nachricht hinzufügen
Mit der Nutzung der oben angegebenen Telefonnummer oder durch Klicken auf „Kontaktieren“ akzeptierst Du die Allgemeinen Nutzungsbedingungen, denen Du jederzeit widersprechen kannst. Weitere Informationen zum Datenschutz
MediumRectangleTop
MediumRectangleBottom
MediumRectangleTop
Wie zufrieden bist du mit dieser Seite (nicht mit der Immobilie selbst)?