Version: 8.25.1Navigation überspringen
1.540 €
2 Zimmer  •  60,5 m²  •  2. Geschoss
Immowelt logo

Wohnung zur Miete - Erstbezug
1.540 €
2 Zimmer  •  60,5 m²  •  2. Geschoss

Moderner Neubau: 2-Zimmer-Wohnung mit Balkon und hochwertiger Einbauküche

Mit dem FRIEDAS Berlin entsteht auf einem Areal von ca. 24.366 m2 ein modernes Wohnquartier. Der gesamte Neubau-Komplex in der Friedenauer Höhe umfasst sechs Gebäude mit insgesamt 396 Wohnungen, die in drei Bauabschnitten fertiggestellt werden. Im ersten Bauabschnitt entstehen 132 Wohnungen mit einem bis vier Zimmern, teilweise barrierefrei, sowie 69 TG-Stellplätze. Neben der Tiefgarage befinden sich im Untergeschoss auch Abstell-, Fahrrad-, Technik- und Müllräume sowie die Mieterkeller. Die moderne Architektur, bodentiefe Fenster und eine harmonische Farbgestaltung der Fassaden überzeugen ebenso wie die abwechslungsreich begrünten Außenanlagen. In Massivbaubauweise errichtet und erbaut gemäß den aktuell gültigen Bestimmungen der EnEV, erfüllen sämtliche Gebäude die Standards des GEG und "Effizienzhaus 55 EE" sowie die Vorschriften des erhöhten Schallschutzes. Die Wärme- und Warmwasserversorgung sichert ein Blockheizkraftwerk. Die gärtnerische Gestaltung der Freiflächen umfasst Rasen und Pflanzbeete mit Stauden sowie Hecken, Sträucher und Kleingehölze. Die Abgrenzung der Erdgeschoss-Terrassen erfolgt ebenfalls durch Hecken. Ein Spielbereich für die Kleinsten mit Sandkasten und Spielgeräten wird ergänzt durch ebenerdige Spielflächen für Schach, Mühle oder Mensch-ärgere-dich-nicht.
Teil eines Projekts
FRIEDA'S
Neubauprojekt
  • alle Details des Projekts erhalten
  • alle verfügbaren Einheiten ansehen
Zum Projekt
öffnet in neuem Tab

Merkmale

  • Bezug: ab sofort
  • 2. Geschoss
  • Barrierefrei
  • Personenaufzug
  • Einbauküche
  • Keller
  • Balkon
  • Außen-Stellplatz
Klares Design und modernste Ausstattung bieten Spielraum und individuelle Gestaltungsfreiheit der Räume. Klare Grundrisse und durchdachte Raumnutzungskonzepte sorgen neben dem offenen Schnitt der Wohnzimmer, den bodentiefen Fenstern, die viel Licht in die Zimmer lassen, für Wohlfühlatmosphäre.
- Mehrschicht-Fertigparkett Eiche in den Wohnräumen
- Feinsteinzeug-Fliesen in Bädern, WCs und Abstellräumen
- Fußbodenheizung
- zusätzlicher Handtuchheizkörper in den Bädern
- Terrasse/Balkon/Dachterrasse
- hochwertige Einbauküchen
- Elektrisch betriebene Rollläden
- Aufzug
- Video-Gegensprechanlage
- Glasfaseranschluss
- Mieter-Keller

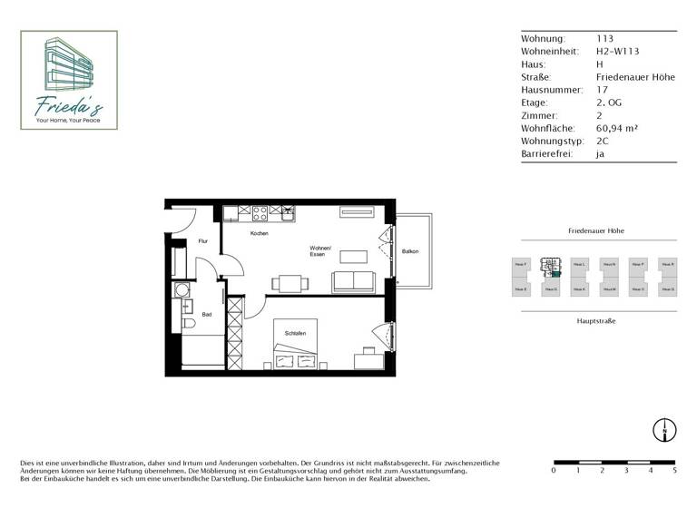
Grundrisse

Grundrisse
1 / 1

Virtueller Rundgang

3D tour

Realisiere Dein Projekt

Bausubstanz und Energie

Energieausweis

B
  • Baujahr2025
  • Zustand der ImmobilieNeubau, Erstbezug
  • EnergieträgerFernwärme
Immowelt logo

Mietkosten

Warmmiete
1.760 €
Kaltmiete
25,47 €/m²
1.540 €
Nebenkosten
220 €
Heizkosten
in Warmmiete enthalten
Zusätzliche Kosten
Miete pro Stellplatz
130 €
Kaution
4620 €
Weitere Preisinformationen
1 Stellplatz, Miete: 130,00 EUR

Lage

address-icon
Friedenauer Höhe 17FriedenauBerlin (12159)
ÖPNV, Nahversorgung und Schule - alles ist bequem und schnell zu erreichen. Nur 250 Meter entfernt liegt die Bushaltestelle, während S- und U-Bahn nach rund 500 Metern erreicht sind. Im Umkreis von ca. 750 Metern sorgen Lidl, Aldi, EDEKA und Netto für den Einkauf täglichen Bedarfs. Auch Parks, Spielplätze und Sportstätten befinden sich im nahen Umfeld des FRIEDAS Berin - ebenso wie zahlreiche Cafés und Restaurants mit kulinarischen Angeboten aus (fast) der ganzen Welt. Besten Service in Sachen Mobilität bieten die Sharing Points für Scooter, Bikes und Cars, die allesamt fußläufig und weniger als sechs Minuten erreicht sind. Ebenso schnell gelangt man zur S- und U-Bahnstation Innsbrucker Platz sowie zu den Bushaltestellen Hähnelstraße und Ceciliengärten.
Entfernungen:
- Flughafen Berlin Brandenburg ca. 24 km / 46 min. ÖPNV / 24 min. Pkw
- Alexanderplatz ca. 9 km / 38 min. ÖPNV / 27 min. Pkw
- Autobahn A100 ca. 1 km / 3 min. Pkw
- Grunewaldsee ca. 12 km / 54 min. ÖPNV / 20 min. Pkw

Weitere Informationen

Sonstiges Wir bitten Sie Terminanfragen über das Kontaktformular zu senden.

Bei den Bildern handelt es sich um unverbindliche Visualisierungen und Bilder der Musterwohnung. Gerne können Sie sich im Zuge einer Besichtigung selbst vom FRIEDA'S überzeugen.

HAFTUNGSAUSSCHLUSS:
Diese Anzeige dient nur der ersten Information und stellt kein Vertragsangebot dar. Die Anzeige begründet keine vertraglichen Ansprüche. Der Inhalt und die Angaben wurden nach bestem Wissen und Gewissen ermittelt. Für Richtigkeit und Vollständigkeit wird keine Haftung übernommen.

Vermietungswebsite - https://friedas-berlin.de/

Terminbuchungslink - https://friedas-berlin.de/#besichtigungen Stichworte Tiefgarage vorhanden, Anzahl der Schlafzimmer: 1, Anzahl der Badezimmer: 1, Anzahl Balkone: 1, 5 Etagen

Weitere Services

Lust auf eine Besichtigung?
Eine Frage zur Immobilie?
Mit einer persönlichen Nachricht hast du bessere Chancen auf eine Antwort.
Mit der Nutzung der oben angegebenen Telefonnummer oder durch Klicken auf „Kontaktieren“ akzeptierst Du die Allgemeinen Nutzungsbedingungen, denen Du jederzeit widersprechen kannst. Weitere Informationen zum Datenschutz

Über den Anbieter

Galileistraße 1, 69115 Heidelberg
partner badge
10 Jahre Partnerschaft
Frau Stefanie KochDein Kontakt
Keine Telefonnummer hinterlegt
Keine Telefonnummer hinterlegt
Online-ID: 25KVWD8V6BQ2
Referenznummer: H2-W113#EpnLD
Müller Merkle Immobilien GmbH
Müller Merkle Immobilien GmbH
Bewertung: 4,2 von 5 Sternen
Mit einer persönlichen Nachricht hast du bessere Chancen auf eine Antwort.
Mit der Nutzung der oben angegebenen Telefonnummer oder durch Klicken auf „Kontaktieren“ akzeptierst Du die Allgemeinen Nutzungsbedingungen, denen Du jederzeit widersprechen kannst. Weitere Informationen zum Datenschutz
Wie zufrieden bist du mit dieser Seite (nicht mit der Immobilie selbst)?