Version: 8.24.0Navigation ĂĽberspringen
1.288 €
4 Zimmer  â€˘  178 m² BĂĽrofläche  â€˘  teilbar ab 51 m²
Immowelt logo

Bürogebäude zur Miete
1.288 €
4 Zimmer  â€˘  178 m² BĂĽrofläche  â€˘  teilbar ab 51 m²

VB3918 Barrierefreie und teilbare Büro- oder Praxisräume mit Lager / Bad Abbach

Kurzbeschreibung Gerne stehen wir für eine Besichtigung zur Verfügung. Objekt Die Büro- bzw. Praxisfläche befindet sich in einer Sackgasse in einem Wohngebiet in Bad Abbach. Eine Bushaltestelle befindet sich in der Nähe. Durch die nahegelegene Autobahn A 93 und den Bahnhof besteht eine hervorragende Anbindung an Regensburg.

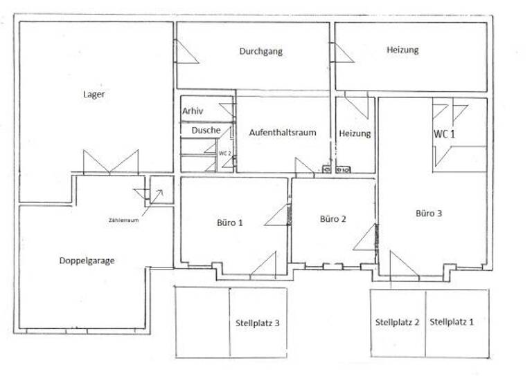
Die Fläche befindet sich im Erdgeschoss eines Wohn/Geschäftshauses und wird mit einer Gaszentralheizung beheizt. Sie besteht aus einer Büro- oder Praxisfläche sowie einem Lager. Ein DSL-Anschluss ist mit bis zu 1000 Mbit/s möglich. Die Räume befinden sich im Rohbauzustand und werden vom Eigentümer nach Mieterwunsch fertiggestellt.

Die Praxis- oder Bürofläche hat zwei separate Außeneingänge und kann somit geteilt und separat vermietet werden. Sie ist gefliest und verfügt über abgehängte Decken mit integrierten Leuchten. Der Aufenthaltsraum ist mit Küchenanschlüssen ausgestattet. Nebenan befinden sich zwei WCs sowie eine Dusche. Es ist möglich eine weitere WC-Anlage von Büro 3 abzutrennen.

Die Doppelgarage verfügt über zwei elektrische Sektionaltore und Stromanschlüsse. Über ein großes doppelflügeliges Tor ist von hier aus die Lagerfläche erreichbar. Sie ist mit einem Betonboden ausgestattet. Eine Deckengrundbeleuchtung und Steckdosen sind vorhanden.

Merkmale

  • Bezug: sofort
  • 3 Stellplätze: AuĂźen-Stellplatz
Lage: Bad Abbach
Mietpreis: EUR 1.288,-
Nebenkosten: EUR 300,-
Fläche: ca. 178 m²
Zimmeranzahl: 4
Baujahr: 1992
letzte Modernisierung: 2023
Kaution: EUR 3.864,-
Geschoss(e): EG
Bezug: sofort
teilbar ab: ca. 51 m²
Stellplatzanzahl: 3
Stellplatzpreis: EUR 40,-
FuĂźweg zum RVV: 5 min.
Fahrtzeit Bahnhof: 20 min.
Fahrtzeit Autobahn: 5 min.
Fahrtzeit Flughafen: 80 min.
Objekttyp: Wohn- und Geschäftshaus
Zustand: renovierungsbedĂĽrftig
Stellplatz: AuĂźenstellplatz
Ausstattung: normal
Bodenbelag: nach Mieterwunsch
Heizung: Zentralheizung

Grundrisse

Grundrisse
1 / 1

Realisiere Dein Projekt

Bausubstanz und Energie

Der Anbieter hat keine Informationen zum Energieverbrauch bereit gestellt.
  • Baujahr1992
  • Zustand der ImmobilierenovierungsbedĂĽrftig / sanierungsbedĂĽrftig
  • HeizungsartZentralheizung
Immowelt logo

Mietkosten

Nettomiete
1.288 €
Nebenkosten
300 €
Zusätzliche Kosten
Miete pro Stellplatz
40 €
Provision fĂĽr Mieter
Ortsübliche Provision vom Käufer/Mieter nur im Erfolgsfalle
Kaution
3.864,00 Soweit nicht anders erwähnt 3 Monatsmieten
Weitere Preisinformationen
1 Stellplatz, Miete: 40,00 EUR
Nettokaltmiete: 1.288,00 EUR

Lage

address-icon
Lengfeld, Bad Abbach (93077)
Der Anbieter hat die genaue Adresse nicht freigegeben
Bad Abbach

Weitere Informationen

Sonstiges Um eine schnelle Bearbeitung zu gewähren benötigen wir Ihre Telefonnummer sowie Ihre komplette Adresse. Stichworte Stellplatz vorhanden, Nutzfläche: 178,00 m², Bundesland: Bayern, modernisiert: 2023, Distanz zur Autobahn: 2, Distanz zum Bus: .5, Distanz zum Hauptbahnhof: 10, Distanz zum Flughafen: 100

Weitere Services

Lust auf eine Besichtigung?
Eine Frage zur Immobilie?
Nachricht hinzufĂĽgen
Mit der Nutzung der oben angegebenen Telefonnummer oder durch Klicken auf „Kontaktieren“ akzeptierst Du die Allgemeinen Nutzungsbedingungen, denen Du jederzeit widersprechen kannst. Weitere Informationen zum Datenschutz

Ăśber den Anbieter

NuĂźbergerstr. 6, 93059 Regensburg
partner badge
Partnerschaft
Herr Roland TrummerDein Kontakt
Online-ID: 2lhxm5c
Referenznummer: VB 3918
Trummer Immobilien GmbH & Co. KG
Trummer Immobilien GmbH & Co. KG
Bewertung: 4,5 von 5 Sternen
Nachricht hinzufĂĽgen
Mit der Nutzung der oben angegebenen Telefonnummer oder durch Klicken auf „Kontaktieren“ akzeptierst Du die Allgemeinen Nutzungsbedingungen, denen Du jederzeit widersprechen kannst. Weitere Informationen zum Datenschutz
Wie zufrieden bist du mit dieser Seite (nicht mit der Immobilie selbst)?