Du suchst eine renditestarke Immobilie mit Zukunftsperspektive? Dann ist dieses Mehrfamilienhaus mit drei Wohneinheiten und zwei Hobbyräumen genau das Richtige für Dich. Das 1950 errichtete Gebäude erstreckt sich über drei Etagen auf einer Wohnfläche von insgesamt ca. 226,13 m² und überzeugt durch hochwertige Materialien, gepflegtes Gemeinschaftseigentum sowie durchdachte Grundrisse.
Zwei der drei Wohnungen wurden bereits modernisiert und bestechen durch stilvollen Vinylböden und eine gehobene Ausstattung. Die Dachgeschosswohnung ist zeitlos gestaltet und bietet mit Renovierungsmaßnahmen zusätzliches Wertsteigerungspotenzial. Zwei der Einheiten verfügen über Balkone, die Erdgeschosswohnung über eine eigene Terrasse - ideale Highlights für Deine Mieter.
Abgerundet wird das Objekt durch zwei vielseitig nutzbare Hobbyräume, eine Garage und drei Außenstellplätze.
Alle drei Wohnungen sind derzeit vollständig vermietet und generieren eine monatliche Kaltmiete von ca. 4.481,97 €, was einer Bruttorendite von etwa 5,4 % entspricht. Mit gezielten Modernisierungen, insbesondere im Dachgeschoss, lässt sich das Ertragspotenzial weiter steigern.
Dieses Mehrfamilienhaus ist die ideale Wahl für Dich, wenn Du auf stabile Mieteinnahmen setzen und gleichzeitig Wertsteigerungspotenzial nutzen möchtest. Die Kombination aus modernisierten Wohnungen, zeitloser Einheit, attraktiven Außenbereichen und zusätzlicher Nutzfläche macht dieses Objekt zu einer seltenen Gelegenheit für renditestarke Investitionen.
Merkmale
vermietet
432 m² Grundstück
Einbauküche
Keller
Balkon
Terrasse
4 Stellplätze: Garage, 3 Außen-Stellplätze
FAKTEN - Vier Einheiten auf vier Etagen - Drei Wohneinheiten auf vier Etagen - Eine Einheit mit zwei Hobbyräumen - Alle Einheiten sind vermietet - Drei von Vier Einheiten bereits vollständig saniert - Eine Garage + Drei Außenstellplätze - Zwei Balkone und eine Terrasse - Aktuelle Kaltmiete in Höhe von 4.481,97 €
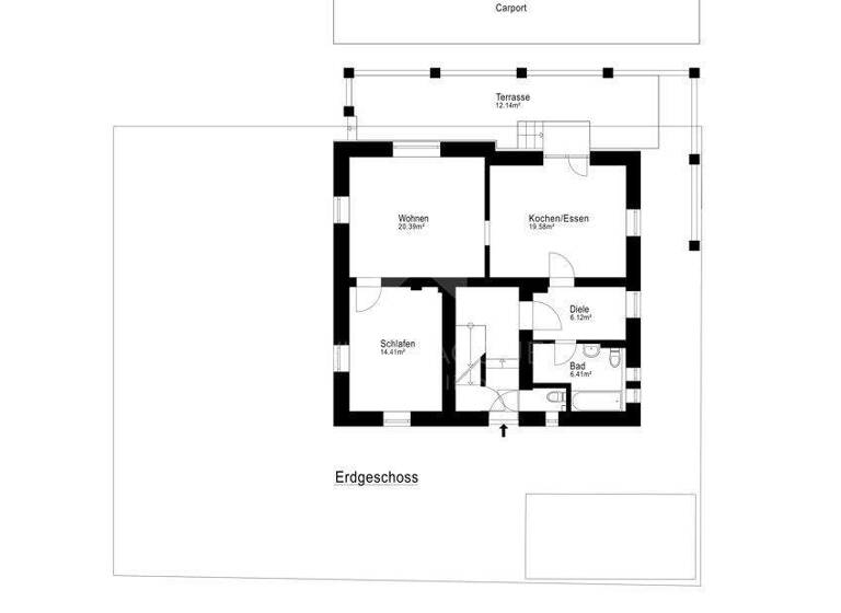
AUFTEILUNG - EG: ca. 79,05 m² - OG ca. 76,41 m² - DG ca. 70,67 m² - UG ca. 66,24 m²
MODERNISIERUNGEN 2022/2024 (sanierte Wohnungen) - Stilvolle Badezimmer mit Badewanne oder Dusche - Hochwertige Vinylböden - Teilweise neue Fenster mit 2-Fach-Verglasung - Neue Heizung
Grundrisse
Grundrisse
1 / 2
Realisiere Dein Projekt
Bausubstanz und Energie
Energieausweis
D
Baujahr1950
Zustand der ImmobilieGepflegt
HeizungsartZentralheizung
EnergieträgerGas
Preisdetails
Kaufpreis
999000 €999.000 €
4.417,81 €/m²
Provision für Käufer
3,57 % (inkl. 19 % MwSt.) inkl. MwSt.
Weitere Preisinformationen
3 Stellplätze 1 Garagenstellplatz
Geschätzte Gesamtkosten
1.089.609 €1
Kaufpreis
999.000 €
Kaufnebenkosten
90.609 €
2
Notarkosten (1,5%)
14.985 €
Grunderwerbsteuer (3,5%)
34.965 €
Provision für Käufer (3,57%)
35.664 €
Grundbucheintrag (0,5%)
4.995 €
1Der angezeigte Wert ist eine automatisch berechnete Schätzung von immowelt.
2Bei den Angaben handelt es sich um ortsübliche Werte. Individuelle Kosten können abweichen.
Lage
Westheim b.Augsburg, Neusäß (86356)
Der Anbieter hat die genaue Adresse nicht freigegeben
Die Immobilie befindet sich in einer ruhigen und gewachsenen Wohnlage in Neusäß, einer beliebten Stadt am westlichen Stadtrand von Augsburg. Die Umgebung ist geprägt von gepflegten Ein- und Mehrfamilienhäusern, begrünten Straßen sowie einem angenehmen, familienfreundlichen Wohnumfeld mit wenig Durchgangsverkehr. Die Nähe zu Feldern, Wiesen und Naherholungsgebieten sorgt für eine hohe Lebensqualität, während die gute Anbindung an Augsburg und die umliegenden Städte die Lage besonders attraktiv macht.
In der näheren Umgebung sind zahlreiche Einkaufsmöglichkeiten, Bäckereien, Apotheken sowie Restaurants und Cafés für den täglichen Bedarf vorhanden. Kindergärten, Schulen und Sporteinrichtungen sind bequem erreichbar und unterstreichen die Attraktivität für Familien. Der nahegelegene Westheimer Park und die umliegenden Grünflächen bieten ideale Möglichkeiten für Freizeit, Sport und Erholung im Freien.
Die Verkehrsanbindung ist sehr gut: Die Stadtbuslinien verbinden den Standort mit dem Zentrum von Neusäß sowie direkt nach Augsburg. Mit dem Auto sind die Bundesstraße B2 sowie die Autobahn A8 in wenigen Minuten erreichbar, was die Lage auch für Pendler sehr komfortabel macht.
Umgebung & Anbindung:
- Supermarkt: ca. 5 Autominuten - Bushaltestelle: ca. 1 Gehminute - Neusäß Zentrum: ca. 5 Minuten mit dem Auto - Augsburg Innenstadt: ca. 15 Minuten mit dem Auto - Westheimer Park: ca. 5-10 Gehminuten - Autobahn A8: ca. 10 Minuten mit dem Auto
Weitere Informationen
Stichworte
Nutzfläche: 66,24 m², Anzahl der Schlafzimmer: 4, Anzahl der Badezimmer: 3, Anzahl der separaten WCs: 2, Anzahl Balkone: 2, Anzahl Terrassen: 1, Anzahl der Wohneinheiten: 3, 4 Etagen