Wohnung zur Miete710 €3,5 Zimmer • 80 m² • 4. Geschoss • frei ab sofort
710 €
3,5 Zimmer • 80 m² • 4. Geschoss • frei ab sofort
Helle große 3,5 Zimmer-Dachgeschoßwohnung mit Balkon und Blick ins Grüne...
Merkmale
- Bezug: sofort
- Dachgeschoss, 4. Geschoss
- Gäste-WC
- Balkon
- Badezimmer: Badewanne, Bad mit Dusche
- Waschraum
- Bodenbelag: Fliesen, Laminat
- Fenster: Holz
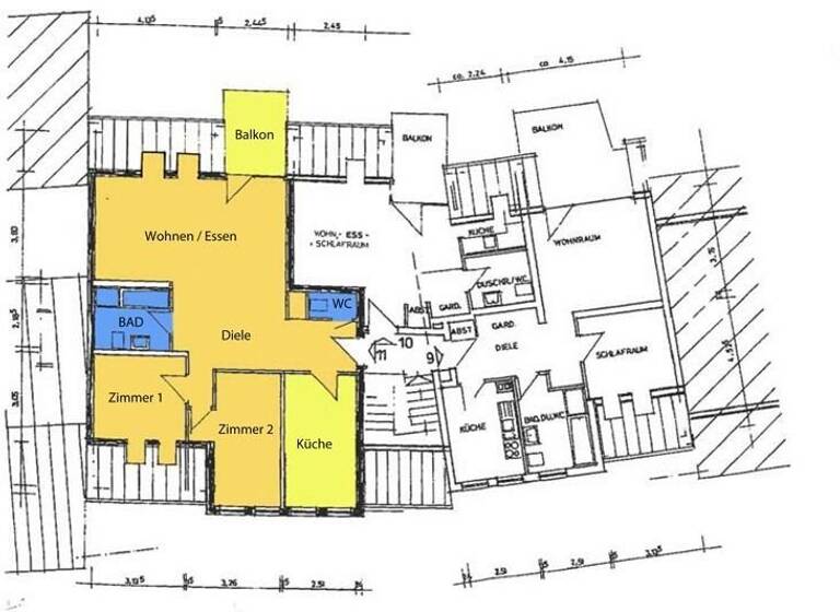
Grundrisse
Grundrisse
1 / 1
Bausubstanz und Energie
Energieausweis
E
- Baujahr1984
- HeizungsartZentralheizung
- EnergieträgerGas
Mietkosten
geschätzte Warmmiete
~1.174 €
Kaltmiete
8,88 €/m²
710 €
Nebenkosten
280 €
Kaution
2130 €
Lage

Dillweißenstein, Pforzheim (75180)
Der Anbieter hat die genaue Adresse nicht freigegeben
Weitere Services
Lust auf eine Besichtigung?
Eine Frage zur Immobilie?
Über den Anbieter
Esslinger Str. 49, 76228 Karlsruhe
Partnerschaft
Peter PortzDein Kontakt
Online-ID: 252K2MF4BN9A
Wie zufrieden bist du mit dieser Seite (nicht mit der Immobilie selbst)?
