Version: 8.25.1Navigation überspringen
7,50 €
15 Zimmer  •  500 m² Bürofläche
Immowelt logo

Praxis zur Miete
7,50 €
/m²
15 Zimmer  •  500 m² Bürofläche

Ideale Voraussetzungen für ein Ärzte- oder Gesundheitszentrum!

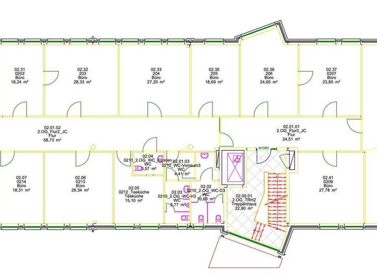
Die zur Vermietung stehende Fläche von ca. 500-650 m² befindet sich im 2. Obergeschoss eines gepflegten, repräsentativen Gewerbeobjekts. Durch ihre flexible Raumstruktur und die großzügige Aufteilung bietet sie ideale Voraussetzungen für die Entwicklung eines modernen Ärzte- oder Gesundheitszentrums .

Die Etage ist derzeit in mehrere Einzel- und Teambüros sowie zwei größere Räume unterteilt - eine Aufteilung, die sich bereits optimal für Praxisräume, Behandlungszimmer, Wartebereiche oder gemeinschaftlich genutzte Funktionsflächen eignet.

Dank der Trockenbauweise lassen sich die bestehenden Raumstrukturen unkompliziert anpassen. So kann die Fläche individuell auf die Anforderungen unterschiedlicher medizinischer Fachrichtungen abgestimmt werden - beispielsweise für mehrere Arztpraxen, Therapieeinrichtungen oder diagnostische Bereiche.

Das etablierte Gewerbeobjekt bietet ein professionelles Umfeld mit angenehmer Atmosphäre für Patienten, Besucher und Mitarbeitende. Die Flächen eröffnen die Möglichkeit, verschiedenste medizinische Dienstleistungen unter einem Dach zu vereinen und ein zukunftsorientiertes Gesundheitskonzept zu realisieren.

Dieses Objekt stellt somit eine hervorragende Grundlage für die Umsetzung eines modernen Ärzte- oder Gesundheitszentrums mit langfristiger Perspektive dar.

Lassen Sie uns gerne ins Gespräch kommen - wir freuen uns auf Ihr Konzept!

Merkmale

  • Bezug: nach Absprache
  • 2. Geschoss
  • Barrierefrei
  • Personenaufzug
  • Einbauküche
  • Gäste-WC
  • Bodenbelag: Teppich
- Sonnenschutz: Effektiver Außen- bzw. Innenliegender Sonnenschutz für ein angenehmes Raumklima
- Bodenbelag: Hochwertiger, neuwertiger Teppichboden in den Büro- und Praxisräumen
- Raumtrennsystem: Trockenbauwände ermöglichen eine einfache und flexible Umgestaltung der Räume
- Barrierefreiheit: Behindertengerechtes, barrierefrei ausgeführtes WC vorhanden
- Küche: Moderne, neuwertige Einbauküche mit ausreichend Stauraum und funktionaler Ausstattung
- Netzwerktechnik: Neue Glasfaserverkabelung für schnelle und Datenübertragung
- Aufzug: Personenaufzug mit direktem Zugang im 2. Obergeschoss
- Parkmöglichkeiten: Ausreichend Stellplätze auf dem Gelände vorhanden
- Erweiterungsoption: Optionale Erweiterung der Fläche auf derselben Etage möglich
- Der Energieausweis für dieses Objekt ist aktuell beantragt und befindet sich in Erstellung. Die relevanten Angaben werden nach Fertigstellung ergänzt und spätestens zur Besichtigung zur Verfügung gestellt

Grundrisse

Grundrisse
1 / 1

Realisiere Dein Projekt

Bausubstanz und Energie

Möchtest du Details zum Energieverbrauch?info_energy_calculation-icon
  • Baujahr1996
  • Zustand der ImmobilieGepflegt
  • HeizungsartZentralheizung
  • EnergieträgerGas
Immowelt logo

Mietkosten

Monatliche Miete
7,50 €/m²
Nebenkosten
2,80 €
Heizkosten
in Warmmiete enthalten
Provision für Mieter
3 Bruttomieten zzgl. MwSt.
Kaution
3 KM

Lage

address-icon
Stade (21680)
Der Anbieter hat die genaue Adresse nicht freigegeben
Die Immobilie befindet sich in attraktiver Lage in Stade, einer lebendigen und wirtschaftlich stabilen Stadt im Landkreis Stade in Niedersachsen. Der Standort verbindet kurze Wege, gute Erreichbarkeit und ein angenehmes Umfeld - ideale Voraussetzungen für modernes Arbeiten und ein motivierendes Arbeitsumfeld.

Arbeiten in Zentrumsnähe:
Die Nähe zum historischen Stadtzentrum von Stade ermöglicht es Mitarbeitenden, den Arbeitsalltag flexibel zu gestalten. Einkaufsmöglichkeiten, Cafés, Restaurants und Dienstleistungsangebote sind schnell erreichbar und bieten ideale Möglichkeiten für die Mittagspause oder Termine nach Feierabend. Die gewachsene Innenstadt mit ihrem besonderen Charme trägt zusätzlich zu einer hohen Aufenthaltsqualität bei.

Optimale Erreichbarkeit:
Die sehr gute Verkehrsanbindung erleichtert den täglichen Arbeitsweg. Über die nahegelegene Autobahn A26 ist der Standort schnell aus Hamburg und dem Umland erreichbar. Der Bahnhof Stade bietet regelmäßige Zugverbindungen in die Hansestadt sowie in die Region und stellt eine komfortable Alternative zum Auto dar - ein klarer Vorteil für Mitarbeitende und Besucher.

Attraktives Arbeitsumfeld:
Das Umfeld ist geprägt von einer ausgewogenen Mischung aus Gewerbe, Dienstleistung und urbanem Leben. Grünflächen, Wasserlagen und Parks in der näheren Umgebung schaffen Ausgleichsmöglichkeiten und erhöhen die Lebens- und Arbeitsqualität - ein Pluspunkt bei der Mitarbeitergewinnung und -bindung.

Standort mit Perspektive:
Stade bietet als Wirtschaftsstandort ein stabiles Umfeld mit einer gut ausgebauten Infrastruktur. Für Unternehmen bedeutet dies Planungssicherheit, für Mitarbeitende kurze Wege und ein angenehmes Umfeld, das Beruf und Alltag optimal miteinander verbindet.

Insgesamt überzeugt die Lage durch ihre Kombination aus zentraler Anbindung, hoher Aufenthaltsqualität und guter Infrastruktur - ein Standort, der sowohl Arbeitgeber als auch Mitarbeitende anspricht.

Weitere Informationen

Sonstiges Gut beraten bei Gewerbeimmobilien!
Vom Büroraum übers Lager bis hin zu Einzelhandelsflächen: Gewerbeimmobilien sind ganz besondere Liegenschaften. Es sind Räume, an denen Arbeiten und Leben eine produktive Einheit bilden sollen. Als erfahrener Makler in Hamburg und Region wissen wir, um die Wünsche und Anforderungen von Mieter und Käufern. Genau das macht uns zu Ihrem Experten, wenn Sie eine Gewerbeimmobilie zu vermitteln oder zu verwalten haben. Für Sie als Verkäufer, Vermieter und Immobilienbesitzer haben wir einen zielführenden Rundum-Service. Ihr Erfolg ist unser Erfolg.

Um Ihnen schnell ein ausführliches und aussagekräftiges Exposé übersenden zu können, möchten wir Sie bitten, Ihren Vor- und Nachnamen, Ihre postalische Adresse, eine Telefonnummer und möglichst Ihre E-Mail Adresse in der Anfrage anzugeben.

Alle Angaben sind ohne Gewähr und basieren ausschließlich auf Informationen, die uns von unserem Auftraggeber zur Verfügung gestellt wurden. Wir übernehmen keine Gewähr für die Vollständigkeit, Richtigkeit und Aktualität dieser Angaben. Stichworte Stellplatz vorhanden, Nutzfläche: 500,00 m², Gesamtfläche: 500,00 m², Bundesland: Niedersachsen

Weitere Services

Lust auf eine Besichtigung?
Eine Frage zur Immobilie?
Mit einer persönlichen Nachricht hast du bessere Chancen auf eine Antwort.
Mit der Nutzung der oben angegebenen Telefonnummer oder durch Klicken auf „Kontaktieren“ akzeptierst Du die Allgemeinen Nutzungsbedingungen, denen Du jederzeit widersprechen kannst. Weitere Informationen zum Datenschutz

Über den Anbieter

Schützenstr. 3, 21244 Buchholz in der Nordheide
Herr René Borkenhagen
Herr René BorkenhagenDein Kontakt
Online-ID: 26BVL3N7MH1R
Referenznummer: 971 - Medizinisches Zentrum
BORKENHAGEN Immobilien
title
BORKENHAGEN Immobilien
Mit einer persönlichen Nachricht hast du bessere Chancen auf eine Antwort.
Mit der Nutzung der oben angegebenen Telefonnummer oder durch Klicken auf „Kontaktieren“ akzeptierst Du die Allgemeinen Nutzungsbedingungen, denen Du jederzeit widersprechen kannst. Weitere Informationen zum Datenschutz
Wie zufrieden bist du mit dieser Seite (nicht mit der Immobilie selbst)?