

Studio zur Miete - Erstbezug630 €1 Zimmer • 40 m² • 2. Geschoss • frei ab sofort
630 €
1 Zimmer • 40 m² • 2. Geschoss • frei ab sofort
Neues Apartment in Innenstadtlage
Merkmale
- frei ab sofort
- 2. Geschoss
- Einbauküche, offene Küche
- Personenaufzug
- Garage
- kontrollierte Be- und Entlüftungsanlage
- Bad mit Dusche
- Bodenbelag: Parkett
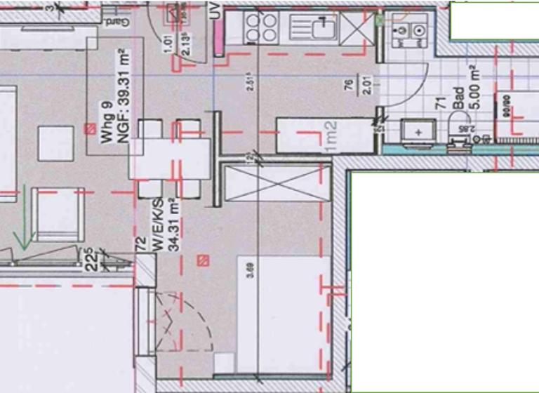
Grundrisse
Grundrisse
1 / 1
Realisiere Dein Projekt
Bausubstanz und Energie
Möchtest du Details zum Energieverbrauch?

- Baujahr2020
- Zustand der ImmobilieNeubau, Erstbezug
- HeizungsartFußbodenheizung
- EnergieträgerErdwärme
Mietkosten
Warmmiete
730 €
Kaltmiete
15,75 €/m²
630 €
Nebenkosten
100 €
Heizkosten
in Warmmiete enthalten
Zusätzliche Kosten
Miete pro Stellplatz
100 €
Kaution
2 KM
Lage

Innenstadt, Trier (54290)
Der Anbieter hat die genaue Adresse nicht freigegeben
Weitere Informationen
Weitere Services
Lust auf eine Besichtigung?
Eine Frage zur Immobilie?
Über den Anbieter
----, 54290 Trier
Herr Marc PriesDein Kontakt
Keine Telefonnummer hinterlegt
Keine Telefonnummer hinterlegt
Online-ID: 23C75R4ZFXUI
Hausverwaltung Rainer Pries
Bewertung: 3,5 von 5 Sternen
Wie zufrieden bist du mit dieser Seite (nicht mit der Immobilie selbst)?

