Version: 8.25.1Navigation überspringen
2.000 €
200 m² Lagerfläche
Immowelt logo

Lagerhalle zur Miete
2.000 €
200 m² Lagerfläche

Moderne Neubau-Lagerhalle im Zentrum von Heinsberg zu vermieten!

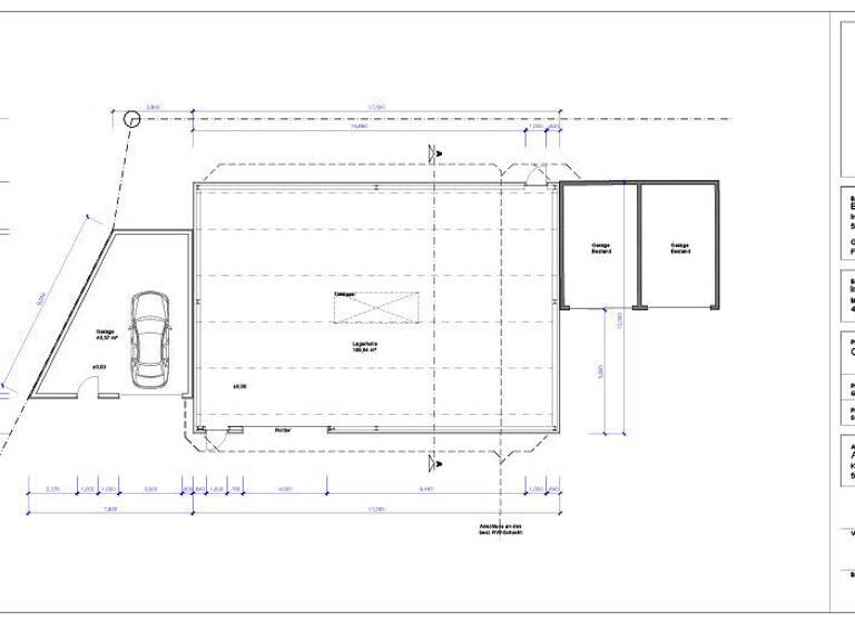
Diese moderne Gewerbehalle mit einer Gesamtfläche von rund 200 m² befindet sich aktuell in Planung und wird als Neubau errichtet. Sie überzeugt durch eine klare, funktionale Bauweise, eine solide Ausstattung und bietet die Möglichkeit, die Halle nach Absprache individuell auf die betrieblichen Anforderungen abzustimmen. Die Halle wird nach Vereinbarung bezugsfertig übergeben und eignet sich für zahlreiche Nutzungen im Bereich Lager, Handwerk oder Produktion.

Ausgestattet wird die Halle mit einem robusten Industrieboden, der auch hohen Belastungen standhält und damit die Grundlage für eine langlebige Nutzung schafft. Ein Stromanschluss mit Starkstrom ist vorgesehen, sodass selbst leistungsstarke Maschinen und Geräte betrieben werden können. Zusätzlich wird ein Wasseranschluss vorhanden sein, wodurch sich vielfältige Einsatzmöglichkeiten ergeben. Eine Toilette ist in der Standardausstattung nicht eingeplant, kann jedoch auf Wunsch nachgerüstet werden. In diesem Fall würde der Mietpreis entsprechend angepasst. Eine Heizung ist nicht Bestandteil der Halle, was einerseits die laufenden Nebenkosten gering hält, andererseits aber die Möglichkeit eröffnet, ein individuell passendes Heizsystem nachzurüsten. Ein weiteres praktisches Detail ist das geplante elektronische Rolltor, das den Zugang zur Halle erheblich erleichtert und für reibungslose Anlieferungen sowie komfortable Nutzung sorgt.

Wichtig zu beachten ist, dass die im Grundriss dargestellten Garagen nicht Teil der Vermietung ist. Es wird ausschließlich die Halle selbst vermietet.

Die angegebene Miete versteht sich zudem zuzüglich 19 % gesetzlicher Mehrwertsteuer.

Könnte diese Gewerbeimmobilie der ideale Standort für Ihr Unternehmen sein?

Gerne senden wir Ihnen ein ausführliches Exposé zu, damit Sie sich in Ruhe mit allen Details der Immobilie vertraut machen können.

Stöbern Sie durch die Unterlagen und notieren Sie sich mögliche Fragen, die wir Ihnen gerne telefonisch oder bei einem persönlichen Besichtigungstermin beantworten.

Wir weisen darauf hin, dass wir Exposés ausschließlich bei vollständigen Angaben Ihrer Kontaktdaten (Name, Anschrift, E-Mail-Adresse und Telefonnummer) versenden können. Mit der Anforderung eines Exposés erklären Sie sich zugleich mit einer telefonischen Kontaktaufnahme einverstanden.

Alle Objektangaben beruhen auf den Informationen des Eigentümers. Eine Haftung für deren Richtigkeit und Vollständigkeit kann nicht übernommen werden. Änderungen und Irrtümer bleiben vorbehalten.

Unsere kompetenten Mitarbeiter stehen Ihnen jederzeit zur Verfügung und freuen sich darauf, Sie bei Ihrer Entscheidungsfindung zu unterstützen.

Merkmale

  • Bezug: Nach Absprache
  • Kein Keller
Großzügige Gewerbefläche bestehend aus einer Lagerhalle mit einer Gesamtfläche von rund 200 m².

Elektrisches Rolltor.

Die angegebene Miete versteht sich zuzüglich 19 % gesetzlicher Mehrwertsteuer. Die Gesamtmiete beträgt somit 2.400,00€ netto zzgl. 456,00€ MwSt.

Grundrisse

Grundrisse
1 / 4

Realisiere Dein Projekt

Bausubstanz und Energie

Möchtest du Details zum Energieverbrauch?info_energy_calculation-icon
Immowelt logo

Mietkosten

Warmmiete
2.400 €
Nettomiete
2.000 €
Nebenkosten
400 €
Zusätzliche Kosten
Heizkosten
Provision für Mieter
1,19 Monatsmiete Inkl. MwSt. zzgl. MwSt.
Kaution
4000 €
Weitere Preisinformationen
Nettokaltmiete: 2.000,00 EUR

Lage

address-icon
Heinsberg (52525)
Der Anbieter hat die genaue Adresse nicht freigegeben
Heinsberg, die charmante Stadt im Westen Nordrhein-Westfalens, ist nicht nur ein attraktiver Wohnort, sondern auch ein bedeutender Wirtschaftsstandort. Besonders das Industriegebiet von Heinsberg bietet Unternehmen eine Vielzahl an Vorteilen und optimalen Bedingungen für wirtschaftliches Wachstum und Entwicklung.

Heinsberg liegt in unmittelbarer Nähe zur niederländischen Grenze und profitiert von seiner strategischen Lage im Dreiländereck Deutschland, Belgien und Niederlande. Diese zentrale Position innerhalb Europas ermöglicht einen schnellen Zugang zu internationalen Märkten und erleichtert grenzüberschreitende Geschäfte. Das Industriegebiet von Heinsberg ist besonders gut an das Verkehrsnetz angebunden. Die Nähe zur Autobahn A46 und weiteren wichtigen Verkehrsadern gewährleistet eine hervorragende Erreichbarkeit und kurze Transportwege zu den Ballungszentren der Region.

Die ausgezeichnete Verkehrsanbindung ist ein wesentlicher Vorteil des Industriegebiets Heinsberg. Die direkte Nähe zur Autobahn ermöglicht schnelle und effiziente Logistikprozesse. Darüber hinaus bietet der Bahnhof Heinsberg eine bequeme Anbindung an den öffentlichen Personennahverkehr, was sowohl für Mitarbeiter als auch für Geschäftspartner von großem Vorteil ist. Diese Kombination aus guter Erreichbarkeit und optimaler Verkehrsanbindung macht das Industriegebiet zu einem attraktiven Standort für Unternehmen verschiedenster Branchen.

Das Industriegebiet von Heinsberg zeichnet sich durch seine vielfältigen Nutzungsmöglichkeiten und die großzügigen Flächen aus. Hier finden Unternehmen ideale Bedingungen für ihre Produktion, Lagerung und Verwaltung. Die flexible Raumgestaltung und die modernen Infrastruktureinrichtungen ermöglichen es Unternehmen, ihre Räumlichkeiten individuell an ihre Bedürfnisse anzupassen. Zudem profitieren Unternehmen von den attraktiven Gewerbeflächen zu wettbewerbsfähigen Konditionen, was insbesondere für Start-ups und expandierende Betriebe von Vorteil ist.

Das Industriegebiet Heinsberg ist ein Ort der Innovation und des Austauschs. Zahlreiche Unternehmen aus unterschiedlichsten Branchen haben sich hier angesiedelt und bilden ein starkes Netzwerk, das Synergien schafft und den Wissenstransfer fördert. Die Nähe zu Forschungs- und Bildungseinrichtungen trägt ebenfalls dazu bei, dass Unternehmen von neuesten Entwicklungen und Technologien profitieren können.

Zusammenfassend bietet das Industriegebiet von Heinsberg durch seine strategische Lage, exzellente Verkehrsanbindung, wirtschaftlichen Vorteile, attraktiven Arbeits- und Lebensbedingungen sowie ein innovationsförderndes Umfeld optimale Voraussetzungen für Unternehmen aller Art. Hier finden Betriebe die ideale Basis, um erfolgreich zu wachsen und sich weiterzuentwickeln!

Weitere Informationen

Sonstiges Grenzenlos gut.
Immobilienvermittlung mit Bouwens
Gerade bei Immobiliengeschäften, wo es um besonders große Werte und Investitionen sowie starke Emotionen geht, dürfen Sie exzellente Dienstleistungen erwarten. Und "das gewisse Etwas mehr", das man eben nicht an jeder Ecke findet. Wir sind seit mehr als 20 Jahren auf den Immobilienmärkten im Kreis Heinsberg erfolgreich und haben individuelle Leistungen entwickelt, die Ihnen beim Verkauf oder Kauf von Wohnimmobilien und Grundstücken entscheidende Vorteile bringen.

Unkompliziert, sicher und schnell: So verkaufen wir Ihre Immobilie im Kreis Heinsberg. Stark in Bewertung, Marketing und Verkauf - durch unseren umfassenden Service sind wir für Sie immer einen Schritt voraus.

Entdecken Sie unsere umfassenden Maklerleistungen aus einer Hand! Beim Verkauf und Erwerb sowie der Vermietung von Immobilien im Kreis Heinsberg betreuen wir Sie rundum Professionell. Das ist Service in 360 Grad! Stichworte Lagerfläche: 200,00 m², Gesamtfläche: 200,00 m²

Weitere Services

Lust auf eine Besichtigung?
Eine Frage zur Immobilie?
Mit einer persönlichen Nachricht hast du bessere Chancen auf eine Antwort.
Mit der Nutzung der oben angegebenen Telefonnummer oder durch Klicken auf „Kontaktieren“ akzeptierst Du die Allgemeinen Nutzungsbedingungen, denen Du jederzeit widersprechen kannst. Weitere Informationen zum Datenschutz

Über den Anbieter

Raiffeisenstraße 8, 52538 Selfkant
partner badge
Partnerschaft
Frau Jennifer Pioreck
Frau Jennifer PioreckDein Kontakt
Online-ID: 2568JNQ2ZP29
Referenznummer: 14825
Bouwens Immobilien GmbH
title
Bouwens Immobilien GmbH
Bewertung: 3,8 von 5 Sternen
Mit einer persönlichen Nachricht hast du bessere Chancen auf eine Antwort.
Mit der Nutzung der oben angegebenen Telefonnummer oder durch Klicken auf „Kontaktieren“ akzeptierst Du die Allgemeinen Nutzungsbedingungen, denen Du jederzeit widersprechen kannst. Weitere Informationen zum Datenschutz
Wie zufrieden bist du mit dieser Seite (nicht mit der Immobilie selbst)?