Version: 8.24.0Navigation überspringen
2.300 €
227 m² Verkaufsfläche
Immowelt logo

Laden zur Miete
2.300 €
227 m² Verkaufsfläche

VL3810a Verkaufs- oder Ladenbürofläche mit Anbau / Regensburg - Nord

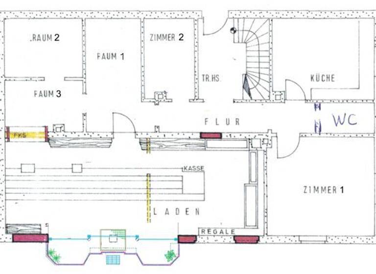
Kurzbeschreibung Gerne stehen wir für eine Besichtigung zur Verfügung. Objekt Die gepflegte Fläche zur Vermietung befindet sich an einer viel befahrenen Straße im Regensburger Norden. Eine Bushaltestelle ist in unmittelbarer Nähe.

Die Verkaufsfläche im Erdgeschoss eines Wohn- und Geschäftshauses wird über eine Gaszentralheizung beheizt.

Die Fläche ist mit Laminat und Fliesen ausgelegt. Aufgrund der Raumhöhe von ca. 3 m besteht die Möglichkeit die Decke abzuhängen. Es sind viele Steckdosen, auch mehrere Kraftsteckdosen vorhanden. Die Verkaufs- oder Ausstellungsfläche erstreckt sich nahezu über die gesamte Breite und ist klimatisiert. Durch den in Glas erstellten Anbau mit automatischer Glastüre ergeben sich hervorragende Präsentations- und Ausstellungsmöglichkeiten.

Im rückwärtigen Bereich befindet sich ein mit der Mietfläche verbundener Anbau. Dieser ist gefliest und hat zusätzlich einen Außenzugang.

Vor dem Haus stehen für Kunden und Besucher mehrere öffentliche Parkplätze kostenlos zur Verfügung. Ein separater Stellplatz am Grundstück oder ein Kellerraum können angemietet werden.

Eine Nutzung als Café, Metzgerei, Bäckerei oder Ähnliches ist möglich.

Ein interessantes Objekt, das sich für vielerlei Branchen eignet.

Merkmale

  • Bezug: sofort
  • 7 m Schaufensterfront
  • Keller
  • Barrierefrei
  • voll klimatisiert
  • Bodenbelag: Fliesen
Lage: Regensburg - Nord
Mietpreis: EUR 2.300,-
Nebenkosten: EUR 450,-
Fläche: ca. 227 m²
Kaution: EUR 6.900,-
Geschoss(e): EG
Bezug: sofort
teilbar ab: nein
Stellplatzanzahl: 0
Schaufensterfront: ca. 7 m
Fußweg zum RVV: 2 min.
Fahrtzeit Bahnhof: 10 min.
Fahrtzeit Autobahn: 10 min.
Fahrtzeit Flughafen: 70 min.
Objekttyp: Ausstellungsfläche
Zustand: gepflegt
Ausstattung: normal
Bodenbelag: Fliesen
Zulieferung: Anfahrt von vorne
Heizung: Gas-Heizung
Energieträger: Gas
Starkstrom: ja
barrierefrei: ja
DV-Verkabelung: ja
Keller: ja
klimatisiert: ja

Grundrisse

Grundrisse
1 / 1

Realisiere Dein Projekt

Bausubstanz und Energie

Der Anbieter hat keine Informationen zum Energieverbrauch bereit gestellt.
  • Zustand der ImmobilieGepflegt
  • EnergieträgerGas
Immowelt logo

Mietkosten

Nettomiete
2.300 €
Nebenkosten
450 €
Provision für Mieter
Ortsübliche Provision vom Käufer/Mieter nur im Erfolgsfalle
Kaution
6.900,00 Soweit nicht anders erwähnt 3 Monatsmieten
Weitere Preisinformationen
Nettokaltmiete: 2.300,00 EUR

Lage

address-icon
Konradsiedlung-WutzlhofenRegensburg (93057)
Der Anbieter hat die genaue Adresse nicht freigegeben
Regensburg - Nord

Weitere Informationen

Sonstiges Um eine schnelle Bearbeitung zu gewähren benötigen wir Ihre Telefonnummer sowie Ihre komplette Adresse. Stichworte Lagerfläche: 227,00 m², Nutzfläche: 227,00 m², Ladenfläche: 227,00 m², Bundesland: Bayern, Distanz zur Autobahn: 5, Distanz zum Bus: .2, Distanz zum Hauptbahnhof: 5, Distanz zum Flughafen: 100 Sonstiges/Wohnen: seniorengerechtes Wohnen Sonstiges: EDV-Verkabelung

Weitere Services

Lust auf eine Besichtigung?
Eine Frage zur Immobilie?
Nachricht hinzufügen
Mit der Nutzung der oben angegebenen Telefonnummer oder durch Klicken auf „Kontaktieren“ akzeptierst Du die Allgemeinen Nutzungsbedingungen, denen Du jederzeit widersprechen kannst. Weitere Informationen zum Datenschutz

Über den Anbieter

Nußbergerstr. 6, 93059 Regensburg
partner badge
Partnerschaft
Herr Roland TrummerDein Kontakt
Online-ID: 2j5gw5p
Referenznummer: VL 3810a
Trummer Immobilien GmbH & Co. KG
Trummer Immobilien GmbH & Co. KG
Bewertung: 4,5 von 5 Sternen
Nachricht hinzufügen
Mit der Nutzung der oben angegebenen Telefonnummer oder durch Klicken auf „Kontaktieren“ akzeptierst Du die Allgemeinen Nutzungsbedingungen, denen Du jederzeit widersprechen kannst. Weitere Informationen zum Datenschutz
Wie zufrieden bist du mit dieser Seite (nicht mit der Immobilie selbst)?